Mẫu Nhà 3 Tầng 1 Tum Hiện Đại Kết Hợp Tân Cổ Điển - Giải Pháp Hoàn Hảo Cho Nhà Phố Góc - CĐT: Ms Mậu - Hà Nội
1. Phối cảnh 3D mặt tiền
Chủ đầu tư: Ms Mậu
Địa điểm xây dựng: Hà Nội
Công năng sử dụng:
+ Tầng 1: Phòng khách + Phòng bếp ăn + wc
+ Tầng 2,3: 2 Phòng ngủ khép kín
+ Tầng tum: Phòng thờ + sân phơi

Mặt tiền của mẫu nhà 3 tầng 1 tum gây ấn tượng mạnh ngay từ cái nhìn đầu tiên nhờ sự kết hợp hài hòa giữa nét tân cổ điển thanh lịch và tinh thần hiện đại phóng khoáng. Tổng thể công trình được bao phủ bởi gam màu trắng chủ đạo, giúp tôn lên vẻ sang trọng, tinh khiết và nổi bật giữa không gian đô thị. Những đường phào chỉ được tiết chế vừa đủ, chạy dọc theo các mảng tường và cột giả, tạo nên chiều sâu kiến trúc mà không hề gây rối mắt. Điểm nhấn nổi bật chính là hệ cửa vòm mềm mại ở tầng trên, vừa mang hơi hướng cổ điển châu Âu, vừa giúp không gian bên trong đón ánh sáng tự nhiên một cách tối đa. Các ban công được thiết kế với lan can sắt nghệ thuật uốn cong tinh xảo, kết hợp cùng những chậu cây xanh và hoa nhỏ xinh, mang đến cảm giác gần gũi, sinh động và đầy sức sống.
Phần tầng trệt sử dụng vật liệu ốp đá với tông màu trầm ấm, tạo sự vững chãi và tương phản tinh tế với phần thân nhà phía trên. Cửa chính gỗ lớn với họa tiết chạm khắc tinh xảo không chỉ tăng thêm giá trị thẩm mỹ mà còn thể hiện sự bề thế, đẳng cấp của gia chủ. Đặc biệt, khu vực tầng tum được thiết kế mở với mái che khung thép hiện đại, vừa tạo không gian thư giãn lý tưởng, vừa góp phần hoàn thiện tổng thể kiến trúc theo chiều cao một cách thanh thoát. Khi về đêm, hệ thống đèn tường ánh vàng được bố trí khéo léo làm nổi bật từng chi tiết, khiến ngôi nhà trở nên ấm cúng, lung linh và cuốn hút hơn bao giờ hết. Tổng thể mặt tiền không chỉ đẹp ở hình khối mà còn thể hiện rõ gu thẩm mỹ tinh tế và phong cách sống hiện đại của gia chủ.

2. Hình ảnh bố trí công năng
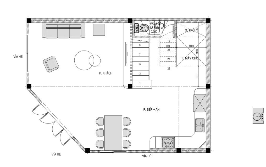
2.1. Tầng 1
+ Tầng 1: Phòng khách + Phòng bếp ăn + wc
.png?588)
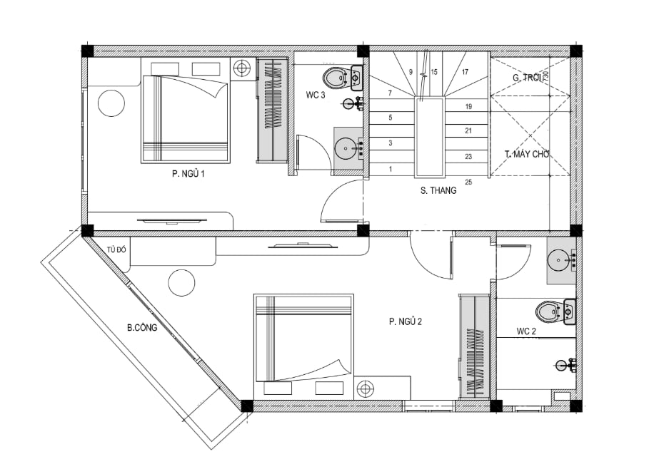
2.2. Tầng 2,3
+ Tầng 2,3: 2 Phòng ngủ khép kín

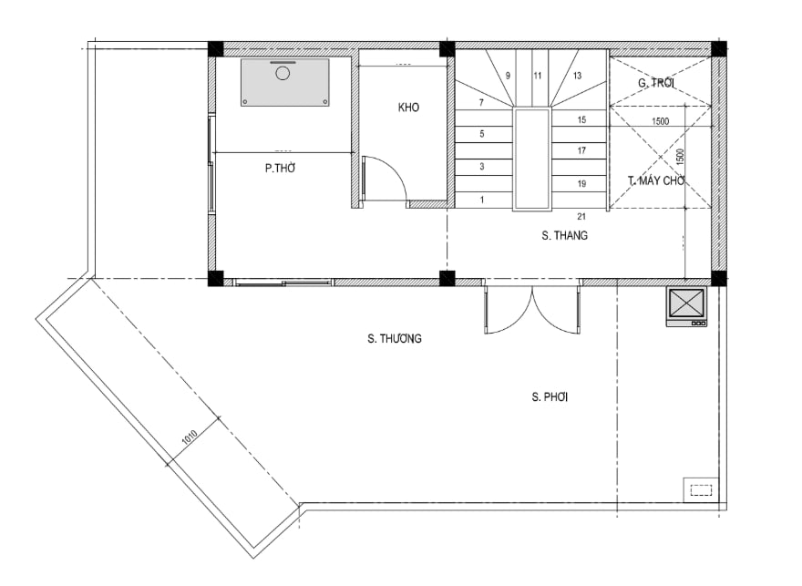
2.3. Tầng tum
+ Tầng tum: Phòng thờ + sân phơi
.png?157)
