Mẫu nhà phố tân cổ điển đẹp kết hợp kinh doanh - Chủ đầu tư: Anh Phương, Hà Nội
Mẫu thiết kế nhà phố tân cổ điển kết hợp kinh doanh là sự kết hợp 2 trong 1 mang tới nhiều lợi ích nhất cho các chủ đầu tư sinh sống ở các khu phố, nơi tấp nập người qua lại. Tuy nhiên, để có được sự tiện nghi giữa không gian sống và sự thuận lợi trong kinh doanh thì vai trò của một kiến trúc sư là rất quan trọng. Hãy cùng chúng tôi chiêm ngưỡng mẫu thiết kế nhà ở kết hợp kinh doanh mà kiến trúc Việt Home đã tâm huyết tạo nên cho gia đình Anh Phương ở Quốc Oai, Hà Nội.
1. Phối cảnh 3D mặt tiền
- Chủ đầu tư: Anh Phương
- Kích Thước: 5x18.2m
- Địa điểm xây dựng: Hà Nội.
- Công năng sử dụng:
+ Tầng 1: Kinh Doanh + Kho + WC.
+ Tầng 2: Kinh Doanh + Kho + WC.
+ Tầng 3: Phòng Khách + Phòng Bếp Ăn + Phòng Ngủ + WC.
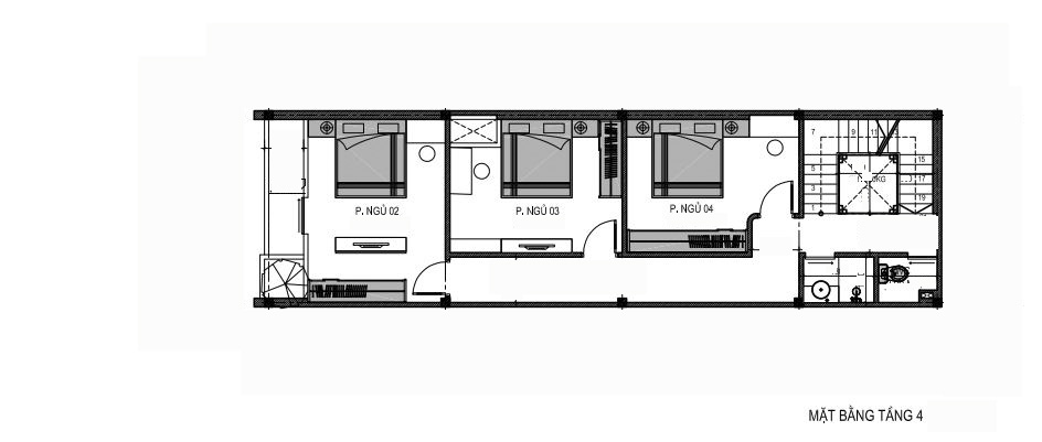
+ Tầng 4: 3 Phòng Ngủ+ WC.
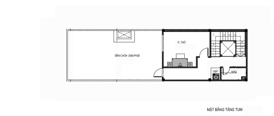
+ Tầng Tum: Phòng Thờ + Kho + Sân Phơi + Sân Chơi.

Khu đất anh Phương sở hữu có diện tích lô phố rất đẹp với mặt tiền là 5m và chiều sâu 18.2m. Vì vậy, cấu trúc nhà không khó để lựa chọn để phù hợp với nhu cầu của gia đình. Một ngôi nhà phố kết hợp kinh doanh với khoảng 4 tầng 1 tum là sự lựa chọn hợp lý nhất. Kết hợp với lối kiến trúc tân cổ điển sẽ giúp tôn lên vẻ đẹp sang trọng, tinh tế và đẳng cấp so với những mẫu nhà hay căn nhà phố xung quanh. Các KTS cho rằng tạo ra một mẫu thiết kế ấn tượng và nổi bật sẽ giúp cho việc kinh doanh của anh chị được thuận lợi hơn, đồng thời vị thế và con mắt của người nhìn về chủ nhà cũng được nâng tầm theo.
Vẻ đẹp của kiến trúc tân cổ điển được thể hiện rõ nét qua các đường gờ, phào chỉ hoa văn ở mặt tiền 5m của ngôi nhà. Với gam màu trắng quen thuộc trong lối thiết kế tân cổ điển kết hợp với màu vàng sang trọng của phần gạch tường tầng 1 là hai tone màu chủ đạo của mẫu nhà phố. Sắc trắng tranh nhã kết hợp với hệ thống phào chỉ được trang trí theo một quy luật nhất định. Tất cả tạo nên một thiết kế mang đậm chất phong cách tân cổ điển đầy tinh tế.

Mặt tiền của tầng 1 được trang trí hoàn toàn khác biệt so với các tầng còn lại. Sự khác biệt này khiến cho ngôi nhà thêm nét nổi bật và tạo ấn tượng mạnh cho khách hàng khi mới bước đến ngôi nhà. Tầng 1 được gia đình anh Phương làm nơi giao dịch chính cho việc kinh doanh nên rất được chú trọng.
Với lối phong cách tân cổ điển là sự giao thoa giữa lối kiến trúc tân cổ và những nét đẹp của phong cách hiện đại. Hệ cột giả đáp nổi với những đường gờ, phào chỉ khá đơn giản từ tầng 2 lên tầng 4 giúp tổng thể ngôi nhà trông thanh thoát, mảnh dẻ mà vẫn kiên cố, chắc chắn. Những đường nét phào chỉ xung quanh cửa và lan can cũng không quá cầu kỳ và rườm rà những vẫn giúp cho ngôi nhà toát lên được sự tinh tế, quý phái và sang trọng.
Ở tầng 2 và tầng 3,4 toàn bộ phần ngoại thất được sơn màu trắng rất tinh tế và sang trọng. Khu vực này đươc chia làm ba khối chính, với hai khối bên là các ban công đua ra. Hệ cột ốp giả được bố trí dọc theo chiều cao ngôi nhà. Chi tiết chỉ cột được thêm vào cân đối và hợp lý. Ở mỗi tầng sẽ bố trí các cửa sổ cân đối, hài hòa. Khối giữa sử dụng hệ cửa kính nối liền hai tầng, tận dụng tối đa để lấy ánh sáng và không khí vào bên trong nhà.
2. Công năng sử dụng
2.1. Tầng 1
Tầng 1: Kinh Doanh + Kho + WC.

2.2. Tầng 2
Tầng 2: Kinh Doanh + Kho + WC.

2.3. Tầng 3
Tầng 3: Phòng Khách + Phòng Bếp Ăn + Phòng Ngủ + WC.

2.4. Tầng 4
Tầng 4: 3 Phòng Ngủ+ WC.

2.5. Tầng Tum
Tầng Tum: Phòng Thờ + Kho + Sân Phơi + Sân Chơi.

Nếu các bác thích mẫu nhà phố như bên em vừa giới thiệu thì hãy nhắn tin hoặc gọi điện thoại trực tiếp cho Việt Home để được tư vấn nhé!
