Nhà phố tân cổ điển 3 tầng 1 tum - Chủ nhân anh Thiện Cổ Nhuế, Hà Nội
Sở hữu mảnh đất có mặt tiền khá nhỏ 3,75 m. Anh Thiện đã tìm đến Việt Home nhờ kiến trúc sư tư vấn thiết kế mẫu nhà phù hợp với công năng 3 phòng ngủ và phải mang đến sự nổi bật. Sau khi tư vấn và lên phương án, anh Thiện đã nhanh chóng lựa chọn mẫu nhà phố tân cổ điển với gam chủ đạo là màu trắng.
1. Phố cảnh mặt tiền
Nhìn tổng thể, mẫu thiết kế nhà phố tân cổ điển vô cùng hài hòa với những chi tiết được tính toán kỹ lưỡng khiến cho công trình trở nên đẹp mắt, cũng như chinh phục trái tim của rất nhiều người. Dù rằng, phần ngoại thất của mẫu thiết kế nhà phố được thiết không quá cầu kỳ nhưng vẫn hoàn toàn tôn lên cốt cách sang trọng, tinh tế. Đặc biệt, phần lan can ban công giúp tạo điểm nhấn, tạo sự cách điệu lại nhưng không rườn rà.

2. Bố trí công năng
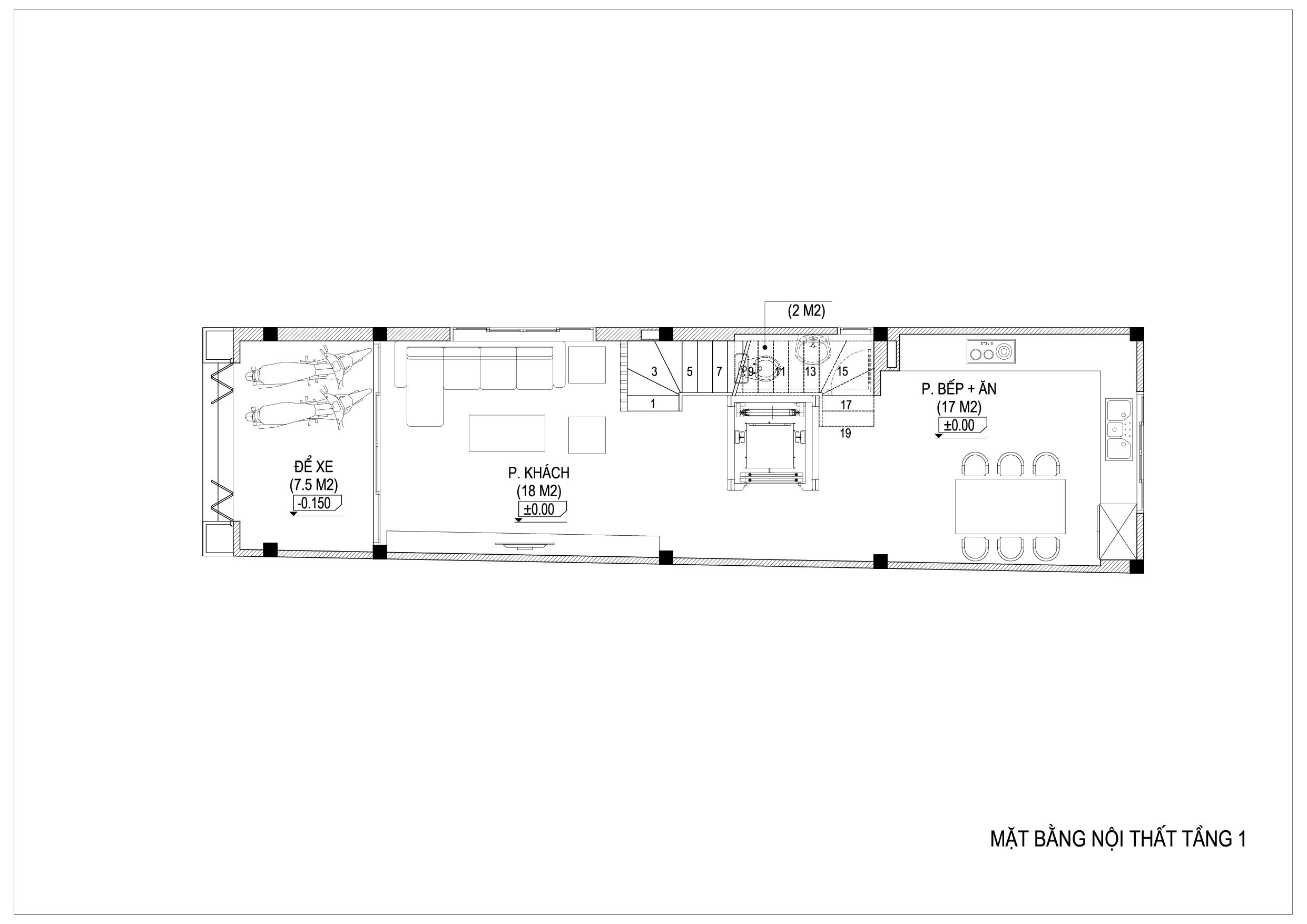
2.1. Tầng 1
Phòng khách + Bếp và bàn ăn + 1 WC + Hầm để xe

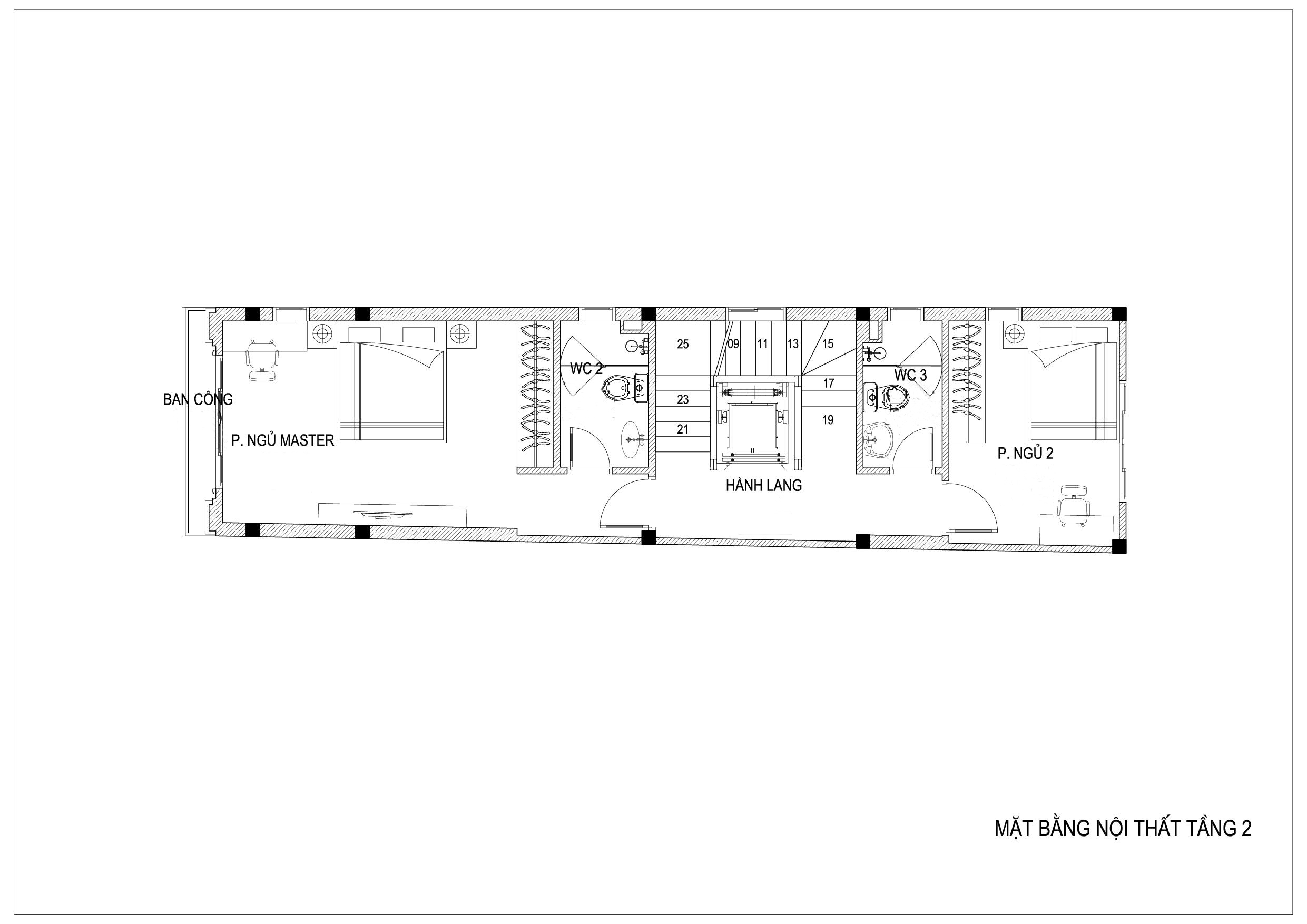
2.2. Tầng 2
1 Phòng ngủ Master + 1 Phòng ngủ + 2 WC + Ban Công

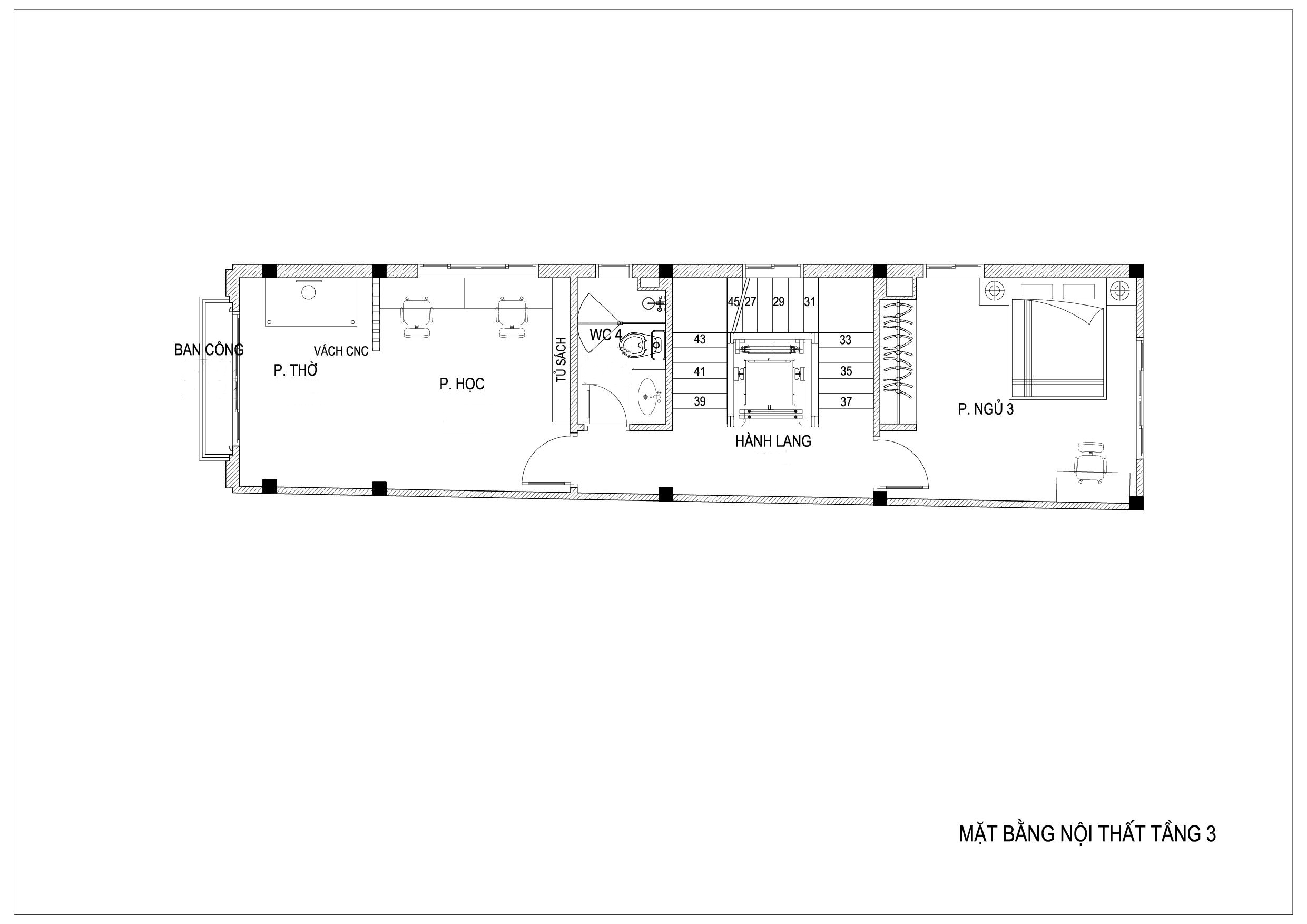
2.3. Tầng 3
1 Phòng thờ + 1 Phòng ngủ + 1 Phòng học + 1 WC + Ban công

2.4. Tầng tum
Kho + Sân phơi + Sân chơi

3. Bố trí nội thất
3.1. Phòng khách

3.2. Phòng thờ



3.3. Phòng ăn


3.4. Phòng ngủ và phòng vệ sinh





Điểm đặc biệt, biệt thự của anh Thiện được thiết kế giếng trời, giúp căn nhà thông thoáng và tận dụng tối đa nguồn sáng tự nhiên.

Phòng học tầng 2

Bạn đang sở hữu 1 mảnh đất với mặt tiền nhỏ và băn khoăn không biết nên lựa chọn mẫu thiết kế nào cho phù hợp với tổ ấm của mình. Liên hệ ngay với Việt Home qua hotline: 0912 301 185 để được tư vấn mẫu nhà phù hợp nhất.
