Mẫu biệt thự mái thái 1 tầng nhà chị Ngân - Hà Trung, Thanh Hóa
Ngày nay, phong cách thiết kế biệt thự nói chung và mẫu biệt thự mái thái 1 tầng 150m2 nói riêng là một trong những xu hướng nhà ở được nhiều gia đình có điều kiện lựa chọn. Với đội ngũ kiến trúc sư tài năng, giàu kinh nghiệm chúng tôi chắc chắn sẽ không chỉ mang đến cho bạn một không gian sống thoải mái về công năng, sang trọng và hiện đại về hình thức mà còn phù hợp với phong thủy, giúp mang lại cho gia chủ những điều may mắn và thuận lợi trong cuộc sống như mẫu biệt thự mái thái 1 tầng 150m2 của một gia chủ ở Thanh Hóa mà hôm nay chúng tôi muốn giới thiệu.
VIEW TỔNG QUAN MẪU THIẾT KẾ BIỆT THỰ MÁI THÁI 1 TẦNG 150M2 TẠI THANH HÓA.
Mẫu thiết kế biệt thự mái thái 1 tầng đẹp với diện tích 150m2 thể hiện sự bề thế, hoành tráng và đồ sộ của gia chủ.

Mẫu biệt thự mái thái 1 tầng 150m2 ở Thanh Hóa thể hiện những chi tiết kiến trúc vô cùng tinh tế, không chỉ từ cách sắp xếp, bố cục mà cả vật liệu, chất lượng, chủng loại và màu sắc vật liệu đều được lựa chọn sao cho hợp lý nhất. Gam màu chủ đạo của mẫu biệt thự 1 tầng là sơn màu vàng kem kết hợp với màu đỏ của mái ngói, và màu ghi của thanh cửa sổ, hàng rào. Gam màu vàng kem nổi bật được sơn cho các mảng tường, cột và đặc biệt nó làm nổi bật lên hệ thống cửa kính với khung gỗ ghi sang trọng, hiện đại. Đây cũng là chi tiết khá đặc biệt của ngôi biệt thự để tạo nên sự mới mẻ và hiện đại cho thiết kế biệt thự 1 tầng.

CHẤT LIỆU ĐẶC BIỆT ĐƯỢC SỬ DỤNG TRONG MẪU THIẾT KẾ BIỆT THỰ 1 TẦNG 150M2 MÁI THÁI Ở VÙNG ĐẤT CẰN CỖI.
Khối chân đế công trình biệt thự mái thái 1 tầng 150m2 mái thái được ốp bằng đá màu nâu vàng vừa tạo khối vững chắc vừa cho toàn bộ thiết kế biệt thự mái thái1 tầng một cái nhìn view đẹp. Với biệt thự mái thái 1 tầng 150m2 này, kiến trúc sư lựa chọn thiết kế mái giật cấp, đây cũng là kiểu mái ngói được áp dụng trong kiến trúc Việt Nam từ xưa đến nay.
Tuy nhiên, mái nhà không chỉ còn có chức năng cơ bản là che mưa nắng, bảo vệ kết cấu công trình nữa mà còn có tác dụng rất lớn trong việc thể hiện kiến trúc của công trình biệt thự mái thái 1 tầng 150m2 mái thái này. Đặc biệt là các phần mái giật cấp ấn tượng mang lại cho gia chủ nhiều sự thay đổi tinh tế và dễ dàng lựa chọn hơn cho ngoại thất công trình. Chất lượng ngói và màu sắc ngói được kiến trúc sư lựa chọn rất kỹ lưỡng theo kiến trúc tổng thể của công trình nhà ở này.
Phối cảnh sân vườn mẫu biệt thự mái thái 1 tầng 150m2 cũng rất ấn tượng, với tường bao xung quanh thống nhất với kiến trúc công trình. Sân vườn được thiết kế với hệ thống cây cảnh, cỏ cây trước nhà theo phong thủy khiến cho ngôi nhà trở nên đẹp và đặc biệt thu hút hơn.
Thông tin chi tiết về mẫu thiết kế mái thái 1 tầng nhà chị Ngân - Thanh Hóa:
Chủ đầu tư: Chị Ngân
Địa chỉ: Hà Trung - Thanh hóa
Diện tích: 150m2
Tổng chi phí: 800tr
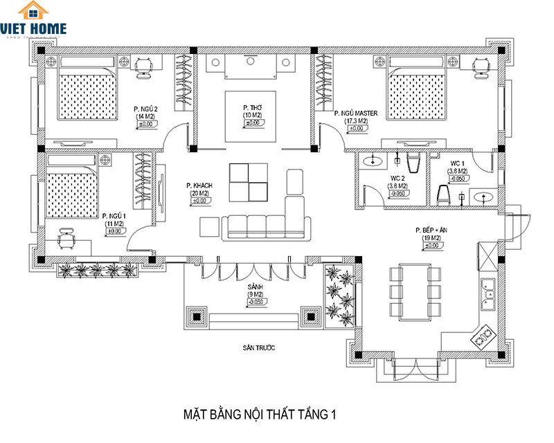
Công Năng: Phòng Khách + Phòng bếp + 3 Phòng Ngủ + 2 Vệ Sinh + Sảnh trước + Sân Ướt


Quá trình thi công mẫu thiết kế nhà chị Ngân - Hà Trung, Thanh Hóa:

Các kiến trúc sư tại VIỆT HOME có nhiều kinh nghiệm trong lĩnh vực thiết kế thi công nhà ở với kiến thức chuyên môn và gu thẩm mỹ nghệ thuật cao cam kết sẽ sáng tạo hết mình mang lại không gian sống lý tưởng nhất cho bạn và gia đình.
Hãy liên hệ với chúng tôi để được tư vấn tốt nhất:
