Xuýt xoa trước vẻ đẹp của biệt thự tân cổ điển 2 tầng mái Nhật - Chủ đầu tư: Anh Dũng, Thái Nguyên
Nhà mái Nhật là lựa chọn đầu tiên của nhiều gia chủ khi có nhu cầu xây dựng nhà, bởi sự đơn giản và sang trọng. Hơn nữa, nhà mái Nhật còn là xu hướng xây dựng được ưa chuộng và yêu thích hàng đầu hiện nay. Nổi bật với kiến trúc phá cách khi được kết hợp hài hòa giữa kiến trúc hiện đại với cổ điển lộng lẫy xa hoa nhưng vẫn toát ra vẻ đẹp sang trọng. Công năng sử dụng tiện nghi và chi phí thi công hợp lý luôn được rất nhiều gia chủ lựa chọn.
Dưới đây là mẫu nhà của gia đình anh Dũng tại Thái Nguyên, các bác hãy cùng Việt Home ngắm nhìn ngôi nhà nhé!
1. Phối cảnh 3D mặt tiền
Chủ đầu tư: Anh Dũng
- Địa điểm xây dựng: Thái Nguyên.
- Công năng sử dụng:
+ Tầng 1: Phòng khách + KGĐ, 2 phòng ngủ, 1 WC.
+ Tầng 2: Phòng sinh hoạt chung, phòng thờ, 2 phòng ngủ, 1 WC, Sân phơi.

Ngôi biệt thự với những đường nét ngoại thất tân cổ điển cân đối, mạnh mẽ, uyển chuyển tạo nên một tổng thể hài hoà, sang trọng. Ngắm nhìn từ xa, ngôi nhà toát lên sự yên bình, nhẹ nhàng khó tả. Có lẽ cảm giác đó được tạo nên nhờ việc kết hợp những chất liệu vừa quen thuộc vừa độc đáo. Mặt tiền rộng là một lợi thế để ngôi nhà bộc tả hết vẻ đẹp của mình.
Sở hữu điểm hút mắt riêng biệt gây ấn tượng cho người nhìn với gam màu trắng hòa quyện đan xen với vật liệu ốp lát. Các kiến trúc sư ở Việt Home còn tập trung vào thiết kế kiến trúc ngoại thất để kiến tạo ra nét đẹp chỉn chu, vẻ đẹp độc lạ. Hơn nữa, chính sự cộng hưởng hài hòa từ thiết kế mái Nhật với khuôn viên xung quanh nhà giúp con người gần gũi với thiên nhiên.

Với những hoa văn phào chỉ, màu sắc hài hòa đặc biệt là không gian sống tiện nghi, biệt thự vừa giúp các thành viên trong gia đình có một nơi ”trở về” lý tưởng. Mặt khác ngôi nhà còn thay mặt chủ nhân nói lên được đẳng cấp, vị thế của mình.
2. Công năng sử dụng
2.1. Tầng 1
Tầng 1: Phòng khách + KGĐ, 2 phòng ngủ, 1 WC.

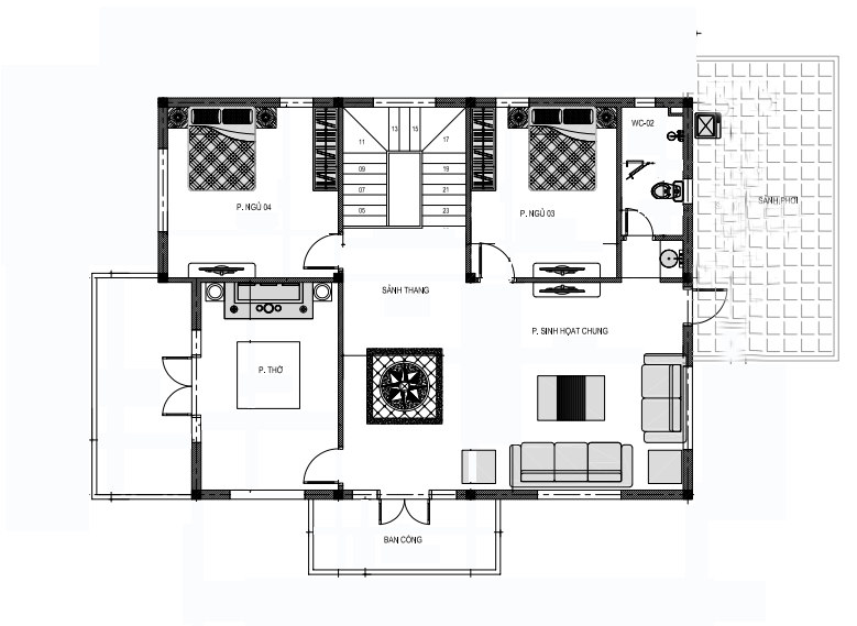
2.2. Tầng 2
Tầng 2: Phòng sinh hoạt chung, phòng thờ, 2 phòng ngủ, 1 WC, Sân phơi.

Nếu các bác thích mẫu nhà 2 tầng mái Nhật theo phong cách tân cổ điển như bên em vừa giới thiệu thì hãy nhắn tin hoặc gọi điện thoại trực tiếp cho Việt Home để được tư vấn nhé!
