Mẫu nhà 1 tầng gác lửng mái Nhật đẹp lung linh, tiết kiệm chi phí - Chủ đầu tư: Anh Lành, Hưng Yên
Các mẫu nhà 1 tầng gác lửng là những mẫu thiết kế nhà được ưa chuộng nhất hiện nay. Đây là thiết kế nhà hiện đại, có tính thẩm mỹ cao giúp bạn tiết kiệm chi phí xây sửa lắp đặt. Phù hợp với những gia đình có diện tích nhỏ và ít thành viên.
Hôm nay, Việt Home xin giới thiệu đến các bạn một mẫu nhà 1 tầng gác lửng của gia đinh anh Lành tại Hưng Yên
1. Phối cảnh 3D mặt tiền
- Chủ đầu tư: Anh Lành
- Địa điểm xây dựng: Ân Thi, Hưng Yên
- Tên công trình: 1 tầng gác lửng mái Nhật
- Công năng sử dụng:
+ Tầng 1: Phòng khách + Phòng thờ + Phòng bếp ăn + 1 Phòng ngủ master + 1 Phòng ngủ đơn + 1 WC + Sân phơi
+ Tầng lửng: 2 Phòng ngủ đơn + 1 WC
Nhà gác lửng nhưng được bố trí công năng vô cùng hợp lý và tiện nghi, các thành viên trong gia đình vừa có không gian riêng vừa có không gia chung cho các thành viên trong gia đình. hệ thống cửa và cửa sổ được lắp đặt bằng kính, tạo không gia thoáng mát và lấy được nhiều ánh sáng nhất cho căn nhà.

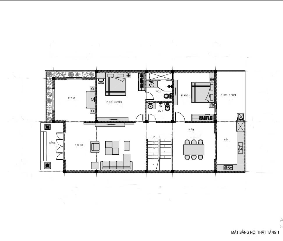
2. Bố trí công năng sử dụng
2.1. Tầng 1
+ Tầng 1: Phòng khách + Phòng thờ + Phòng bếp ăn + 1 Phòng ngủ master + 1 Phòng ngủ đơn + 1 WC + Sân phơi.


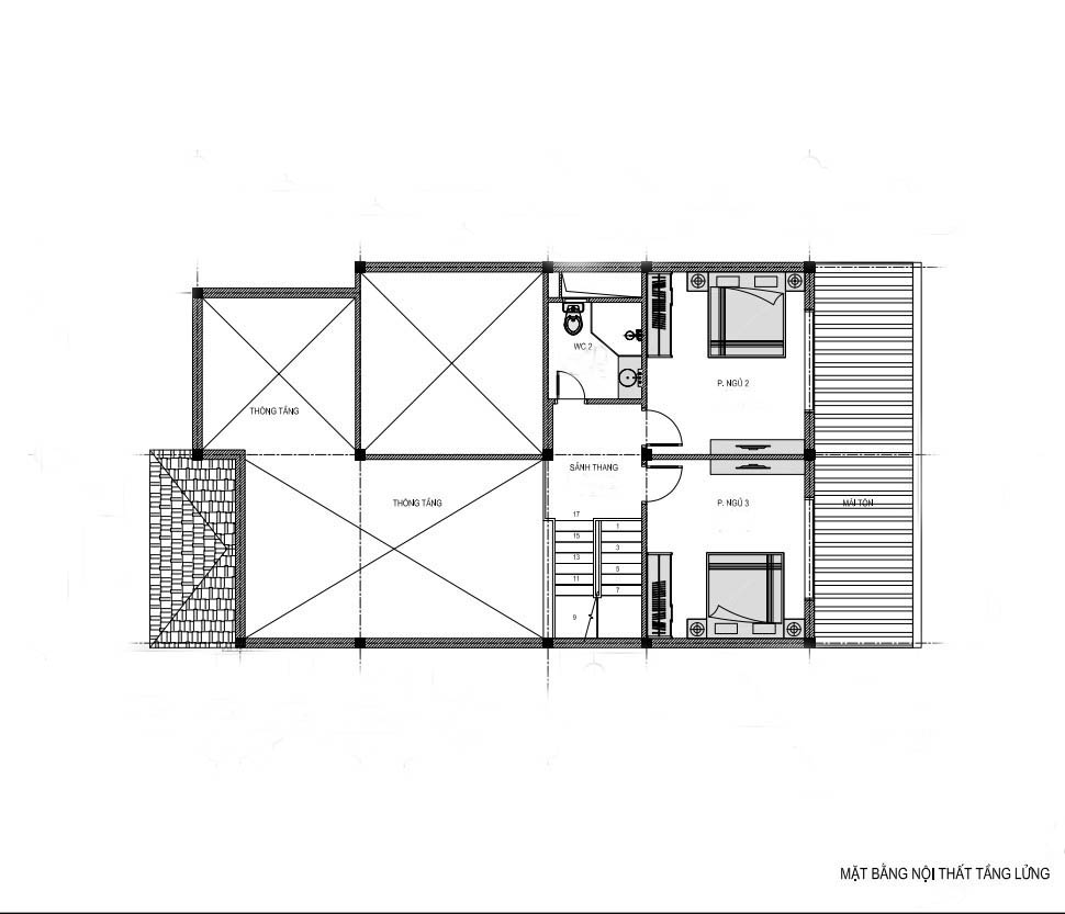
2.2. Tầng lửng
+ Tầng lửng: 2 Phòng ngủ đơn + 1 W

3. Hình ảnh giám sát thi công



