Ngắm nhìn biệt thự mái Nhật 2 tầng siêu đẹp mắt nhà chị An - Hải Dương
Biệt thự 2 tầng mái Nhật có lẽ là mẫu nhà nhận được nhiều sự quan tâm nhất của các chủ đầu tư trong những năm gần đây. Một trong xu hướng phát triển đa dạng như vũ bảo của các xu hướng kiến trúc, ngoài sự phân biệt thông qua các kiểu dáng kiến trúc hiện đại, kiến trúc tân cổ, kiến trúc cổ điển hay kiến trúc địa trung hải… là sự phân biệt thông qua các hệ mái. Bên cạnh hệ mái vòm, mái chót, mái marsand thì hệ mái nhật du nhập vào nước ta nhanh chóng chinh phục được cả những vị khách khó tính nhất.
1. Phối cảnh 3D
- Chủ đầu tư: Chị An
- Địa điểm xây dựng: Hải Dương
- Tên công trình: Nhà 2 tầng mái Nhật
- Công năng sử dụng:
+ Tầng 1: Phòng khách + Phòng ngủ đơn + 1 WC
+ Tầng 2: Phòng thờ + 3 Phòng ngủ + 1 WC

Không gian ngoại thất của mẫu biệt thự được thiết kế theo khối hình vuông vắn không quá cầu kỳ với các đường nét, chi tiết rất đơn giản thoáng mát.
Thiết kế biệt thự hiện đại 2 tầng đẹp mang trong mình sự khỏe khoắn, phóng khoáng được thể hiện rõ ràng qua từng hình khối, mảng miếng, đường nét thiết kế. Những họa tiết trang trí đều hướng tới sự đơn giản, ưu tiên sử dụng những gam màu trung tính đang rất thịnh hành trong cuộc sống hiện đại ngày nay.

Toàn bộ cửa sổ sát đất và lan can ban công đều sử dụng kính cường lực khung sắt hộp có khả năng chịu lực, chịu nhiệt tốt, đem lại vẻ đẹp hiện đại, sang trọng đồng thời tối ưu không gian mở, đưa ánh sáng tự nhiên vào bên trong biệt thự, khiến không gian bên trong biệt thự luôn sáng bừng tràn đầy sức sống.
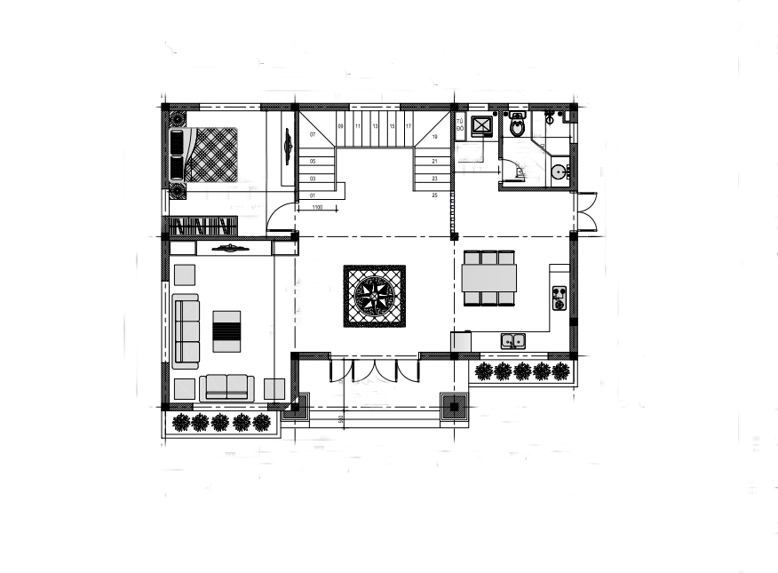
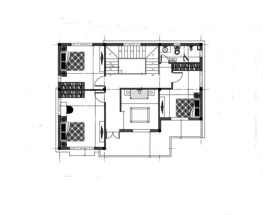
2. Bố trí công năng
2.1. Tầng 1
+ Tầng 1: Phòng khách + Phòng ngủ đơn + 1 WC


2.2. Tầng 2
+ Tầng 2: Phòng thờ + 3 Phòng ngủ + 1 WC

