Chiêm ngưỡng mẫu biệt thự nhà phố 3 tầng đẹp, hiện đại - Chủ đầu tư: Anh Sáu, Hải Phòng
Mẫu biệt thự phố 3 tầng là một mẫu nhà đang ngày càng được nhiều gia chủ lựa chọn xây dựng để đáp ứng nhu cầu sinh hoạt thoải mái tiện nghi cho cả gia đình, thể hiện được đẳng cấp của chủ sở hữu thông qua sự bề thế, đường nét kiến trúc tinh xảo và không gian nội thất sang trọng, hiện đại.
Dưới đây là mẫu nhà của gia đình anh Sáu tại Hải Phòng, các bác hãy cùng Việt Home ngắm nhìn ngôi nhà nhé!
1. Phối cảnh 3D mặt tiền
Chủ đầu tư: Anh Sáu
- Địa điểm xây dựng: Hải Phòng.
- Công năng sử dụng:
+ Tầng 1: Phòng Khách, Phòng Bếp, Phòng Ngủ, WC, Sân Ướt
+ Tầng 2: Phòng SHC, Phòng Ngủ Khép Kín, 2 Phòng Ngủ Thường, WC.
+ Tầng 3: Phòng Thờ, Phòng Karaoke, Kho, WC, Sân Chơi + BBQ, Sân Phơi.

Gia đình anh Sáu, đang sinh sống và làm việc tại Hải Phòng, liên hệ với Kiến Trúc Việt Home qua quá trình chọn lọc đơn vị thiết kế. Với diện tích 7.5mx14m, anh có nhu cầu thiết kế biệt thự theo phong cách hiện đại cùng một số yêu cầu về không gian sống cho gia đình. Gia đình anh mong muốn có một biệt thự thể hiện sự phóng khoáng và sang trọng. Thiết kế phải thể hiện được tính hiện đại, với sự kết hợp hài hòa giữa các yếu tố kiến trúc và thiết kế nội thất. Không gian phải đủ rộng để đảm bảo tiện ích và sự tiện lợi trong cuộc sống hàng ngày. Đồng thời không gian cần tạo cảm giác gần gũi với thiên nhiên.
Đồng thời thiết kế không sử dụng chi tiết quá cầu kỳ, tạo nên sự tối giản nhưng vẫn phải tinh tế. Mọi tiêu chuẩn đều hướng đến sự đơn giản và tinh xảo. Công năng sử dụng đáp ứng mọi nhu cầu và mong muốn của gia đình anh Sáu.
Sau khi lắng nghe và hiểu rõ những yêu cầu và mong muốn của gia chủ, đội ngũ kiến trúc sư của Việt Home đã tiến hành khảo sát hiện trạng thực tế của quỹ đất và lên phương án mặt bằng cũng như phối cảnh 3D cho mẫu thiết kế biệt thự

Hướng tới một không gian sống gắn kết, tận dụng tối đa ánh sáng ban ngày và thông gió tự nhiên. Khi ngắm nhìn khu vực mặt tiền của thiết kế, bạn sẽ dễ dàng bị thu hút ngay bởi hệ cây xanh bao phủ bên ngoài xanh mướt mát. Các loại cây cảnh có chủng loại phong phú, đa dạng về cả hình dáng lẫn chiều cao. Chúng được kiến trúc sư bố trí ở khu vực ban công mỗi tầng khiến cho ngoại thất của căn nhà thêm mới lạ và phong phú.
Từng đường nét được trang trí tối giản với nhau nhằm thể hiện phong thái trẻ trung, năng động không cần quá nhiều sự cầu kì nhưng vẫn tạo ra được sự ấn tượng mạnh mẽ trong mắt người nhìn. Sử dụng phong cách hiện đại, căn nhà sở hữu những đặc điểm nổi bật như: Sử dụng không gian mở giúp phát huy tối đa diện tích sử dụng của công trình nhà phố. Mặt tiền được tận dụng tối ưu để tạo nên những nét độc đáo riêng. Hệ thống cổng chắc chắn được phun sơn màu đen đảm bảo an toàn cho không gian sống của gia chủ. Phối màu hài hòa với hai tone màu đen trắng làm chủ đạo cân đối nhất. Với cách phối màu đơn giản này, ngôi nhà đã đảm bảo được không gian ngoại thất đẹp mắt. Thể hiện ttính thẩm mỹ cao và khác biệt so với những công trình kiến trúc cùng loại.
2. Công năng sử dụng
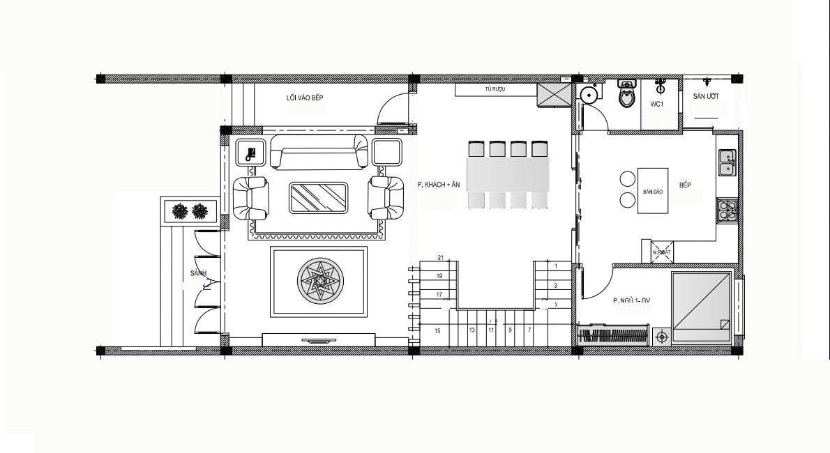
2.1. Tầng 1
Tầng 1: Phòng Khách, Phòng Bếp, Phòng Ngủ, WC, Sân Ướt

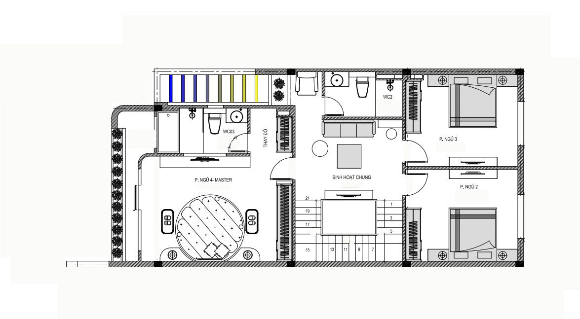
2.2. Tầng 2
Tầng 2: Phòng SHC, Phòng Ngủ Khép Kín, 2 Phòng Ngủ Thường, WC.

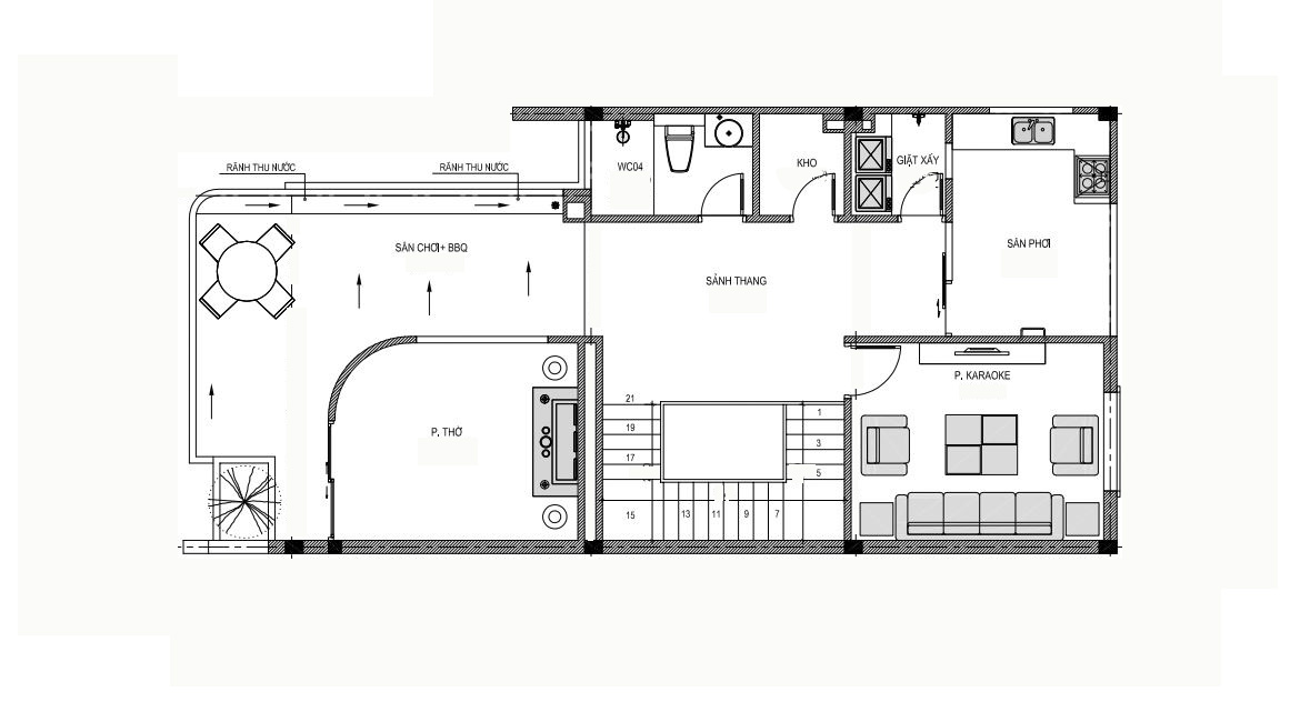
2.3. Tầng 3
Tầng 3: Phòng Thờ, Phòng Karaoke, Kho, WC, Sân Chơi + BBQ, Sân Phơi.

3. Hình ảnh thi công giám sát thực tế




Nếu các bác thích mẫu nhà phố như bên em vừa giới thiệu thì hãy nhắn tin hoặc gọi điện thoại trực tiếp cho Việt Home để được tư vấn nhé!
