Mẫu thiết kế nhà phố 4 tầng hợp thời đại năm 2023 - Chủ dầu tư: Chị Hương, Hải Dương
Mẫu thiết kế mặt tiền nhà phố 4 tầng đẹp hiện đại đang là xu hướng được nhiều chủ đầu tư quan tâm. Với chiều rộng mảnh đất 5m rất thích hợp cho những ngôi nhà phố 4 tầng đẹp, hiện đại. Quy mô xây dựng sẽ đáp ứng đủ nhu cầu sinh hoạt cho gia đình từ 5 đến 8 thành viên.
Dựa trên quy mô xây dựng, ý tưởng, sở thích của chủ đầu tư mà KTS Việt Home sẽ lên phương án khai triển mặt tiền nhà ống hiện đại sao cho phù hợp nhất. Khám phá mặt tiền nhà sẽ giúp chủ đầu tư có được cái nhìn tổng quát cho ngôi nhà mình xây dựng. Việt Home xin giới thiệu đến các bạn mẫu nhà 4 tầng nhà chị Hương, Hải Dương.
1. Phối cảnh 3D mặt tiền
Thiết kế nhà 4 tầng là quy mô xây dựng đang được ưa chuộng tại các thành phố lớn hiện nay, nó không chỉ tối ưu được những mảnh đất có diện tích khiêm tốn mà còn đáp ứng trọn vẹn cả công năng bên trong lẫn thẩm mỹ bên ngoài.
Chủ đầu tư: Chị Hương
Địa điểm xây dựng: Hải Dương
Tên công trình: Biệt thự phố 4 tầng
Công năng:
Tầng 1: Phòng ngủ + Bếp ăn + WC
Tầng 2: Phòng Khách + Phòng ngủ + WC
Tầng 3: 2 Phòng ngủ + WC
Tầng 4: Phòng thờ + Phòng giặt + Sân phơi

Với diện tích không quá rộng, mà vẫn có không gian rộng rãi thoáng mát nhưng vẫn đầy đủ công năng, các KTS Việt Home đã lên ý tưởng bố trí vô cùng hợp lý. Phù hợp với phong thủy, sở thích và như cầu sử dụng của các thành viên trong gia đình.

2. Bố trí công năng sử dụng
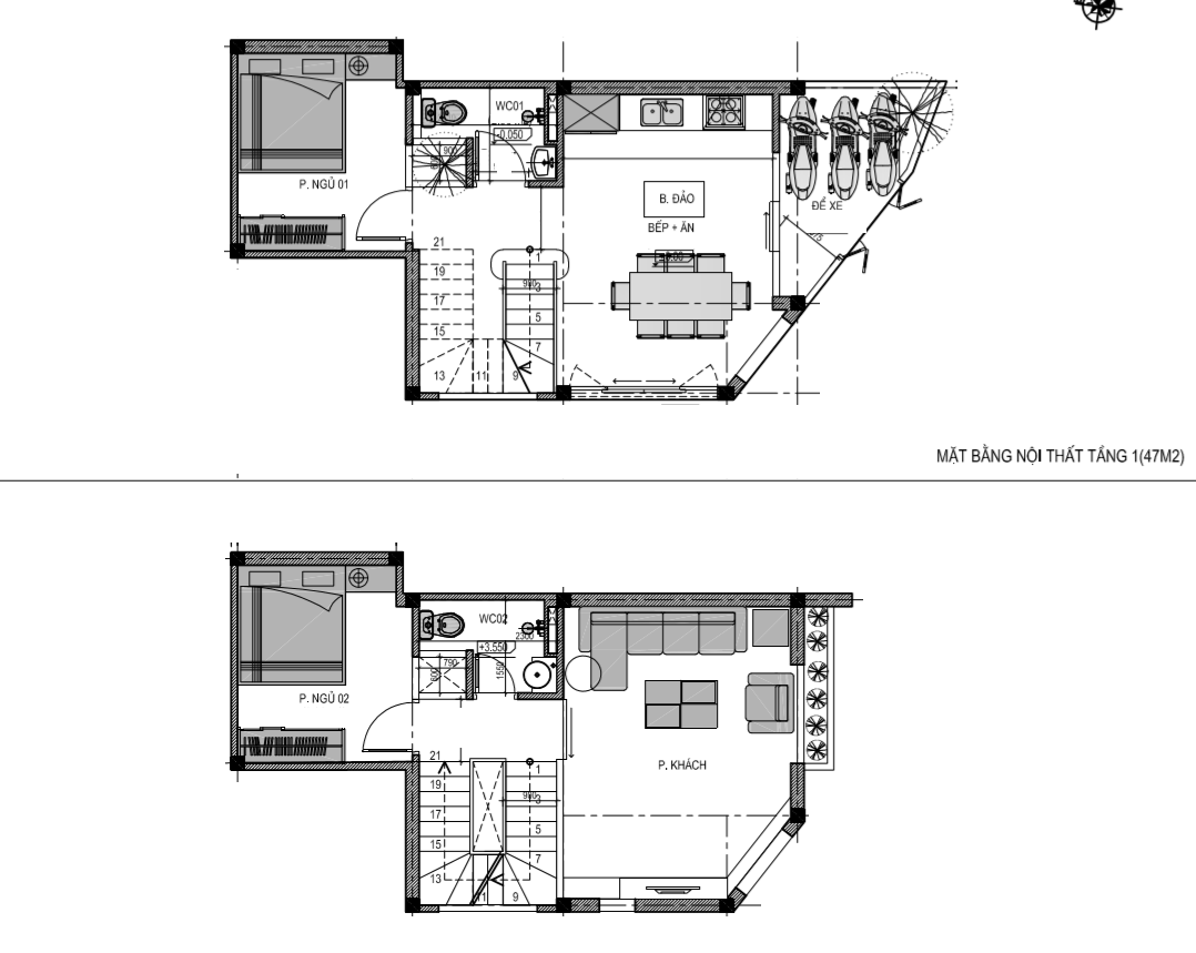
2.1. Tầng 1 và tầng 2
Tầng 1: Phòng ngủ + Bếp ăn + WC
Tầng 2: Phòng Khách + Phòng ngủ + WC

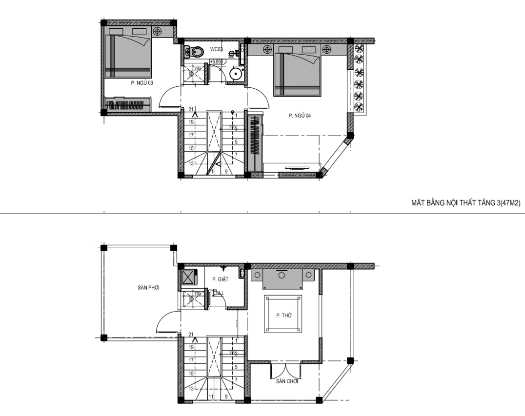
2.2. Tầng 3 và tầng 4
Tầng 3: 2 Phòng ngủ + WC
Tầng 4: Phòng thờ + Phòng giặt + Sân phơi

