Đẳng cấp mẫu nhà phố kết hợp kinh doanh - Chủ đầu tư: anh Toàn, Hà Nội
Thiết kế nhà phố 3 tầng kết hợp với kinh doanh tầng 1 theo phong cách hiện đại với mái bằng tinh tế đang là xu hướng thiết kế nhà đẹp trong năm 2024. Thiết kế nhà phố hiện đại, đơn giản những vẫn đảm bảo về mặt phong thủy và tính thẩm mỹ.
Những ngôi nhà phố ngày nay thường có một đến hai mặt tiền. Mặt tiền nhà phố đẹp sẽ thể hiện được đẳng cấp, phong cách của gia chủ. Hôm nay, Việt Home xin gửi đến các bạn mẫu mặt tiền nhà phố 3 tầng mái bằng kết hợp với kinh doanh. Hy vọng sẽ giúp bạn có thêm ý tưởng mới trong việc xây ngôi nhà của mình.
1. Phối cảnh 3D mặt tiền
Chủ đầu tư: Anh Toàn
Kích Thước: 6x12m
Địa điểm xây dựng: Hà Nội.
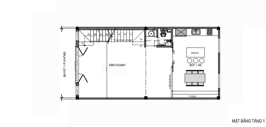
Công năng sử dụng:
+ Tầng 1: Kinh Doanh + Bếp Ăn + WC.
+ Tầng 2: Phòng Khách + 2 Phòng Ngủ + WC.
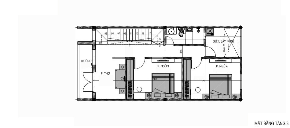
+ Tầng 3: Phòng Thờ + 2 Phòng Ngủ + WC + Sân Chơi.

Trong thiết kế nhà ống phong cách Địa Trung Hải thường lựa chọn dùng cửa vòm. Lấy cảm hứng từ sự tinh tế của phong cách Ý và Hy Lạp nên những dòng cửa vòm hay mái vòm là chi tiết không thể thiếu. Không chỉ giúp nhận diện phong cách này mà còn là điểm nhấn giúp tổng quan ngôi nhà trở nên mềm mại, nghệ thuật và tươi sáng hơn.
Phong cách địa trung hải thường hướng tới màu sắc thiên nhiên . Vì vậy màu sắc được sử dụng thường có tông màu tươi mát và trong trẻo. Các màu sắc đặc trưng gồm: màu xanh của bầu trời và biển cả, màu vàng nhạt của nắng, màu đất nung terra. Phần lớn các màu sắc này được kết hợp hài hòa tinh tế, mang đậm hương vị biển của vùng Địa Trung Hải. Đem đến cảm giác thoải mái và gần gũi cho con người sống trong ấy .

Mặt tiền mang một chút năng lượng mạnh mẽ của phong cách thiết kế hiện đại, nổi bật với những đường nét sạch sẽ, gọn gàng cùng sự kết hợp hài hòa giữa các vật liệu tự nhiên. Bảng màu trung tính từ trắng, xám được lựa chọn bởi bảng màu này vừa dễ dàng hòa hợp với sự mạnh mẽ của gỗ và đá vừa tạo nên một không gian ngoại thất vừa nổi bật đầy ấn tượng.
2. Bố trí công năng sử dụng
+ Tầng 1: Kinh Doanh + Bếp Ăn + WC.

+ Tầng 2: Phòng Khách + 2 Phòng Ngủ + WC.

+ Tầng 3: Phòng Thờ + 2 Phòng Ngủ + WC + Sân Chơi.

