Không thể rời mắt trước nhà phố 3 tầng hiện đại - Chủ đầu tư: Anh Hiệp, Thanh Hóa
Sở hữu lô đất phố đẹp, với mặt tiền 4.2m, anh Hiệp mong muốn lên ý tưởng và thiết kế 1 ngôi nhà vừa phù hợp nhu cầu sử dụng của các thành viên, lại hiện đại, không bị lỗi thời theo thời gian. Sau khi tìm hiểu các đơn vị thiết kế và thi công uy tín trên internet, anh Hiệp đã quyết định lựa chọn Việt Home để đồng hành cùng gia đình trong quá trình xây dựng ngôi nhà hằng mơ ước.
Cùng Việt Home khám phá mẫu nhà anh Hiệp tại Thanh Hóa trong bài viết ngày hôm nay nhé!
1. Phối cảnh 3D mặt tiền
- Chủ đầu tư: Anh Hiệp
- Địa điểm xây dựng: Quảng Cát, Thanh Hóa
- Tên công trình: Nhà phố 2 tầng 1 tum hiện đại
- Diện tích: 4.5 x 26M
- Công năng sử dụng:
+ Tầng 1: Sân để xe + Phòng khách + Bếp ăn + 1 WC + 1 Phòng ngủ
+ Tầng 2: 1 Phòng ngủ Master + 2 Phòng ngủ thường + 1WC
+ Tầng tum: Phòng thờ + + Kho + Sân phơi

Phong cách nhà 3 tầng đẹp hiện đại trẻ trung với mục đích đáp ứng nhu cầu xây dựng nhà. Đây cũng là mẫu nhà được nhiều gia đình xây dựng trên diện tích nhỏ như hiện nay. Mẫu nhà với một không gian sinh hoạt thoáng rộng trên diện tích nhỏ nhờ lối thiết kế thông minh và đầy khoa học.
Tổng thể mẫu nhà 3 tầng được thiết kế thể hiện vẻ đẹp trẻ trung nổi bật. Không có các hoa văn, phào chỉ cầu kì, ngôi nhà là sự kết hợp hài hòa giữa các khối hình khỏe khoắn.
Tổng quan cho một ngôi nhà đẹp chính là hệ mặt tiền. Mang điểm hiện đại nên hệ thống kính chiếu sáng luôn được ưu tiên. Bên đó là những cây màu xanh mang sắc màu của thiên nhiên. Giúp ngôi nhà thêm phần sắc và độc đáo hơn. Nhờ sự sáng tạo nên các điểm ban công ngôi nhà cũng được sử dụng hệ kính làm lan can. Điều này cũng đủ cho bạn thấy nhà 3 tầng đẹp tinh tế và hiện đại.
2. Bố trí công năng các tầng
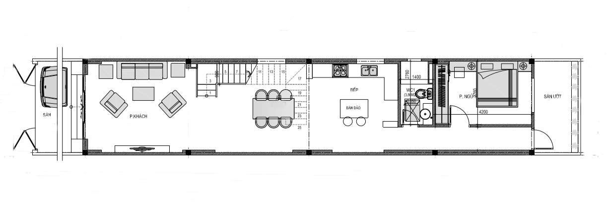
2.1. Bố trí công năng tầng 1
Sân để xe + Phòng khách + Bếp ăn + 1 WC + 1 Phòng ngủ

2.2. Bố trí công năng tầng 2
1 Phòng ngủ Master + 2 Phòng ngủ thường + 1WC

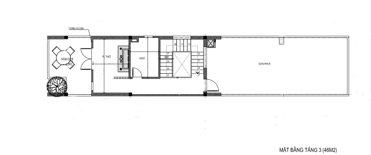
2.3. Bố trí công năng tầng 3
Phòng thờ + + Kho + Sân phơi

Bạn đang cần tìm đơn vị thiết kế và thi công một ngôi nhà đẹp, có thiết kế thanh lịch phù hợp với xu hướng hiện đại, hãy liên hệ ngay với chúng tôi để nhận được tư vấn và báo giá chính xác nhất.
