Đẹp hiện đại cùng mẫu thiết kế 2 tầng 1 tum của chủ đầu tư anh Tùng ở Phú Xuyên, Hà Nội
1. Phối cảnh 3D mặt tiền
- Chủ đầu tư: Anh Tùng
- Địa điểm xây dựng: Hà Nội
- Công năng sử dụng:
+ Tầng 1: Phòng khách + Bếp ăn + Phòng ngủ + WC
+ Tầng 2: 3 Phòng ngủ + 1 wc
+ Tầng tum: Phòng Thờ + Phòng ngủ + WC

Gia đình anh Tùng với sự ưu tiên hàng đầu về không gian sống thoải mái, tiện nghi nhưng không đánh mất đi sự sang trọng, đẳng cấp của ngôi nhà. Do đó, thiết kế biệt thự phong cách hiện đại theo xu hướng sống xanh đã được kiến trúc sư Việt Home ưu tiên thiết kế. Những gia chủ thông thường khi lựa chọn xây biệt thự đều mong muốn dành một phần diện tích cho cây cảnh với mục tiêu thoải mái cùng với thiên nhiên. Đây cũng là cách thức giúp bạn dễ dàng thư giãn sau những giờ làm việc căng thẳng, tránh xa sự xô bồ, tấp nập của xã hội ngoài kia.
Toàn bộ thiết kế đều được xây dựng bởi vật liệu hiện đại như xi măng, kính cường lực chất lượng. Thiết kế kính mang đến vẻ đẹp nhã nhặn, dịu dàng, đón ánh nắng, gió tốt nhất. Các KTS thiết kế nhiều cửa kính giúp ngôi nhà thêm phần rộng rãi và thoáng đãng hơn. Với phong cách hiện đại, các kiến trúc sư đã sử dụng những gam màu cổ điển như trắng, cam, xám giúp tổng thể ngôi nhà thêm phần nổi bật. Khung nhôm đen nổi bật trên bờ tường trắng, kính cường lực tạo nên một không gian tươi sáng, đầy sức sống.
2. Bố trí công năng sử dụng
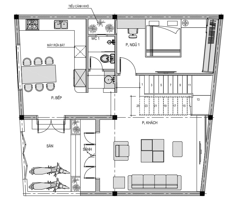
2.1. Tầng 1
+ Tầng 1: Phòng khách + Bếp ăn + Phòng ngủ + WC
.png?959)
2.2. Tầng 2
+ Tầng 2: 3 Phòng ngủ + 1 wc
.png?816)
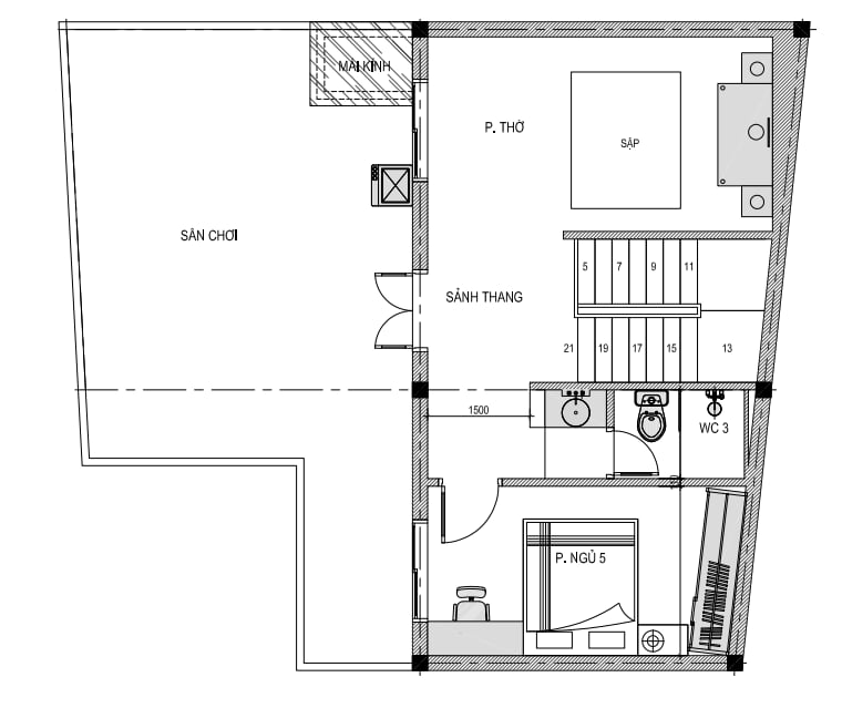
2.3. Tầng 3
+ Tầng tum: Phòng Thờ + Phòng ngủ + WC
.png?375)
