Mẫu biệt thự nhà phố 2 tầng đẹp, hiện đại - Chủ đầu tư: Anh Sơn, Yên Bái
Những năm gần đây, thiết kế biệt thự theo phong cách hiện đại đang là xu hướng và trở nên nở rộ với hình khối bố cục ngôi nhà mới mẻ, đa dạng, phá cách, vô cùng độc đáo. Mang đến cho chủ nhà không gian sống tối giản nhưng không kém phần sang trọng và tinh tế. Nếu bạn đang đi tìm kiếm ý tưởng để thiết kế cho căn nhà mơ ước của mình thì hãy cùng Việt Home chiêm ngưỡng mẫu nhà phố 2 tầng đẹp của nhà anh Sơn tại Yên Bái nhé!
1. Phối cảnh 3D mặt tiền
Chủ đầu tư: Anh Sơn
- Địa điểm xây dựng: Yên Ninh, Yên Bái
- Công năng sử dụng:
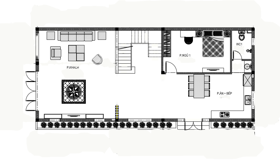
+ Tầng 1: Phòng khách + Phòng ăn + bếp + 1 Phòng ngủ + 1 WC.
+ Tầng 2: Phòng thờ + 3 Phòng ngủ master + Phòng sinh hoạt chung.

Với diện tích đất lớn và rộng rãi anh Sơn muốn xây dựng một không gian sống sang trọng, hiện đại và gần gũi với thiên nhiên. Các kiến trúc sư tại Việt Home đã tiếp nhận mong muốn ấy, thiết kế 2/3 diện tích cho việc xây dựng, còn lại là sân vườn và hàng rào bao quanh ngôi nhà.
Phần mái của nhà phố 2 tầng được thiết kế là mái phẳng tạo tầm nhìn thoáng mát, rộng rãi. Các khối kiến trúc phẳng cùng với cách bố trí cân đối, tạo cảm giác ngôi nhà rộng rãi và tràn đầy sức sống.
Bên cạnh đó, màu sắc của căn nhà được tính toán, cân nhắc kỹ càng đảm bảo sự hài hòa, đáp ứng yêu cầu của gia chủ và hợp phong thủy. Căn nhà sử dụng tone màu trung tính nhẹ nhàng như màu trắng được dùng tạo nền cho ngôi nhà, có đan xen một chút gam màu nâu, vàng của gỗ, và một chút màu xám ở gần mái.
2. Công năng sử dụng
2.1. Tầng 1
Tầng 1: Phòng khách + Phòng ăn + bếp + 1 Phòng ngủ + 1 WC.

2.2. Tầng 2
Tầng 2: Phòng thờ + 3 Phòng ngủ master + Phòng sinh hoạt chung.

Nhà phố 2 tầng được tạo nên bởi các đường nét vuông vức, tỉ mỉ, sang trọng nhưng không lỗi thời. Nếu như bạn cũng muốn sở hữu một không gian ấn tượng, độc đáo cho riêng mình thì hãy liên hệ với Việt Home ngay nhé!
