Biệt thự 3 tầng hiện đại mái bằng được xây tại Lạng Sơn - Chủ đầu tư: Anh Thiện
Mẫu nhà 3 tầng hiện đại 2 mặt tiền tại Lạng Sơn do Việt Home thiết kế có kiến trúc độc đáo cùng công năng ở các phòng được bố trí hợp lý trên từng m2 đất. Ngôi nhà phố 3 tầng phong cách hiện đại được tích hợp đầy đủ các tính năng và thể hiện rõ nét cá tính của chủ đầu tư. Việt Home đã sử dụng những hình khối vuông vắn để hình thành nên một bố cục vững vàng, mang đến cho ngôi nhà nét đặc trưng đầy phá cách.
1. Phối cảnh 3D mặt tiền
- Chủ đầu tư: Anh Thiện
- Địa điểm xây dựng: Hữu Lũng, Lạng Sơn
- Tên công trình: Biệt thự 3 tầng hiện đại
- Diện tích: 5,5x15M
- Công năng sử dụng:
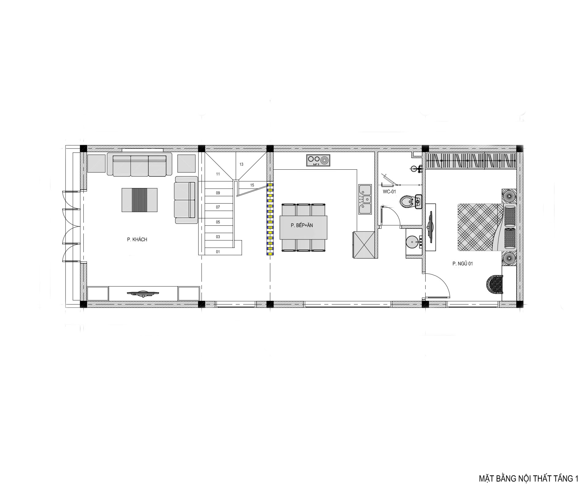
+ Tầng 1: Phòng khách + Phòng bếp + 1 Phòng ngủ + 1WC
+ Tầng 2: 3 Phòng ngủ + 1WC
+ Tầng 3: Phòng thờ + 1 Phòng ngủ + 1WC + Sân phơi

Kiến trúc hiện đại luôn thể hiện sự đơn giản và các hình khối rõ ràng nhất trong thiết kế. Vậy nên khi tư vấn thiết kế cho các công trình kiến trúc hiện đại, các kiến trúc sư thường tư vấn mẫu mái bằng để giản lược mọi chi tiết và mang đến vẻ đẹp hoàn hảo nhất cho ngôi biệt thự.
Công trình biệt thự 3 tầng hiện đại được sử dụng mái bằng với hình khối rõ ràng vuông vắn. Việc sử dụng mái bằng cũng rất phù hợp với khí hậu Việt Nam, đặc biệt là mùa mưa bão có khả năng chịu được áp lực gió tốt nhất trong tất cả các loại mái hay được sử dụng. Ngoài ra, mái bằng còn được sử dụng làm sân phơi hoặc các công trình trên cao vô cùng lý tưởng cho gia chủ.

Thiết kế nhà hộp 3 tầng hiện đại đẹp trẻ trung với màu sơn xám kết hợp màu trắng tươi sáng cùng với gạch thẻ inax và đá marble Tây Ban Nha tạo nên một mặt tiền hiện đại, sang trọng, hiệu ứng thẩm mỹ cao.
Ngôi nhà có không gian mở với 2 hướng ban công cùng hệ thống kính cường lực ở các hệ thống cửa đi và cửa sổ khiến ngôi nhà lấy được ánh sáng tự nhiên – tiết kiệm năng lượng điện đảm bảo ngôi nhà hộp 3 tầng lúc nào cũng có gió tự nhiên và thoáng đẹp.
2. Hình ảnh bố trí công năng
2.1. Tầng 1

2.2. Tầng 2

2.3. Tầng 3

Cần xem thêm mẫu nhà hãy để lại thông tin bên dưới nhé!
.
CÔNG TY CP KIẾN TRÚC XÂY DỰNG VIỆT HOME
Văn phòng Hà Nội: Tòa nhà MHDI, 89 Lê Đức Thọ, Nam Từ Liêm , Hà Nội
Hotline: 0912 301 185 / 0986 823 185 / 0396 301 185
Văn phòng Thái Nguyên: Tòa FFC Tower, 64 Hoàng Văn Thụ, tp Thái Nguyên
Hotline: 0961 301 185
Văn phòng Hải Phòng: Tòa Thành Đạt 1, số 3 Lê Thánh Tông, Ngô Quyền, Hải Phòng
Hotline: 0916 429 185
