Thiết kế nhà phố 3 tầng mái thái chị Thảo- Vĩnh Phúc
Mẫu thiết kế nhà mái thái 3 tầng mặt tiền 6m được các KTS Việt Home thiết kế cho gia đình chị Thảo ở Huyện Yên Lạc, Tỉnh Vĩnh Phúc với những nét phá cách riêng về phong cách nhà ở mới. Thiết kế được các kiến trúc sư của chúng tôi gửi tới các gia đình bằng bản phố 3D đẹp mắt và có tầm nhìn tổng quan nhất. Hãy cùng tìm hiểu mẫu nhà mái thái 3 tầng mặt tiền 6m độc đáo này ngay sau đây nhé!
Phối cảnh 3D
Căn nhà mái thái 3 tầng mặt tiền 6m x21m được thiết kế vừa hiện đại vừa mang những nét cổ điển nhẹ nhàng, tinh tế và sang trọng. Những thông tin chung của căn nhà phố như sau:
– Công năng các tầng:
+ Tầng 1: Gara + dùng để kinh doanh và 1 nhà vệ sinh chung

+ Tầng 2: Phòng khách+ bếp ăn + 02 nhà vệ sinh + 02 phòng ngủ

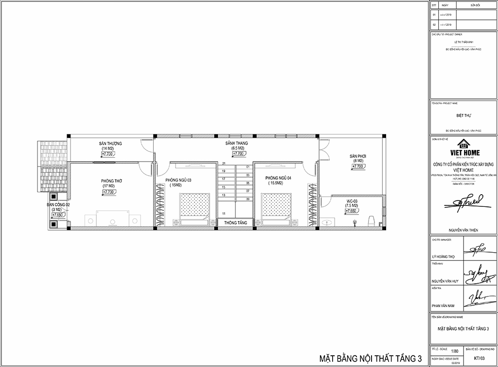
+ Tầng 3: sân phơi rộng rãi + 02 phòng ngủ + 1 nhà vệ sinh , 1 phòng sinh hoạt chung

Thiết kế đơn giản nhưng đảm bảo được các tiêu chuẩn thiết kế chính về không gian sống giúp gia đình Chị Thảo có được những không gian chung và không gian riêng đảm bảo được sự gắn kết của các thành viên và sự tiện lợi cho căn nhà. Những kiến trúc độc đáo của căn nhà mang giúp các thành viên có được những không gian sử dụng tốt nhất.

Thiết kế mái thái của căn nhà phố 3 tầng này giúp căn nhà có được những kiến trúc mới, lạ và độc đáo nhưng cũng vô cùng sang trọng và hiện đại. Nét đơn giản của mái thái kết hợp kiểu dáng chữ A giúp căn nhà có được phần mái tối ưu, khả năng che phủ tốt và thoát nước dễ dàng phù hợp với điều kiện khí hậu miền Nam Việt Nam.
– Hệ thống cửa chắc chắn an toàn và đẹp mắt. Từ cửa chính cho tới hệ thống các cửa sổ đã làm được những điểm khác biệt cho căn nhà so với kiến trúc cùng loại. Thiết kế nhà mái thái 3 tầng đẹp mặt tiền 5m với cửa chính cỡ lớn tận dụng khung kính và cửa cuốn trắng đảm bảo được sự riêng tư và an toàn cho không gian căn nhà.
Các khối cửa sổ được sử dụng khung gỗ nâu đỏ kết hợp kính trong giúp các căn phòng có ánh sáng tối ưu và màu sắc hài hòa với tổng thể kiến trúc căn nhà.
– Sơn nhà và các khối cửa, mái có được sự cân đối nhất với màu trắng kết hợp nâu đỏ nổi bật. Thiết kế nâu đỏ đảm bảo được sự cân bằng ánh sáng của màu sắc ngoại thất căn nhà và cũng khiến căn nhà có được những nét sang trọng hơi hướng hiện đại.
