Ấn tượng mẫu nhà phố 4 tầng hiện đại - Anh Sơn, Hà Nội
Nhà phố hiện đại luôn gây được ấn tượng cho người nhìn bởi vẻ đẹp khỏe khắn, hiện đại, đơn giản.
Sở hữu mặt tiền hơi xéo, anh Sơn đã liên hệ với Việt Home để được tư vấn thiết kế mẫu nhà phù hợp với nhu cầu và phong thủy các thành viên gia đình.
1. Phối cảnh mặt tiền
Chủ đầu tư: Anh Sơn
Địa điểm xây dựng: Hà Nội
Tên công trình: Nhà phố 4 tầng hiện đại
Dù nằm trong khu phố đông đúc với rất nhiều ngôi nhà cao tầng san sát, căn nhà phố hiện đại 4 tầng của anh Sơn vẫn vô cùng nổi bật bởi vẻ đẹp kiến trúc khác biệt.
Chia sẻ với chúng tôi, chủ nhân căn nhà cho biết: " Tôi rất hài lòng về mẫu thiết kế này, nó hoàn toàn giải tỏa sự lo lắng của tôi về diện tích khu đất nhỏ, mặt tiền hẹp sẽ gây khó khăn cho việc phô diễn vẻ đẹp kiến trúc. Tôi đặc biệt ấn tượng với kiến trúc mặt tiền đơn giản mà vẫn toát lên vẻ sang trọng, hài hòa màu sắc và các hình khối kiến trúc".

2. Bố trí công năng các tầng
Sở hữu lô đất 4.5x11m và mặt tiền hơi xéo nên anh Sơn rất lo lắng làm sao để bố trí đủ công năng sử dụng, vừa logic mà hợp phong thủy.
Hãy cùng xem cách bố trí mà kiến trúc sư đã bố tró cho nhà anh Sơn trong nội dung tiếp theo.
2.1. Bố trí công năng tầng 1
Gara + Bếp ăn + Sân ướt + 1 WC

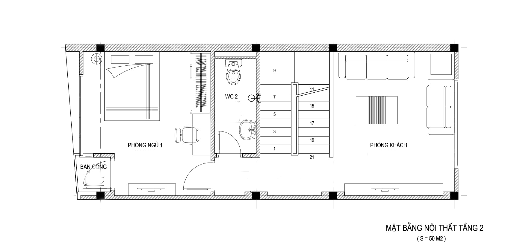
2.2. Bố trí công năng tầng 2
Phòng khách + 1 Phòng ngủ + 1 WC

2.3. Bố trí công năng tầng 3
2 Phòng ngủ + 1 WC

2.4. Bố trí công năng tầng 4
Phòng thờ + Kho + Sân phơi + Sân chơi

Với đội ngũ kiến trúc sư tài năng và giàu kinh nghiệm, Việt Home tự hào sở hữu bộ sưu tập với những nhà phố hiện đại 4 tầng đẹp được khách hàng khắp cả nước đánh giá cao. Những công trình “Độc đáo trong thiết kế – Chất lượng trong thi công” ngày càng được phủ sóng rộng rãi trên mọi tỉnh thành.
Chúng tôi cam kết mang lại không gian sống lý tưởng nhất cho bạn và gia đình.
