Biệt thự 2 tầng mái nhật đơn giản nhưng tiện nghi - Chủ đầu tư: Anh Tiến, Hà Nam
Mẫu biệt thự 2 tầng mái Nhật đẹp đã đáp ứng được nhu cầu về không gian sống và chi phí xây dựng của chủ đầu tư. Với thiết kế vuông vắn, công trình tạo ấn tượng nhờ sự phối màu hài hòa, sang trọng. Bên cạnh đó là việc lựa chọn vật liệu hiện đại mang đến một không gian sống mở thoáng mát, gần gũi với thiên nhiên.
1. Phối cảnh 3D mặt tiền
- Chủ đầu tư: Anh Tiến
- Địa điểm xây dựng: Kim Bảng, Hà Nam
- Tên công trình: Biệt thự 2 tầng mái nhật hiện đại
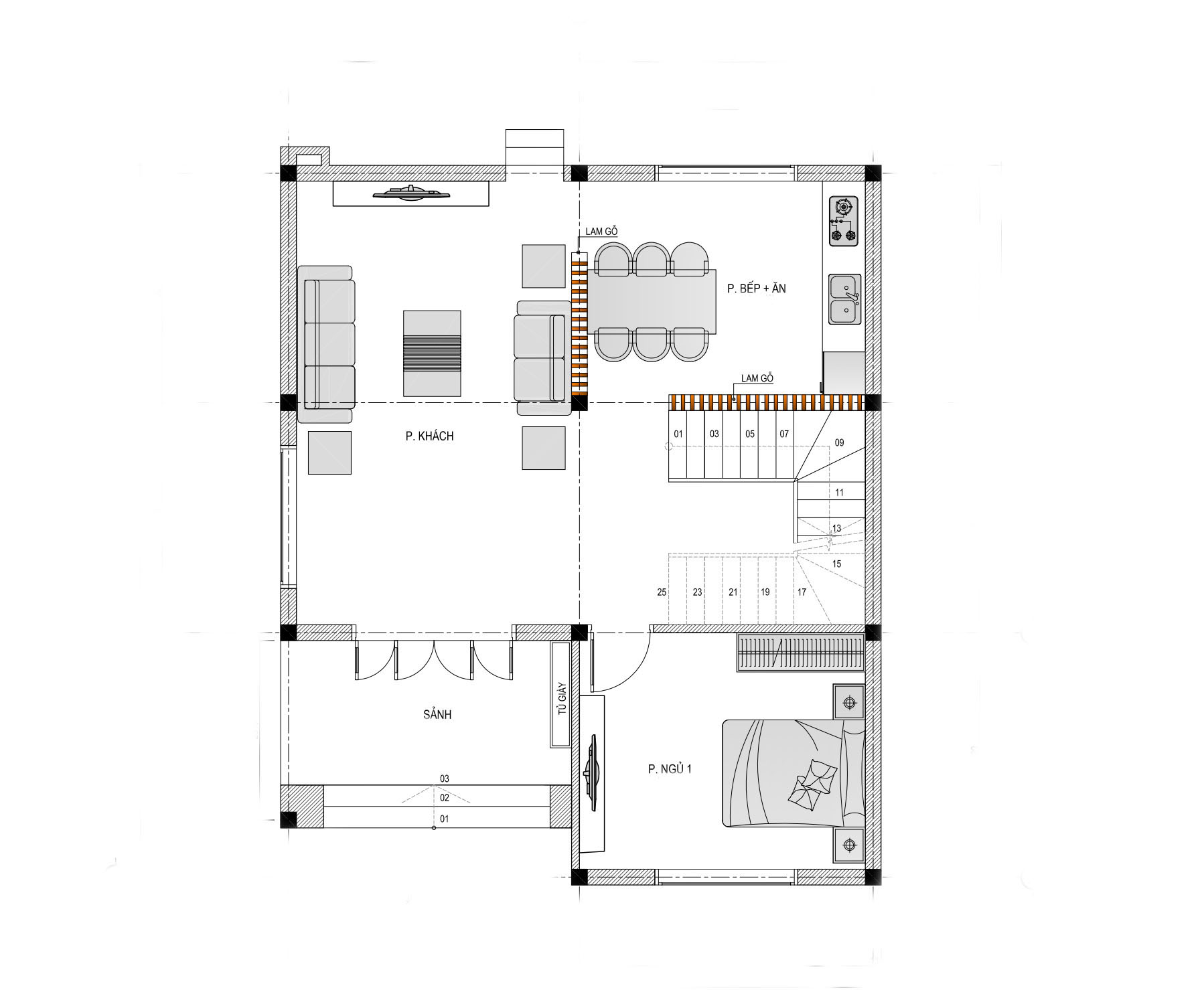
- Diện tích: 8,4x10,07M
- Công năng sử dụng:
+ Tầng 1: Phòng khách + Phòng bếp ăn + 1 Phòng ngủ
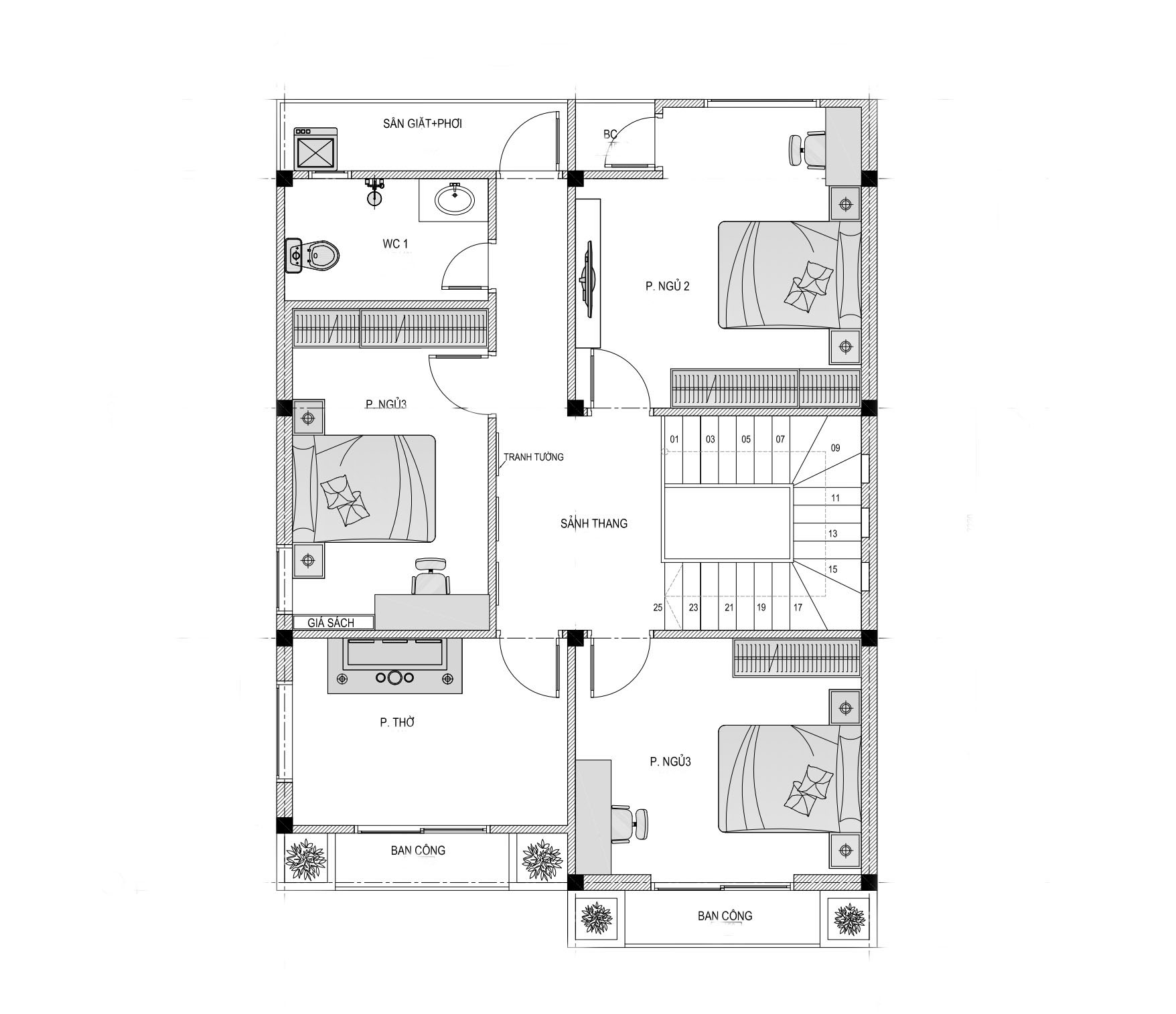
+ Tầng 2: Phòng thờ + 3 Phòng ngủ + 1WC + Sân giặt phơi + Ban công

Mẫu biệt thự 2 tầng mái Nhật đẹp tinh tế với những mảng tường cân đối, những cột trụ vuông vắn chắc khỏe có những đường nét phào chỉ cách tân mang vẻ đẹp thanh thoát, kiêu sa. Mặt tiền biệt thự có bố cục cân đối, hài hòa, khối chính đua rộng về phía trước tạo không gian sảnh và ban công rộng rãi.
Cửa chính làm bằng gỗ tự nhiên cao cấp với độ bền cao, khả năng cách âm, cách nhiệt tốt được bố trí với mật độ hợp lý giúp đón gió, lấy sáng tự nhiên tối ưu cho nội thất bên trong.
Sự kết hợp hài hòa các gam màu sắc trong mẫu biệt thự 2 tầng mái Nhật đẹp này còn trở nên nổi bật hơn qua hệ thống sân vườn xanh mát. Nằm trên một khu đất khá rộng, bên cạnh khối nhà chính thì không gian sân vườn cũng được chú trọng, quy hoạch nhằm tạo nên không gian thư giãn thoáng mát và thoải mái cho gia đình chủ đầu tư. Sân sử dụng hệ thống gạch lát chống trơn sạch sẽ phối hợp cùng hệ thống cây cảnh, chậu hoa đa sắc màu mang đến một vẻ đẹp độc đáo tự như một bức tranh phong cảnh đắt giá.
Mẫu biệt thự 2 tầng mái Nhật đẹp này còn thu hút sự chú ý của người nhìn với phần ban công được trang trí bằng lan can kính cùng hệ tiểu cảnh tạo nên khoảng không gian xanh vô cùng bắt mắt , với khu vực ban công khá rộng rãi, thoáng mát, để mỗi buổi sáng, tối các thành viên có thể ra ban công hóng gió hít thở không khí trong lành, tập thể dục, vươn vai chào ngày mới tươi đẹp.
Đây cũng chính là không gian mở giúp ngôi nhà có thể hút được một lượng gió lớn vào không gian nội thất khiến cho không khí bên trong lúc nào cũng thoáng đãng, mát mẻ. Sự phong phú về màu sắc và các loại vật liệu trang trí đa dạng đã làm cho mẫu biệt thự đẹp trở nên sinh động và ấn tượng, vừa thể hiện phong cách lịch lãm vừa toát lên sự sang trọng bề thế của mẫu nhà.
2. Hình ảnh bố trí công năng
2.1. Tầng 1

2.2. Tầng 2

3. Hình ảnh thi công thực tế


