Biệt thự 2 tầng mang phong cách mới lạ, độc đáo - Chủ đầu tư: Anh Thắng, Hải Dương
Những mẫu nhà biệt thự 2 tầng luôn là giải pháp tối ưu cho gia đình đông thành viên với những đường nét kiến trúc ấn tượng. Đội ngũ thiết kế Việt Home đã nhận được sự phản hồi tích cực từ gia chủ cho mẫu thiết kế này. Hãy để chúng tối giới thiệu tới Qúy Khách hàng mẫu biệt thự 2 tầng với 5 phòng ngủ đơn giản nhưng vẫn toát lên sự sang trọng bậc nhất hiện nay.
1. Phối cảnh 3D mặt tiền
- Chủ đầu tư: Anh Thắng
- Địa điểm xây dựng: Trung Quốc
- Tên công trình: Biệt thự 2 tầng
- Diện tích: 8,4x16M
- Công năng sử dụng:
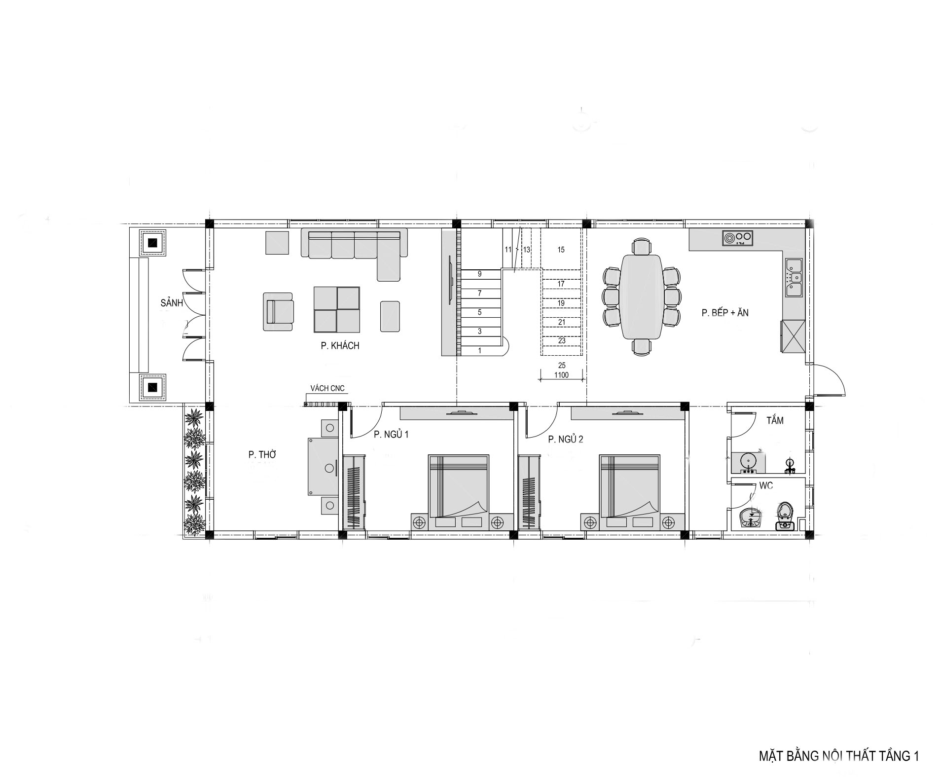
+ Tầng 1: Phòng khách và thờ + 2 Phòng ngủ thường+ Phòng bếp ăn + Nhà tắm + 1WC
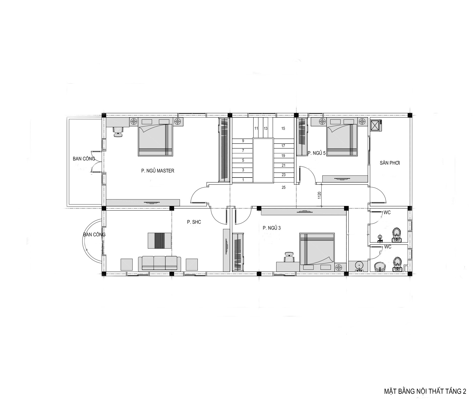
+ Tầng 2: Phòng SHC + 1 Phòng ngủ master + 2 Phòng ngủ thường + 1WC + Sân phơi

Anh Thắng hiện đang sinh sống ở Hải Dương nhưng muốn thiết kế xây cho bố mẹ một ngôi nhà ở Trung Quốc. Nhận được nhu cầu của anh, đội ngũ KTS Việt Home đã lên bản vẽ phối cảnh 3D theo hơi hướng Trung Quốc.
Mẫu biệt thự được thiết kế vuông vắn với những khối trụ chắc chắn tạo sự bề thế cho ngôi nhà. Lan can ban công được trang trí họa tiết hoa văn uốn lượn làm cho tổng thể mặt tiền không bị cứng nhắc quá.

Ngôi nhà được các KTS thiết kế màu sơn giả đá độc đáo, phá cách không nhàm chán mà vẫn toát lên sự sang trọng cần có của ngôi biệt thự.
Hầu hết các ô cửa bố trí ở mặt tiền và xung quanh ngôi nhà đều sử dụng cửa nhôm kính hiện đại. Quan sát qua hình ảnh phối cảnh, quý vị có thể dễ dàng thấy được mẫu nhà đẹp luôn tạo cho mọi người cảm giác thoải mái, với không gian thoáng rộng .
2. Mặt bằng bố trí công năng
2.1. Tầng 1

2.2. Tầng 2

Với đội ngũ thiết kế chuyên nghiệp, nhiều kinh nghiệm. Hãy để chúng tôi được phục vụ bạn với dịch vụ thiết kế tốt nhất thị trường.
