Biệt thự 2 Tầng Tân Cổ Điển Mái Nhật Sang Trọng - Xu Hướng Biệt Thự Được Ưa Chuộng 2026 - CĐT: Mr Hưởng - Hà Nội
1. Phối cảnh 3D mặt tiền
- Chủ đầu tư: Anh Hưởng
- Địa điểm xây dựng: Hà Nội
- Tên công trình: Biệt thự 2 tầng mái nhật
- Công năng sử dụng:
+ Tầng 1: Phòng thờ + Phòng khách + Bếp ăn+ Phòng ngủ khép kín + Kho + 1 WC
+ Tầng 2: Phòng ngủ Master + SHC + 2 Phòng ngủ + WC + Sân phơi

Mặt tiền biệt thự 2 tầng được thiết kế theo phong cách tân cổ điển với bố cục đối xứng chặt chẽ, tạo nên tổng thể cân đối và đầy uy nghi. Ngay từ phần mái, hệ mái Nhật màu ghi xám được thi công với độ dốc vừa phải, các lớp ngói xếp đều tăm tắp, đỉnh mái bố trí chóp trang trí nhỏ tinh tế giúp tổng thể thêm cao ráo và thanh thoát. Phần diềm mái và hệ phào chỉ chạy ngang được đắp nổi nhẹ nhàng, không quá cầu kỳ nhưng đủ tạo chiều sâu và sự chuyển tiếp mềm mại giữa các tầng. Trung tâm mặt tiền là khối sảnh chính nhô ra rõ rệt, đóng vai trò điểm nhấn chủ đạo. Hai cột vuông lớn ốp đá ở chân cột tạo cảm giác vững chãi, thân cột sơn trắng kết hợp các đường gờ kẻ chỉ sắc nét, nâng đỡ phần mái sảnh phía trên được tạo hình vòm cong uyển chuyển.
Cửa chính bằng gỗ tự nhiên cao cấp thiết kế hai cánh lớn, bề mặt chạm khắc pano nổi hình tròn trung tâm tạo điểm nhấn sang trọng, xung quanh là các ô kính nhỏ bố trí cân xứng giúp tăng ánh sáng và tính thẩm mỹ. Hai bên cửa là đèn tường phong cách cổ điển ánh vàng ấm, khi bật lên vào buổi tối làm nổi bật các đường nét kiến trúc và tăng cảm giác ấm cúng. Hệ cửa sổ tầng một và tầng hai sử dụng khung nhôm sơn đen kết hợp kính lớn trong suốt, tạo sự tương phản mạnh mẽ với gam trắng chủ đạo, đồng thời mở rộng tầm nhìn và giúp không gian nội thất luôn tràn ngập ánh sáng tự nhiên.

Tầng hai được thiết kế ban công trung tâm rộng rãi với lan can sắt mỹ thuật sơn đen thanh mảnh, hoa văn uốn nhẹ tinh tế. Hai bên ban công và các ô cửa đều được bố trí bồn hoa xanh mát, sắc hồng và tím nổi bật trên nền trắng tạo nên sự mềm mại, gần gũi thiên nhiên. Phần chân tường tầng một ốp đá màu trung tính giúp tăng độ bền và chống bám bẩn, đồng thời tạo điểm nhấn vững chãi cho công trình. Khu vực sân trước lát đá tự nhiên màu xám bóng, phản chiếu ánh sáng đẹp mắt sau mưa, hai bên là thảm cỏ, hàng cây và bụi hoa được cắt tỉa gọn gàng, kết hợp đèn sân vườn kiểu châu Âu cao thanh thoát, góp phần hoàn thiện bức tranh mặt tiền biệt thự vừa sang trọng, tinh tế vừa thể hiện rõ gu thẩm mỹ đẳng cấp của gia chủ.
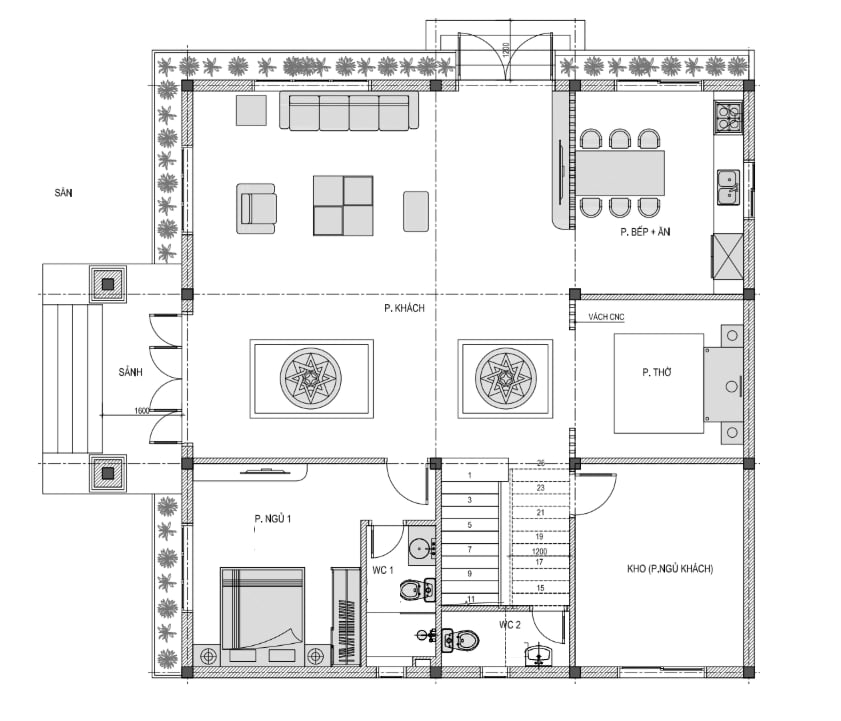
2. Hình ảnh bố trí công năng
2.1. Tầng 1
+ Tầng 1: Phòng thờ + Phòng khách + Bếp ăn+ Phòng ngủ khép kín + Kho + 1 WC
.png?609)
2.2. Tầng 2
+ Tầng 2: Phòng ngủ Master + SHC + 2 Phòng ngủ + WC + Sân phơi
.png?453)
3. Hình ảnh thi công
.png?430)
.png?7)
.png?643)
