Biệt thự 3 tầng hiện đại mái nhật sang trọng - Chủ đầu tư: Anh Thắng, Hà Nội
1. Phối cảnh 3D mặt tiền
- Chủ đầu tư: Anh Thắng
- Địa điểm xây dựng: Hà Đông, Hà Nội
- Tên công trình: Biệt thự 3 tầng mái nhật
- Công năng sử dụng:
+ Tầng 1: Phòng khách + Bếp ăn+ Phòng ngủ + 1 WC
+ Tầng 2: 1 Phòng ngủ Master + 2 Phòng ngủ thường + WC + Sân phơi
+ Tầng 3: Phòng thờ + 1 Phòng ngủ + WC

Mẫu nhà 3 tầng mái Nhật này mang đến một tổng thể kiến trúc hiện đại, tinh tế và đầy cuốn hút ngay từ cái nhìn đầu tiên. Với bố cục hình khối vuông vắn, cân đối, ngôi nhà sử dụng gam màu trắng chủ đạo kết hợp với các mảng nhấn ghi xám tạo nên vẻ đẹp sang trọng nhưng không quá cầu kỳ. Hệ mái Nhật dốc nhẹ không chỉ giúp công trình thanh thoát hơn mà còn đảm bảo khả năng chống nóng, thoát nước hiệu quả – rất phù hợp với điều kiện khí hậu tại Việt Nam.
Mặt tiền được thiết kế mở với hệ cửa kính lớn khung nhôm cao cấp, giúp tận dụng tối đa ánh sáng tự nhiên và tạo cảm giác không gian rộng rãi, thông thoáng. Các ban công ở tầng 2 và tầng 3 được bố trí hợp lý, kết hợp lan can sắt sơn tĩnh điện và cây xanh trang trí, mang lại điểm nhấn mềm mại và gần gũi với thiên nhiên. Khu sảnh chính được thiết kế bề thế với hệ cột vuông chắc chắn, cửa chính lớn tạo cảm giác sang trọng và đẳng cấp cho toàn bộ công trình.

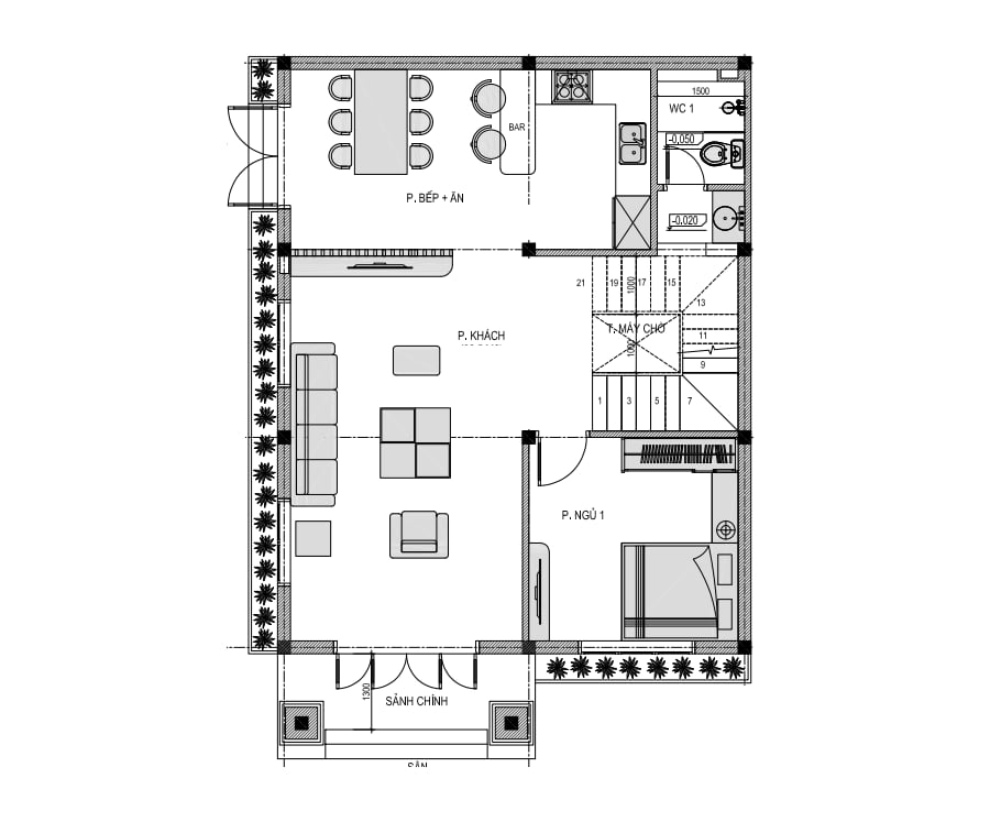
2. Hình ảnh bố trí công năng
2.1. Tầng 1
Phòng khách + Bếp ăn+ Phòng ngủ + 1 WC
.png?852)
2.3. Tầng 2
1 Phòng ngủ Master + 2 Phòng ngủ thường + WC + Sân phơi
.png?296)
2.3. Tầng 3
Phòng thờ + 1 Phòng ngủ + WC
.png?155)
Mẫu nhà 3 tầng mái Nhật này là lựa chọn lý tưởng cho những gia đình yêu thích phong cách hiện đại, sang trọng nhưng vẫn gần gũi và tiện nghi. Không chỉ đẹp về hình thức, ngôi nhà còn mang lại không gian sống chất lượng, đáp ứng đầy đủ nhu cầu sinh hoạt lâu dài.
