Biệt thự 3 tầng hiện đại mái nhật sang trọng - Chủ đầu tư: Anh Triển, Bắc Ninh
1. Phối cảnh 3D mặt tiền
- Chủ đầu tư: Anh Triển
- Địa điểm xây dựng: Bắc Ninh
- Tên công trình: Biệt thự 3 tầng mái nhật
- Công năng sử dụng:
+ Tầng 1: Phòng khách + Bếp ăn+ Phòng ngủ khép kín + 1 WC
+ Tầng 2: 2 Phòng ngủ Master + SHC + 1 Phòng ngủ thường + WC + Sân phơi
+ Tầng 3: Phòng thờ + Khu vực bếp và BBQ + 1 Phòng ngủ + WC

Mẫu nhà 3 tầng hiện đại được kts thiết kế tạo ấn tượng với thiết kế sân thượng mái kính sang trọng, tạo nên không gian thư giãn đẳng cấp và đầy cảm hứng. Mặt tiền được bố trí hài hòa giữa các mảng khối vuông vức, kết hợp lan can nghệ thuật và hệ cửa kính lớn giúp tận dụng tối đa ánh sáng tự nhiên.
Không gian sống được tối ưu công năng, phù hợp với gia đình trẻ yêu thích sự tiện nghi và phong cách hiện đại. Điểm nhấn xanh từ cây cảnh ở ban công và sân thượng mang lại cảm giác gần gũi thiên nhiên, tạo nên tổng thể vừa tinh tế vừa thoáng đãng.
Ngôi nhà sử dụng gam màu trắng chủ đạo kết hợp mảng tường ốp và lam trang trí, tạo nên tổng thể thanh lịch, không lỗi thời.
.jpg?377)
2. Hình ảnh bố trí công năng
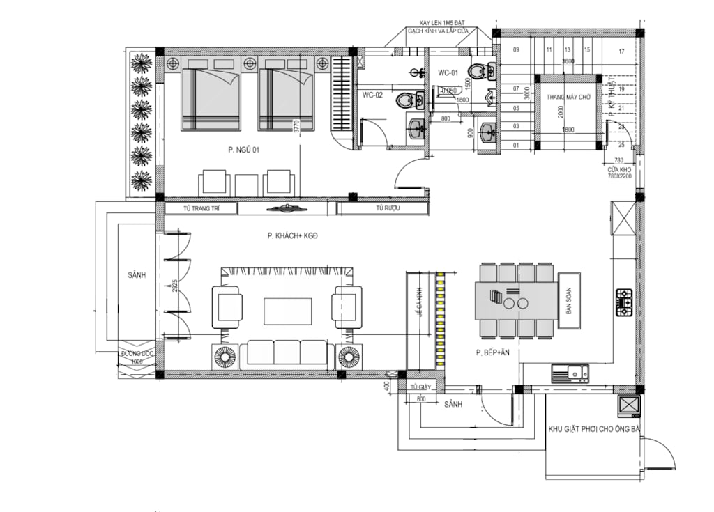
2.1. Tầng 1
Phòng khách + Bếp ăn+ Phòng ngủ khép kín + 1 WC
.png?539)
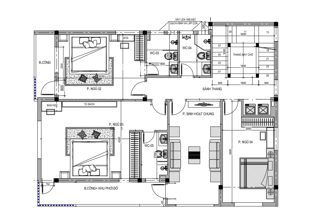
2.2. Tầng 2
2 Phòng ngủ Master + SHC + 1 Phòng ngủ thường + WC + Sân phơi
.png?338)
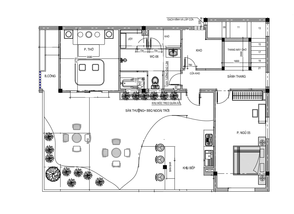
2.3. Tầng 3
Phòng thờ + Khu vực bếp và BBQ + 1 Phòng ngủ + WC
.png?386)
Mẫu nhà là lựa chọn lý tưởng cho những gia đình yêu thích sự sang trọng, tiện nghi nhưng vẫn đảm bảo chi phí hợp lý. Thiết kế này không chỉ đẹp mà còn nâng tầm chất lượng sống cho gia chủ.
