Biệt Thự Tân Cổ Điển 3 Tầng Mái Nhật - Vẻ Đẹp Sang Trọng, Đẳng Cấp - CĐT: Mr Tuyến , Hưng Yên
1. Phối cảnh 3D mặt tiền
- Chủ đầu tư: Anh Tuyến
- Địa điểm xây dựng: Hưng Yên
- Tên công trình:Biệt thự 3 tầng mái nhật
- Công năng sử dụng:
+ Tầng 1: Phòng thờ + Phòng khách + Bếp ăn+ Phòng ngủ khép kín + 1 WC
+ Tầng 2: Phòng SHC + Phòng ngủ Master + 2 Phòng ngủ + WC + Sân phơi
+ Tầng 3: Phòng thờ+ Phòng ngủ + Sân phơi

Mặt tiền của mẫu biệt thự này toát lên vẻ đẹp sang trọng, đẳng cấp và đầy quyền uy ngay từ cái nhìn đầu tiên, như một bản tuyên ngôn tinh tế về gu thẩm mỹ và vị thế của gia chủ. Tổng thể được thiết kế theo bố cục đối xứng chuẩn mực của phong cách tân cổ điển, tạo nên sự cân bằng hoàn hảo và cảm giác bề thế, uy nghi. Trung tâm công trình là khối sảnh chính cao vút, nổi bật với hệ cột trụ lớn được tạo hình chắc khỏe, thân cột được kẻ rãnh tinh tế, đầu và chân cột trang trí hoa văn mềm mại, gợi nhớ đến kiến trúc châu Âu cổ điển. Phía trên các vòm cửa là những mảng phù điêu đắp nổi tinh xảo, từng chi tiết uốn lượn đều được chăm chút tỉ mỉ, góp phần nâng tầm giá trị thẩm mỹ và tạo chiều sâu cho mặt đứng.
Cánh cửa chính cao lớn gần chạm trần, sử dụng chất liệu kính kết hợp khung kim loại hoa văn nghệ thuật, không chỉ giúp đón trọn ánh sáng tự nhiên mà còn tạo nên hiệu ứng lung linh khi ánh đèn bên trong bật sáng vào buổi tối. Hệ cửa vòm mềm mại bao quanh góp phần làm giảm sự thô cứng của các khối kiến trúc, đồng thời tăng thêm nét duyên dáng và thanh thoát. Hai bên mặt tiền là các ban công bán nguyệt được thiết kế nhô ra nhẹ nhàng, lan can sắt mỹ thuật với những đường cong uốn lượn tinh tế, kết hợp cùng các chậu hoa rực rỡ sắc màu, mang đến cảm giác sống động và gần gũi thiên nhiên nhưng vẫn giữ trọn vẻ quý phái.

Tông màu trắng chủ đạo bao phủ toàn bộ công trình như một lớp áo thanh lịch, làm nổi bật từng chi tiết phào chỉ và hoa văn trang trí, đồng thời phản chiếu ánh sáng tự nhiên giúp ngôi nhà luôn bừng sáng và nổi bật. Xen kẽ là hệ đèn tường ánh vàng ấm áp được bố trí hợp lý, không chỉ tăng tính thẩm mỹ mà còn làm nổi bật các đường nét kiến trúc vào ban đêm, tạo nên một diện mạo lung linh, đầy cuốn hút. Phần mái Nhật phía trên được thiết kế xếp lớp cân đối với gam màu tối tương phản, vừa giúp tổng thể trở nên hài hòa vừa tăng thêm chiều cao và sự bề thế cho công trình.
Không dừng lại ở đó, các chi tiết như bậc tam cấp rộng rãi, lan can đá chắc chắn hay những mảng tường được chia ô khoa học đều góp phần hoàn thiện một mặt tiền hoàn mỹ. Tất cả hòa quyện tạo nên một tổng thể kiến trúc không chỉ đẹp về hình thức mà còn thể hiện rõ khí chất sang trọng, tinh tế và đẳng cấp vượt trội, biến ngôi biệt thự trở thành điểm nhấn nổi bật và đầy tự hào trong bất kỳ không gian nào.

2. Hình ảnh bố trí công năng
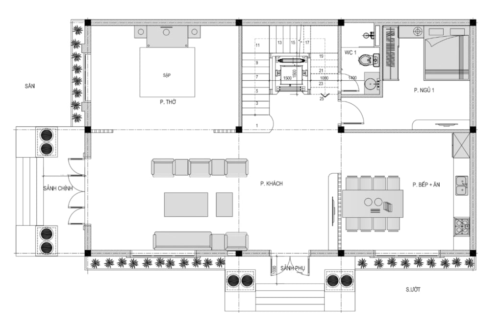
2.1. Tầng 1
+ Tầng 1: Phòng thờ + Phòng khách + Bếp ăn+ Phòng ngủ khép kín + 1 WC
.png?382)
2.2. Tầng 2
+ Tầng 2: Phòng SHC + Phòng ngủ Master + 2 Phòng ngủ + WC + Sân phơi
.png?894)
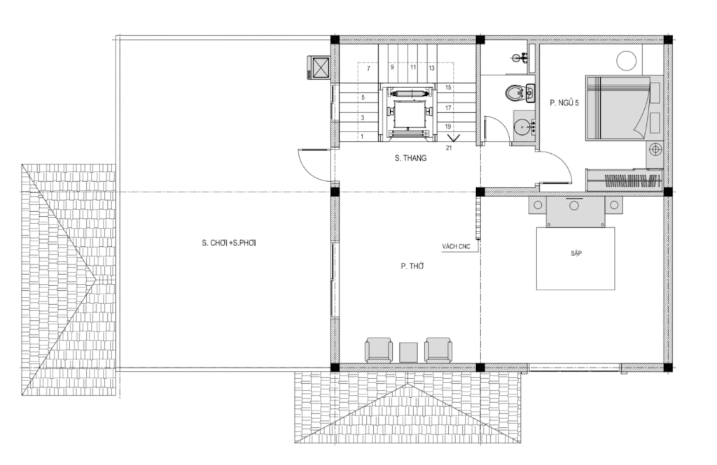
2.3. Tầng 3
+ Tầng 3: Phòng thờ+ Phòng ngủ + Sân phơi
.png?423)
3. Hình ảnh thi công thực tế
.png?655)
.png?796)
.png?34)
.png?546)
