Biệt thự vườn mái Nhật, thu hút mọi ánh nhìn - Anh Dũng, Bắc Giang
Anh Dũng, chủ đầu tư tại Bắc Giang mong muốn xây dựng mẫu nhà vườn 1 tầng để gia đình cùng sinh hoạt, sum vầy với nhau. Hiểu được điều này, kiến trúc sư Việt Home đã tham vấn và hoàn thiện cho nhà anh mẫu nhà vườn 1 tầng mái nhật. Cùng chiêm ngưỡng mẫu nhà của anh Dũng trong bài viết hôm nay nhé!
1. Phối cảnh 3D mặt tiền
- Chủ đầu tư: Anh Dũng
- Địa điểm xây dựng: Bắc Giang
- Tên công trình: Nhà vườn 1 tầng mái nhật

Mẫu nhà cấp 4 với mặt tiền được thiết kế toát lên vẻ đẹp sang trọng và lịch lãm. Thay vì sử dụng cột vuông, kiến trúc sư thay bằng cột trụ vừa toát lên vẻ bề thế lại mềm mại, thanh thoát.
Tổng thể ngôi nhà là sự kết hợp giữa sơn màu kem và ghi của ngói tạo nên vẻ đẹp tinh tế và bừng sáng giữ khung cảnh thiên nhiên tươi mát.
Như nhu cầu của gia đình, anh Dũng mong muốn bố trí cầu thang ngoài dẫn lên sân thượng. Đây là không gian để gia đình thư giãn và có những khoảng khắc thư thái thưởng trà, ngắm hoàng hôn.
Cửa sổ được thiết kế rộng và sử dụng bằng kính. Nhờ đó, ngôi nhà tiếp cận tối đa ánh sáng và mang vẻ đẹp hiện đại hơn.
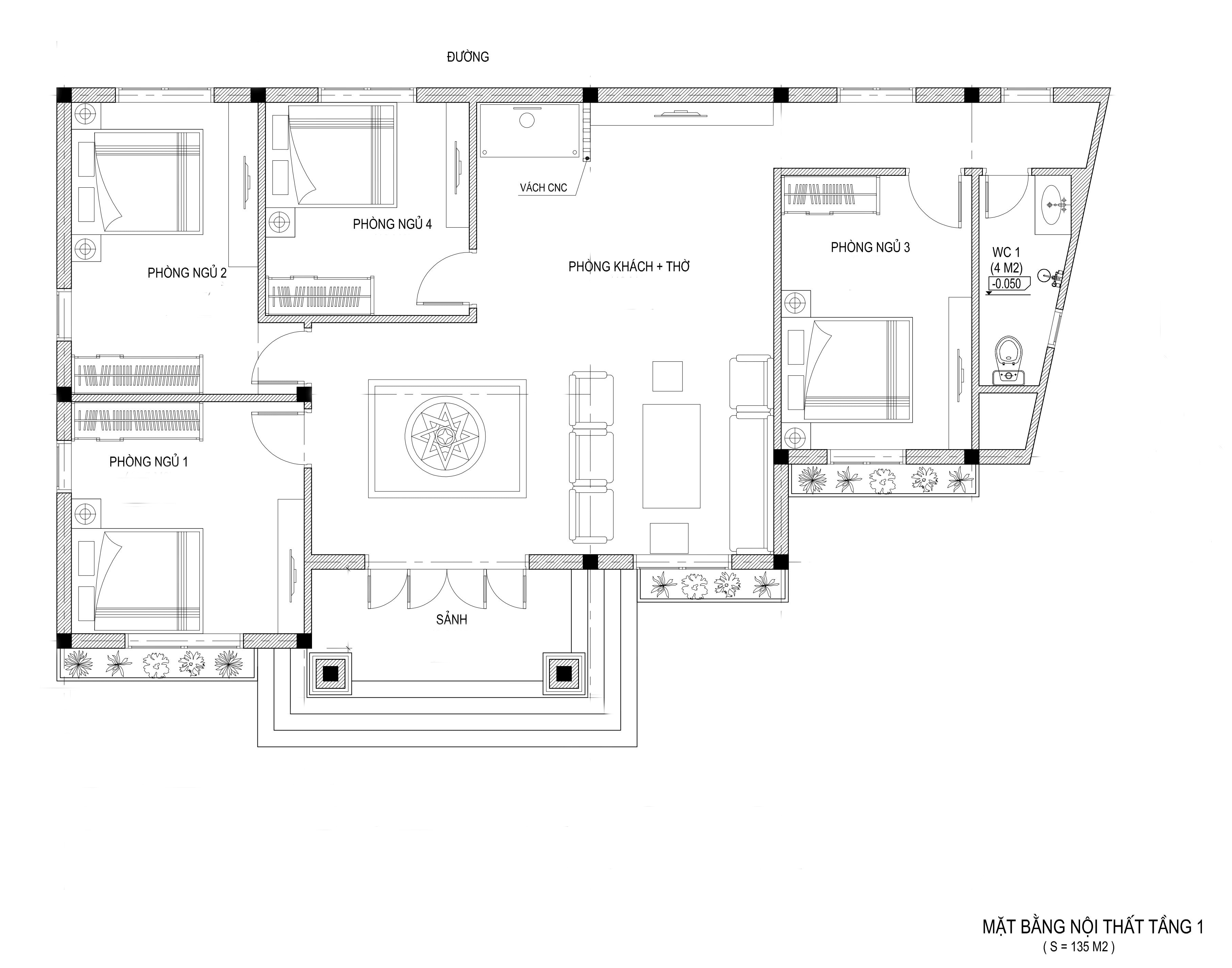
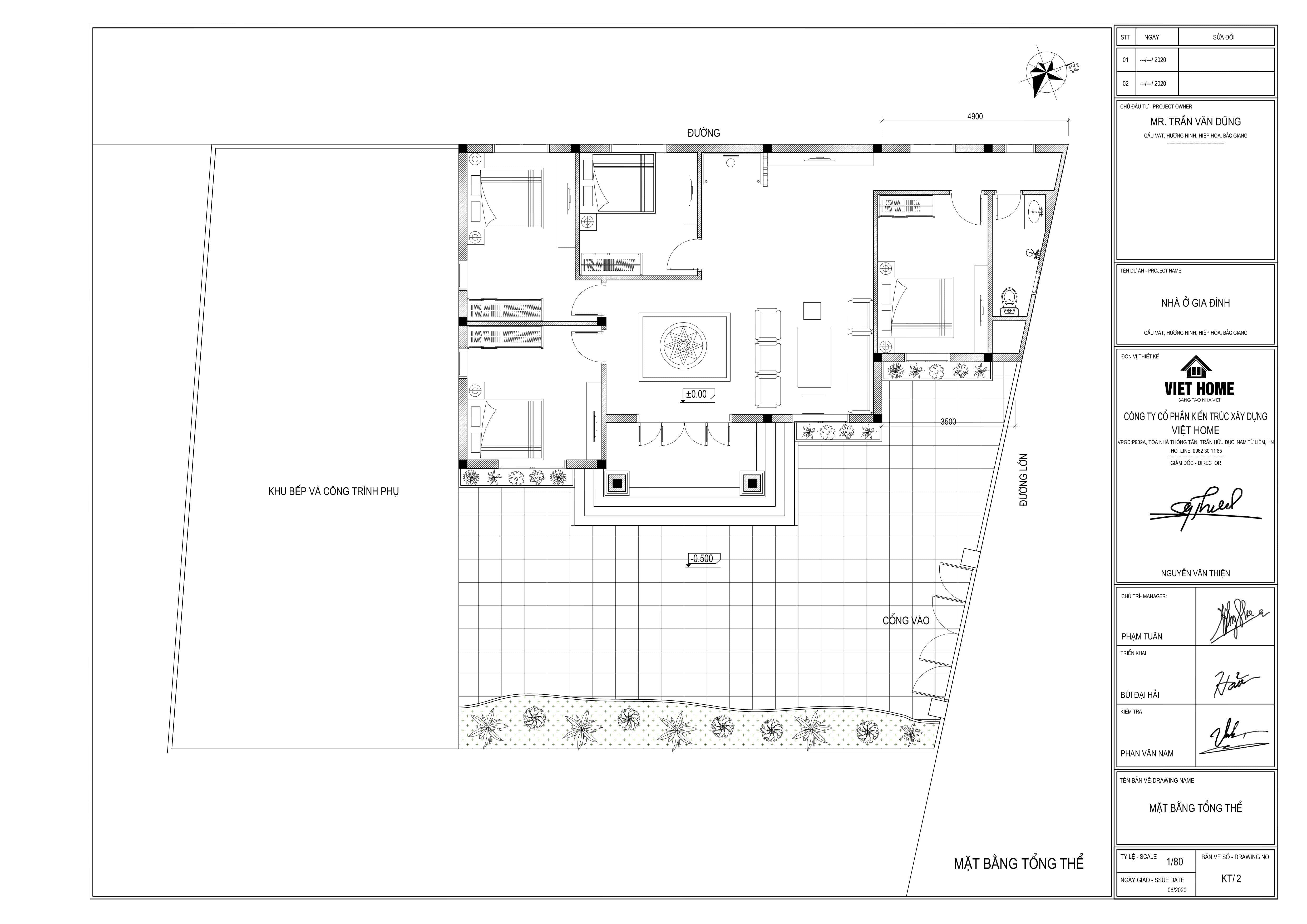
2. Bố trí công năng sử dụng
Phòng khách + Phòng thờ + 4 Phòng ngủ + 1 WC.


Bếp được thiết kế đẩy ra cuối bên phải nhà để đảm bảo tránh mùi thức ăn khi nấu nướng.
3. Hình ảnh thi công thực tế


Nếu bạn đang tìm kiếm ý tưởng cho căn nhà tương lai. Liên hệ ngay Việt Home để được chúng tôi tư vấn mẫu nhà phù hợp nhất.
