Say đắm với mẫu nhà vườn mái Nhật nhà anh Tình - Hưng Yên
Mẫu nhà cấp 4 mang những nét đặc trưng của kiến trúc thấp tầng nhưng không kém phần hiện đại. Với phong cách và kiểu dáng đa dạng, cách phối màu hài hoà, nhà cấp 4 được đánh giá cao bởi tính thẩm mỹ tinh tế, hiện đại, không gian thoáng đãng.
Khi nhắc đến những mẫu nhà đẹp cấp 4, chắc chắn mọi người sẽ nhớ ngay đến ưu điểm về cấu trúc đơn giản. Nhà cấp 4 thường phổ biến với lối thiết kế mẫu nhà cấp 4 3 - 4 phòng ngủ. Vách tường, phần mái, cột trụ,... tất cả đều rất đơn giản nhưng lại tạo ra một nét riêng cho những mẫu nhà cấp 4 3 - 4 phòng ngủ.
1. Phối cảnh 3D mặt tiền
Chủ đầu tư: Anh Tình
Địa điểm xây dựng: Hưng Yên
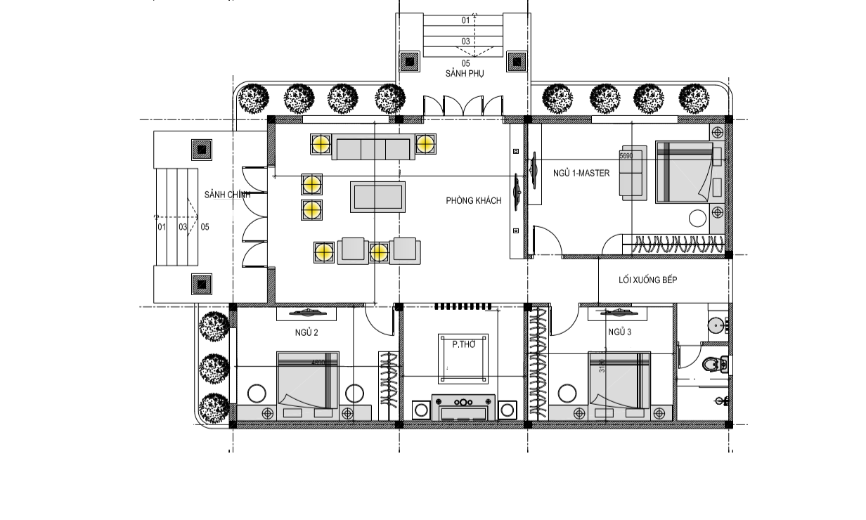
Công năng sử dụng: Phòng khách + Phòng thờ + Phòng ngủ master + 2 Phòng ngủ thường + WC

Các mẫu nhà đẹp cấp 4 rất thích hợp với khí hậu của Việt Nam cũng như kiểu kiến trúc nhà truyền thống của người Việt nên được nhiều gia chủ quan tâm lựa chọn. Lối thiết kế nhà cấp 4 sở hữu hệ thống cửa chính lớn, cùng với sân vườn tạo nên không gian thoáng đãng, bình yên ngay cả khi bạn đang sống ở thành phố.
Quá trình thi công và thiết kế nhà cấp 4 thấp tầng khá nhanh chóng, giúp gia chủ sớm hoàn thiện công trình và hạn chế chi phí phát sinh. Chỉ với chi phí tầm 500 triệu cho đến 1 tỷ đồng, bạn có thể hoàn toàn thi công được mẫu nhà đẹp cấp 4 hiện đại, công năng tối ưu theo nhu cầu của gia đình và công năng sử dụng.

2. Bố trí công năng sử dụng
Công năng sử dụng: Phòng khách + Phòng thờ + Phòng ngủ master + 2 Phòng ngủ thường + WC

3. Hình ảnh thi công thực tế

.png?901)
.png?580)
