Biệt thự vườn mái Thái với 3 phòng ngủ đẹp mắt - Anh Hà, Hưng Yên
Mẫu nhà vườn mái thái với thiết kế hiện đại, đơn giản, nhưng cũng đủ để tạo nên sức sống cuốn hút đối với nhiều người. Nhiều khách hàng của Việt Home, trong đó có anh Hà tại Hưng Yên cũng rất yêu thích kiểu nhà này. Hãy cũng khám phá vẻ đẹp mẫu nhà vườn mái Thái của anh trong bài hôm nay nhé!
1. Phối cảnh 3D mặt tiền
- Chủ đầu tư: Anh Hà
- Địa điểm xây dựng: Hưng Yên
- Tên công trình: Nhà vườn 1 tầng mái Thái

Được xây dựng trên tổng diện tích khá à rộng, kiến trúc sư có điều kiện hơn để hoàn thiện phối cảnh thiết kế biệt thự hiện đại 1 tầng. Mặt tiền thiết kế tiền sảnh rộng, bậc ngũ cấp cao sử dụng đá tự nhiên đem đến sức sống bền bỉ cho không gian thiết kế.

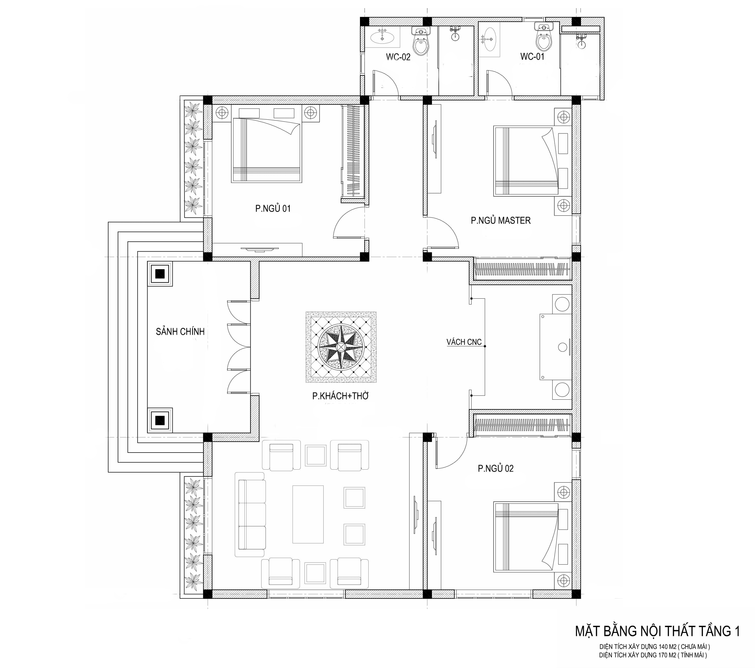
2. Bố trí công năng
Phòng khách + Phòng thờ + 1 Phòng ngủ Master khép kín + 2 Phòng ngủ thường + 1 WC

Với nhiều kinh nghiệm trong lĩnh vực thiết kế và thi công nhà ở. Việt Home tự hào là đơn vị sở hữu nhiều công trình dân dụng mang tính thẩm mỹ và sử dụng cao. Bạn đang cần tìm đơn vị triển khai xây dựng mẫu nhà tương lai? Liên hệ ngay chúng tôi để được tư vấn phù hợp nhất.
