Cận cảnh biệt thự Tân cổ điển 3 Tầng tại Hưng Yên - Chủ đầu tư: Anh Hải
Mẫu thiết kế nhà của anh Hải mang nét đẹp sang trọng và kiều diễm thể hiện đẳng cấp dành cho gia chủ và góp phần khẳng định thêm vị thế của gia chủ trong xã hội. Sự kết hợp của các chi tiết cổ điển, các đường cong mềm mại và phức tạp tạo nên cảm giác choáng ngợp cho người nhìn trước sự bề thế, vững chãi của ngôi nhà.
1. Phối cảnh 3D mặt tiền
Chủ đầu tư: Anh Hải
Địa điểm xây dựng: Hưng Yên
Tên công trình: Biệt thự tân cổ điển 3 tầng

Biệt thự 3 tầng cổ điển gây nổi bật cho người nhìn ở đường nét kiến trúc được chăm chút tỉ mỉ từ những phào chỉ hay chi tiết trang trí.
Những đường nét phào chỉ sang trọng và xa hoa kết hợp với tạo hình đầy nghệ thuật mà kiến trúc sư tạo nên đã khiến cho tổng thể công trình trở nên vô cùng hoàn hảo.
Công trình nổi bật với tầng 1 được thiết kế ốp hoàn toàn bằng đá cẩm thạch xa hoa đã mang đến cho người sử dụng một công trình vô cùng sang trọng và nổi bật.

Hệ thống cửa sổ và cửa ban công chiếm tỉ lệ lớn trên mặt đứng và được thiết kế vô cùng tinh xảo. Hệ ban công rộng giúp cho không gian sống trở nên thoáng đãng, chiếm chọn tầm nhìn ra không gian bao la của sân vườn.

Mái Mansard là lựa chọn vô cùng chuẩn xác để ngôi nhà mang đậm nét đẹp tân cổ điển. Kết hợp cùng các ô cửa sổ vòm mang đến sự thông thoáng cho căn nhà. Việc lựa chọn màu sơn trắng, vàng chính là màu chủ đạo và nổi bật lên nét đẹp của những ngôi biệt thự mang phong cách tân cổ điển châu Âu.
2. Bố trí công năng các tầng
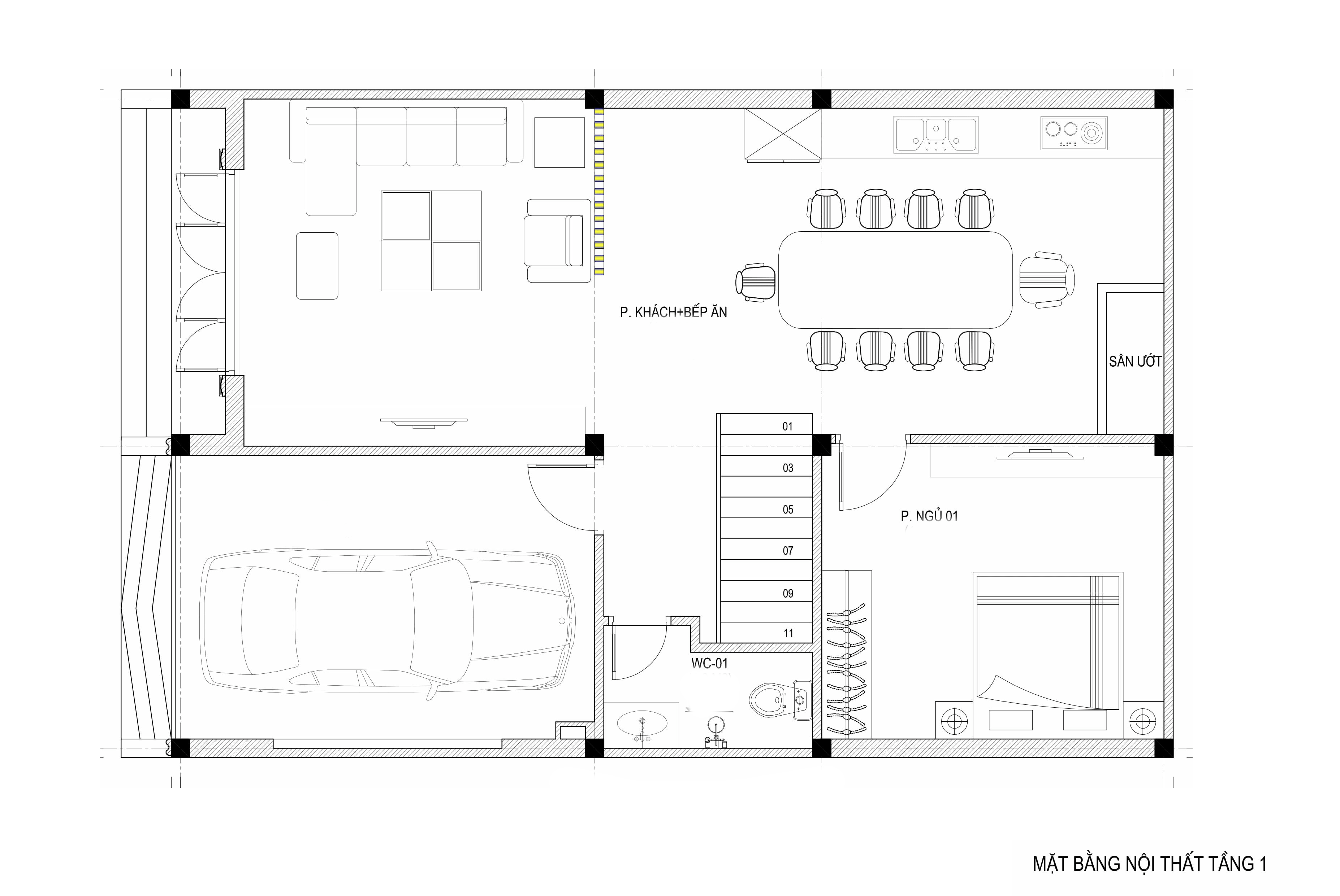
2.1. Bố trí công năng tầng 1
Gara + Phòng khách + Phòng bếp + 1 Phòng ngủ + 1 Wc + Sân ướt

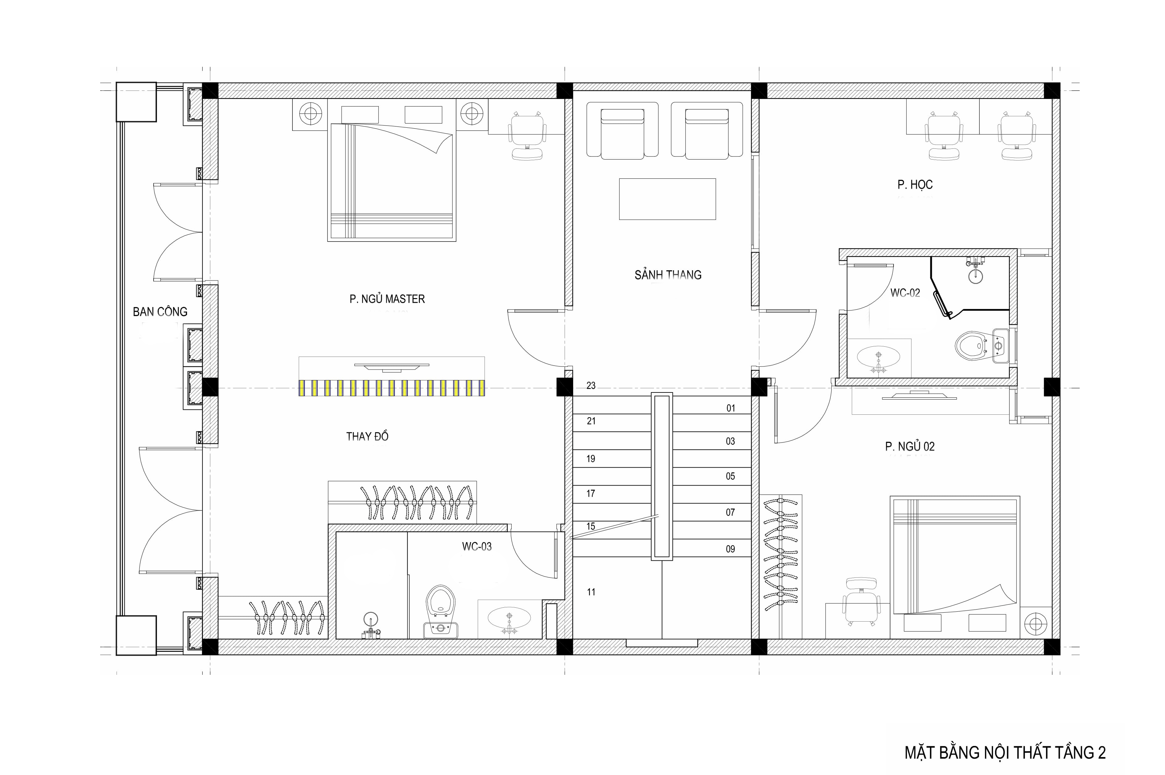
2.2. Bố trí công năng tầng 2
Sảnh tầng 2 + 2 Phòng ngủ Master + Ban công

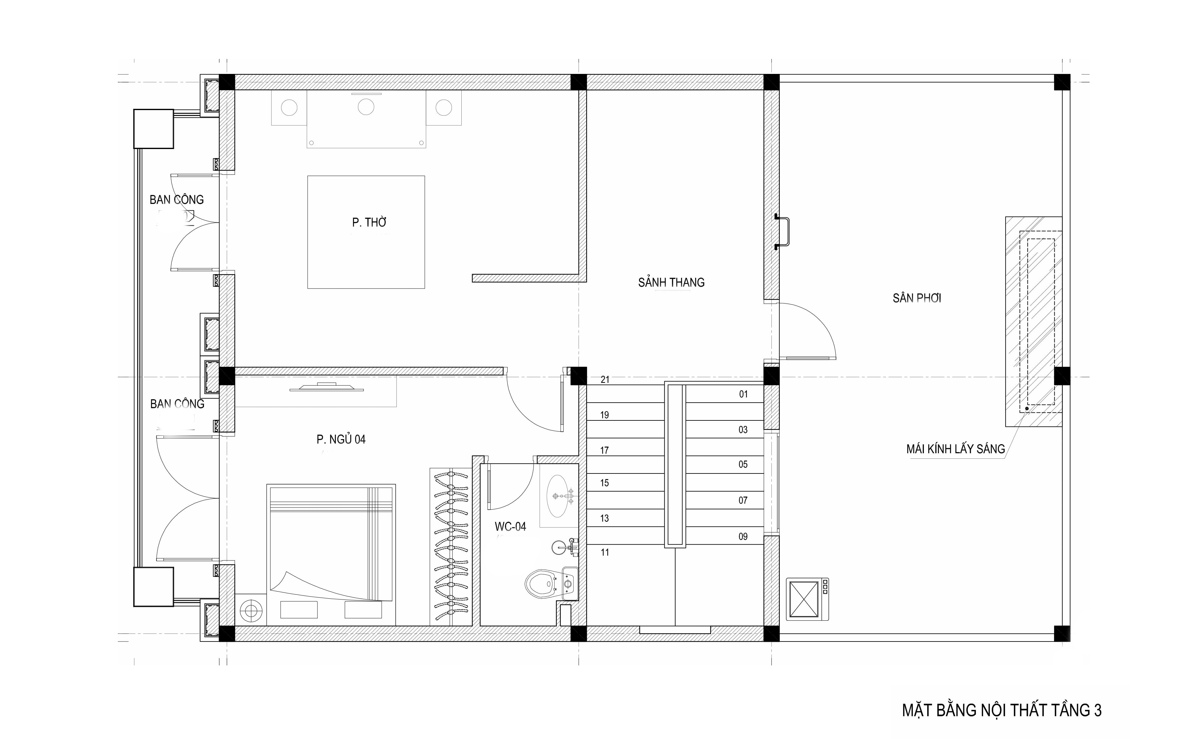
2.3. Bố trí công năng tầng 3
Phòng thờ + 1 Phòng ngủ khép kín + Sân chơi + Sân phơi + Ban công

3. Hình ảnh hoàn thiện


Quý vị hãy liên hệ ngay với chúng tôi để sở hữu cho mình những mẫu bản vẽ thiết kế biệt thự đẹp cùng dịch vụ xây nhà trọn gói chất lượng. Việt Home hi vọng sẽ tiếp tục nhận được sự tin tưởng hợp tác và nhiệt thành ủng hộ từ Quý đối tác .
