Cập nhật thêm mẫu thiết kế biệt thự hiện đại tại Hà Tĩnh - Chủ đầu tư: Anh Quảng
Một ngôi nhà đẹp không chỉ thể hiện kiến trúc tinh tế cùng gu thẩm mỹ của gia chủ, mà còn đem đến không gian sống ấm áp, gắn kết gia đình. Vì thế mà mẫu thiết kế nhà 2 tầng hiện đại được khá nhiều gia đình trẻ lựa chọn.
1. Phối cảnh 3D mặt tiền
- Chủ đầu tư: Anh Quảng
- Địa điểm xây dựng: Hà Tĩnh
- Tên công trình: Biệt thự 2 tầng hiện đại mái bằng
- Diện tích: 10,84x8M
- Công năng sử dụng:
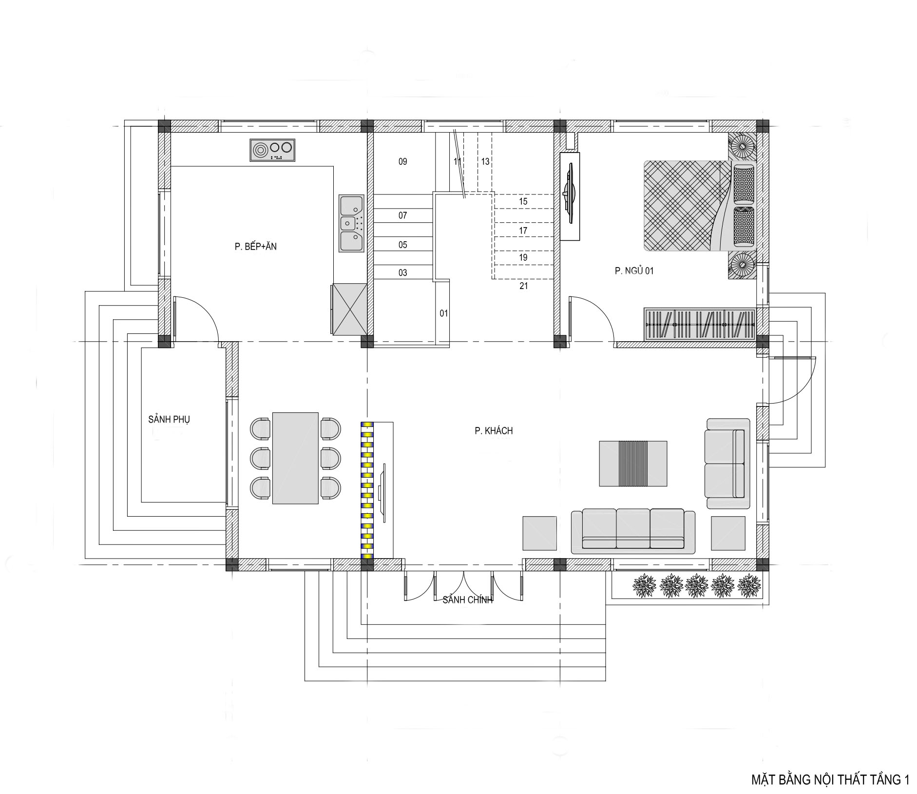
+ Tầng 1: Phòng khách + Phòng bếp ăn + 1 Phòng ngủ
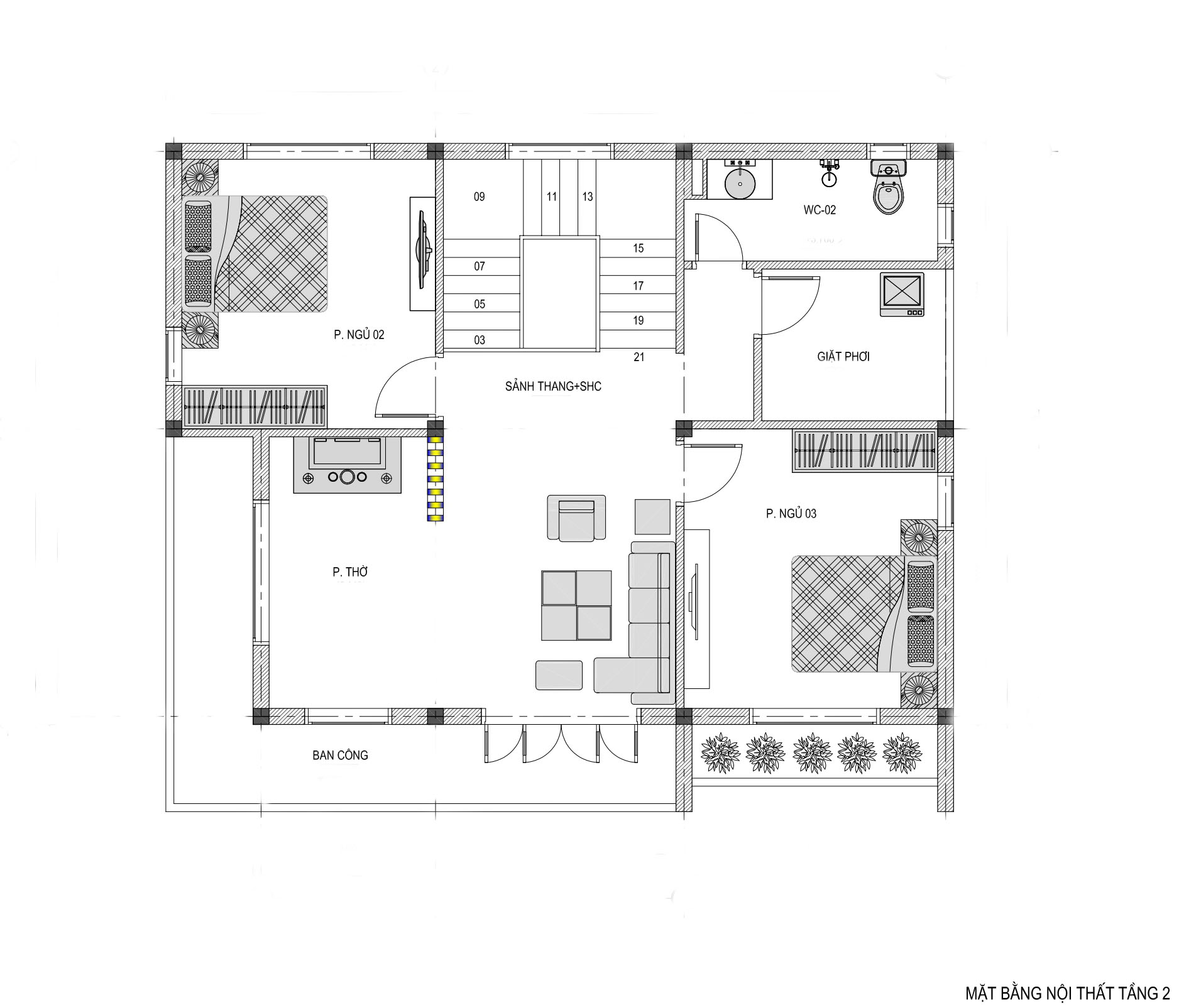
+ Tầng 2: Phòng thờ + Phòng SHC + 2 Phòng ngủ + 1WC + Giặt phơi

Kiến trúc ngôi nhà với phong cách hiện đại được thiết kế xuyên xuất. Tổng thể đường nét kiến trúc mang tính đơn giản, hình khối rõ nét, mạch lạc mang đến cảm giác hiện đại, chắc chắn cho ngôi nhà. Ngôi nhà 2 tầng được sơn kết hợp giữa trắng và ghi mang đến sự trẻ trung, hiện đại cho một gia đình trẻ.

Các đường nét kiến trúc mạch lạc, mới mẻ kiến ngôi mặt tiền nhà 2 tầng hiện đại trong bắt mắt, và thẩm mỹ hơn.

Lan can kính cường lực, hệ thống cửa nhôm kính càng mang đến sự đơn giản, hiện đại. Với hệ thống cổng, tường rào giúp bảo vệ ngôi nhà an toàn hơn, và làm tăng tính thẩm mỹ cho ngôi nhà. Với vật liệu thép hộp sơn đen, kết hợp gỗ nhựa ngoài trời mang đến màu sắc tươi trẻ cho ngôi nhà, ngôi nhà phố hiện đại 2 tầng trông tươi vui, năng lương hơn.
2. Hình ảnh bố trí công năng
2.1. Tầng 1

2.2. Tầng 2

.
