Chiêm ngưỡng biệt thự 2 tầng mái nhật đỉnh cao được xây dựng tại Hà Nội - Chủ đầu tư: Cô Hằng
Mẫu biệt thự 2 tầng hiện đại mái Nhật đang là thiết kế đáp ứng trọn vẹn các yêu cầu của chủ đầu tư từ kiến trúc đến công năng cũng như chi phí xây dựng. Thiết kế không quá cầu kì, không cần sử dụng những họa tiết phức tạp nhưng vẫn toát lên vẻ đẹp hiện đại khó cưỡng. Kiến Trúc Việt Home xin trân trọng mời các quý chủ đầu tư tham khảo thiết kế biệt thự hiện đại 2 tầng mái Nhật của gia đình cô Hằng - Hà Nội do kiến trúc sư của Kiến Trúc Việt Home lên ý tưởng thiết kế.
1. Phối cảnh 3D mặt tiền
- Chủ đầu tư: Cô Hằng
- Địa điểm xây dựng: Chương Mỹ, Hà Nội
- Tên công trình: Biệt thự 2 tầng mái nhật hiện đại
- Diện tích: 11,87x12,74M
- Công năng sử dụng:
+ Tầng 1: Phòng khách + Phòng thờ + Phòng bếp + 1 Phòng ngủ khép kín + 1WC
+ Tầng 2: Phòng SHC + Phòng karaoke + 1 Phòng ngủ master + 3 Phòng ngủ + Phòng xông hơi + 1WC
.jpg?847)
Giữa hàng loạt những ngôi nhà thôn quê đơn điệu cùng thiết kế buồn tẻ, thì thiết kế ngoại thất biệt thự 2 tầng phong cách hiện đại phóng khoáng này như làm bừng sáng cả một khuôn viên đô thị cảnh quan Chương Mỹ. Không quá phô trương hay tham lam những chi tiết hoa văn nặng nề, biệt thự 2 tầng nhấn vào việc sử dụng vật liệu hiện đại một cách thông minh, khoa học.
Hệ thống cửa kính là một cách bố trí hài hòa giữa vật liệu kính và các loại nguyên liệu khác. Tất cả sẽ tạo nên được một chỉnh thể hoàn chỉnh. Cũng như tận dụng được tối đa lượng ánh sáng và sự kết nối đối với các thiết kế này. Ưu điểm lớn nhất của hệ thống cửa kính chính là có được khả năng chịu lực tốt, cách âm và cũng tạo được yếu tố thẩm mỹ cho căn nhà đẹp.
.jpg?158)
Phần mái Nhật được phân lớp từng tầng tạo nhịp độ liên tiếp mắt đều đặn linh hoạt. Kiểu dáng mái xòe với kết cấu mái được lập vững chắc trước khi dán ngói mang lại vẻ đẹp vững bền cùng thời gian cho công trình. Mái ngói Nhật với độ dốc vừa phải giúp thoát nước nhanh mùa mưa, tạo lớp không khí đệm chống nóng mùa nắng mà vẫn tiết kiệm chi phí cho gia đình, cân bằng chiều cao ngôi nhà vườn đẹp. Mái lợp thành từng hệ lớp thống nhất kiểu dáng, sắc độ cho cảm nhận chỉnh thể thống nhất cân xứng mắt.
Biệt thự được quy hoạch không gian diện tích xây dựng và sân vườn một cách hợp lý, khoa học. Phần lớn diện tích được ốp gạch block láng sân sạch sẽ, không gian cảnh quan còn lại được tư vấn trồng thêm các cây xanh phong thủy không chỉ giúp thanh lọc không khí mà còn mang lại sức khỏe cho gia đình.
Mọi không gian diện tích đều được tính toán vị trí bố trí và diện tích phù hợp với nhu cầu sử dụng đồng thời đảm bảo tính phong thủy chuẩn chỉ theo mệnh, tuổi gia chủ mang lại không gian vượng tài vượng lộc cho gia đình.
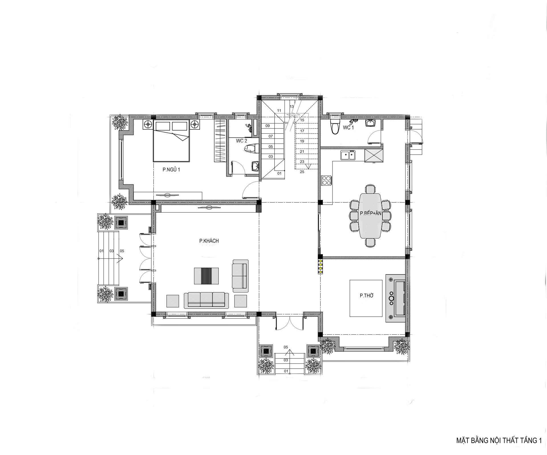
2. Hình ảnh bố trí công năng sử dụng
2.1. Tầng 1

2.2. Tầng 2

3. Hình ảnh giám sát thi công





.png?578)
.png?852)
.png?275)
.png?827)


.png?275)
