Chiêm ngưỡng mẫu biệt thự 2 tầng tại Thái Nguyên
Ngày nay, những biệt thự hiện đại ngày càng được yêu thích và khẳng định vị thế của mình. Phong cách thiên về hình khối kết hợp sử dụng vật liệu hiện đại đã tạo ra sự kết nối giữa con người với thiên nhiên.
Việt Home sẽ giới thiệu 1 mẫu biệt thự 2 tầng đẹp tại Thái Nguyên trong bài viết ngày hôm nay.
1. PHỐI CẢNH 3D MẪU BIỆT THỰ

Mẫu biệt thự 2 tầng đẹp
Nhìn tổng thể, ngôi nhà là sự kết hợp hài hòa giữa phong cách thiết kế hiện đại với các đường thẳng, khỏe khoắn với phối cảnh thiên nhiên xung quanh. Điều này giúp căn nhà vừa hiện đại lại gần gũi.

Mẫu biệt thự đẹp

Mẫu biệt thự 2 tầng đẹp
Ngôi nhà không sử dụng quá nhiều hoa văn, phào chỉ hay các chi tiết tinh xảo. Nhưng đây lại là kết hợp hoàn hảo của sự tinh tế, hoài niệm giúp chủ nhân căn nhà có 1 không gian sống thoải mái.
Mặt tiền căn nhà khá rộng rãi kết hợp với việc sử dụng nhiều cửa kính giúp căn nhà lấy sáng tự nhiên.
Nhìn vào phối cảnh 3D này, các bạn có thể thấy được một tổng thể hài hoà, công trình và thiên nhiên xung quanh như hoà quyện lại với nhau để trở thành một bức tranh hoàn hảo. Chính sự điều này góp phần lớn trong việc tạo nên sự bề thế của ngôi nhà. Các tầng được tách bạch một cách rõ rệt với phần lan can ở mỗi tầng.
2. MẶT BẰNG THIẾT KẾ - CÔNG NĂNG
Sau khi trao đổi với gia chủ về công năng sử dụng, đơn vị thiết kế đã nghiên cứu và thống nhất sử dụng mặt bằng thiết kế như sau:
Công năng tầng 1: Phòng khách + Phòng bếp + 1 Phòng ngủ khép kín + WC

Mặt bằng tầng 1

Mặt bằng công năng tầng 1
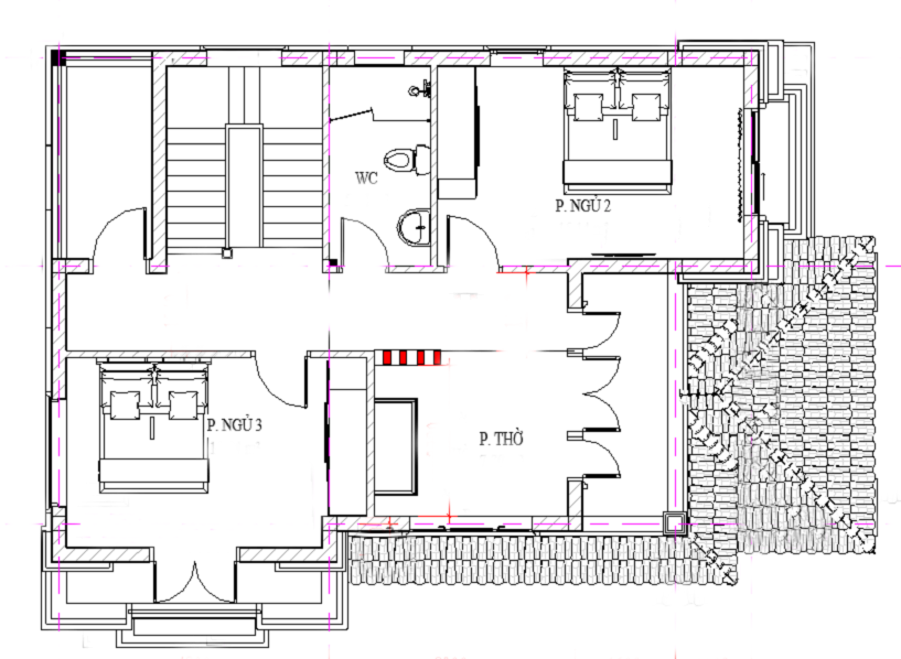
Công năng tầng 2: 2 Phòng ngủ + 1 phòng thờ + WC

Mặt bằng tầng 2

Mặt bằng công năng tầng 2
Đọc đến đây, chắc hẳn bạn đang rất thắc mắc rằng: Không biết Mẫu biệt thự đẹp về hình thể, công năng sử dụng thì tuyệt vời đến mức đó thì giá như thế nào? Xin thưa các bạn, mỗi một ngôi nhà với vật liệu sử dụng khác nhau, giá nhân công tại khu vực lại khác nhau dẫn tới giá thành sẽ khác nhau.
Tuy nhiên, khi đến với Việt Home, chúng tôi không chỉ tư vấn cho bạn mẫu mà phù hợp mà còn lên dự trù xây dựng để bạn tính toán mức tài chính phù hợp nhất.
Liên hệ ngay với chúng tôi qua hotline 0912 30 11 85 để nhận tư vấn phù hợp nhất.
