Chiêm ngưỡng mẫu biệt thự hiện đại 3 tầng - Anh Đức, Tuyên Quang
Mẫu biệt thự 3 tầng được Việt Home thiết kế cho gia đình anh Đức - Tuyên Quang không chỉ đầy đủ công năng, phong thủy mà còn vô cùng hài hòa, hiện đại.
Trong bài viết hôm nay, Việt Home sẽ giới thiệu mẫu nhà cùng bố trí các tầng để bạn đọc cùng tìm hiểu.
1. Phối cảnh 3D mặt tiền
- Chủ đầu tư: Anh Đức
- Địa điểm xây dựng: Tuyên Quang
- Tên công trình: Biệt thự hiện đại 3 tầng

Sở hữu lô đất mặt tiền không quá rộng, nhưng vẫn mong muốn thiết kế 1 căn nhà thoáng mát. Đúng như yêu cầu của chủ nhà, kiến trúc sư đã bắt tay vào thiết kế mẫu nhà biệt thự với phong cách hiện đại, sử dụng tối đa kính cường lực để đảm bảo độ thông thoáng và ánh sáng trong nhà.

Cửa sổ và cửa ban công được thiết kế mở rộng không những tạo không gian mở mà còn tạo vẻ đẹp hiện đại, sang trọng cho toàn bộ kiến trúc bên ngoài.
2. Bố trí công năng các tầng
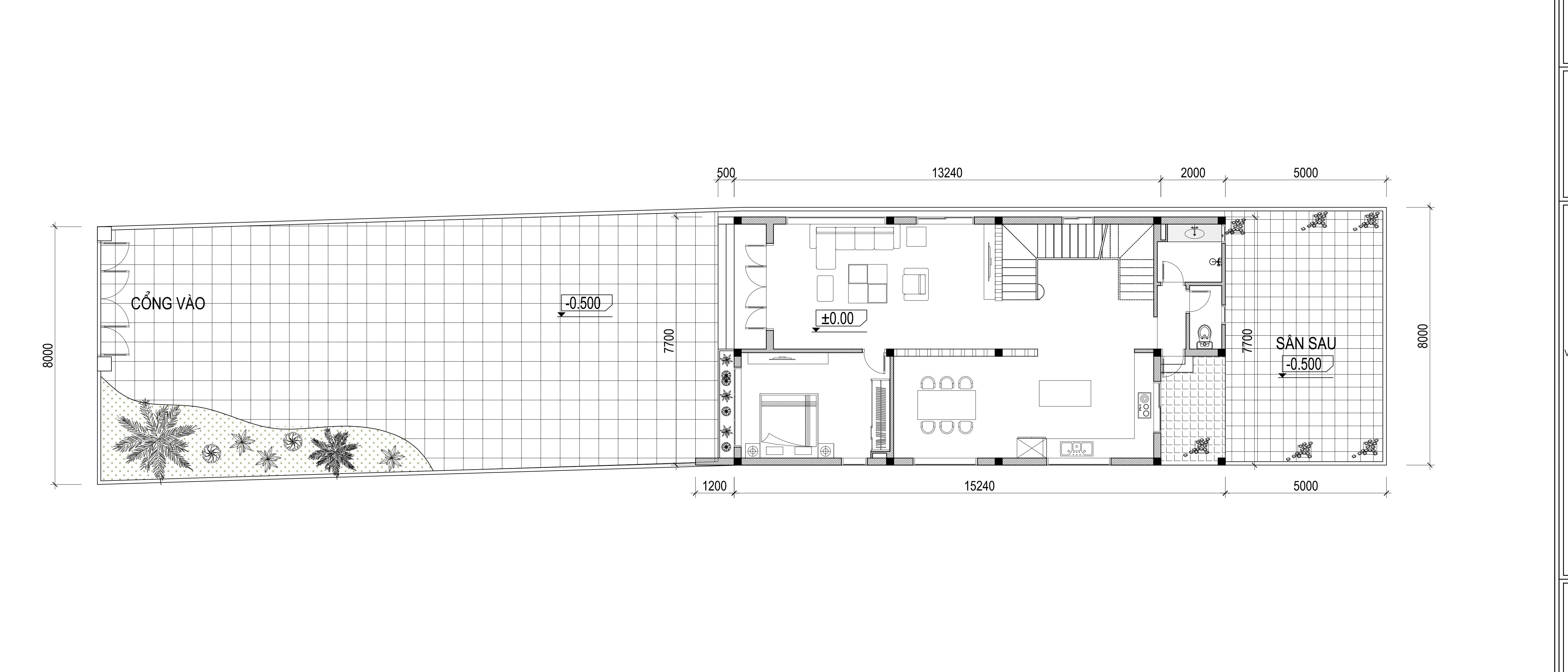
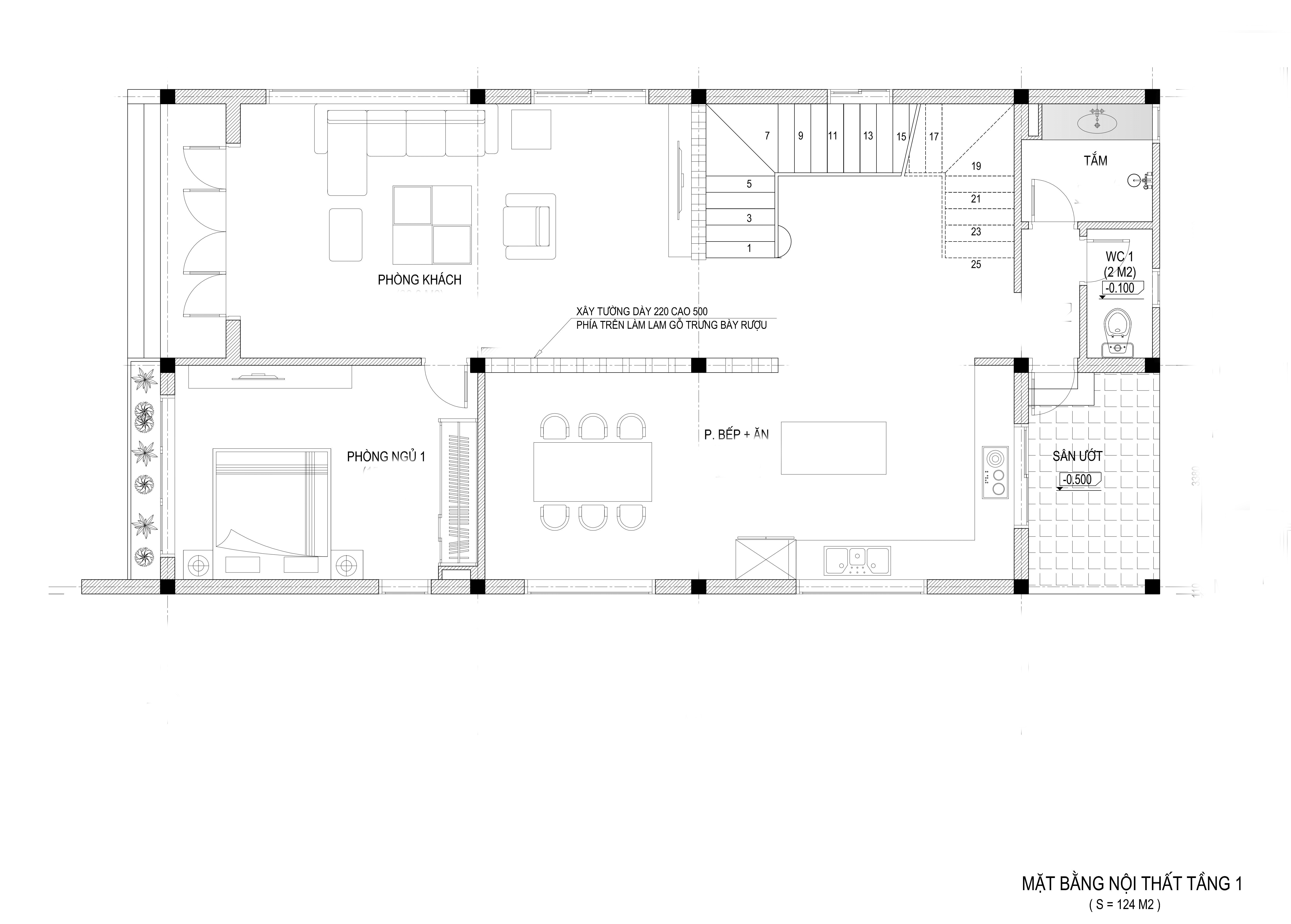
2.1. Bố trí công năng tầng 1
Phòng khách + Bếp + 1 Phòng ngủ + 1 WC


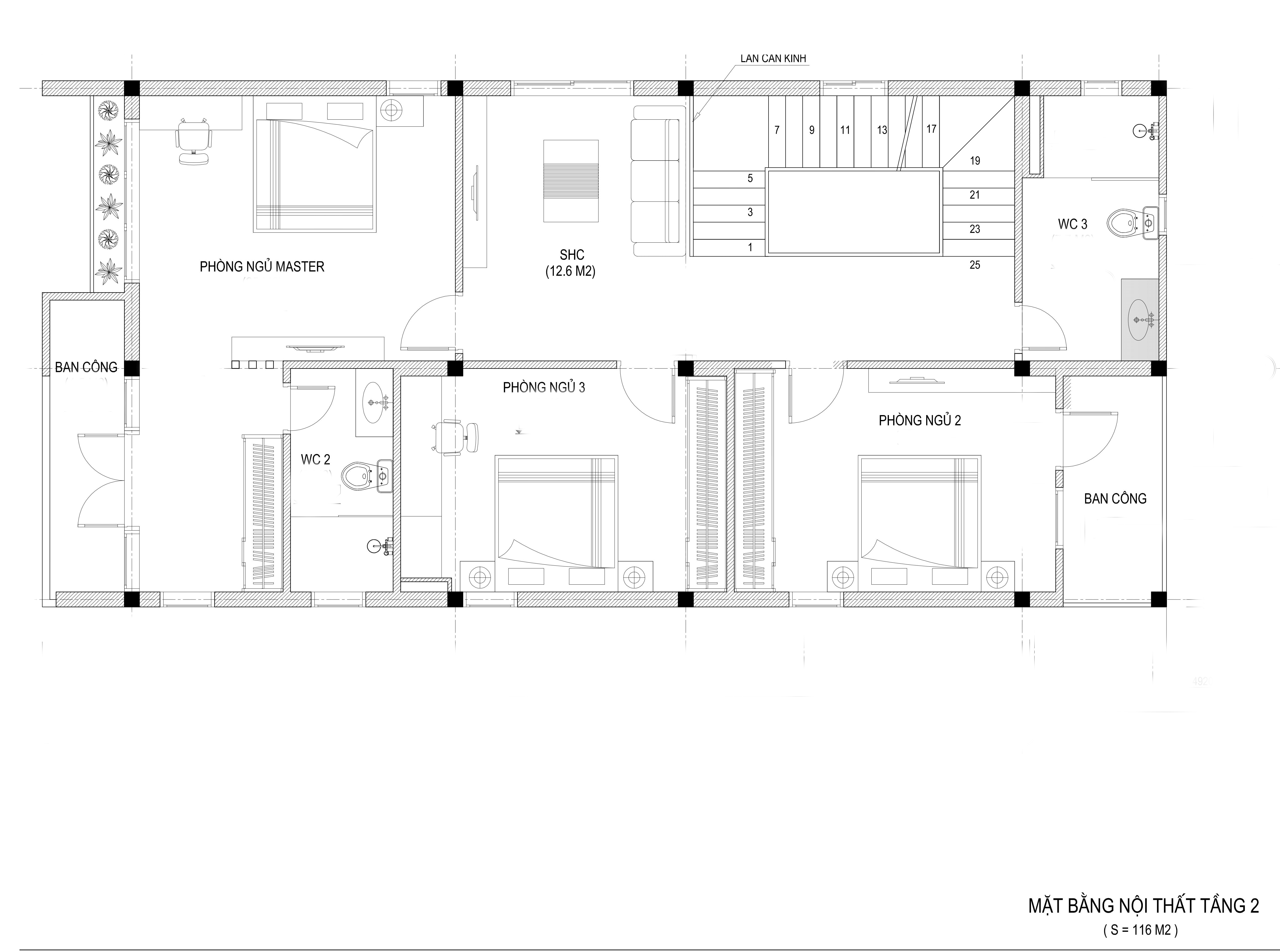
2.2. Bố trí công năng tầng 2
1 Phòng Master + 2 Phòng ngủ thường + 1 WC

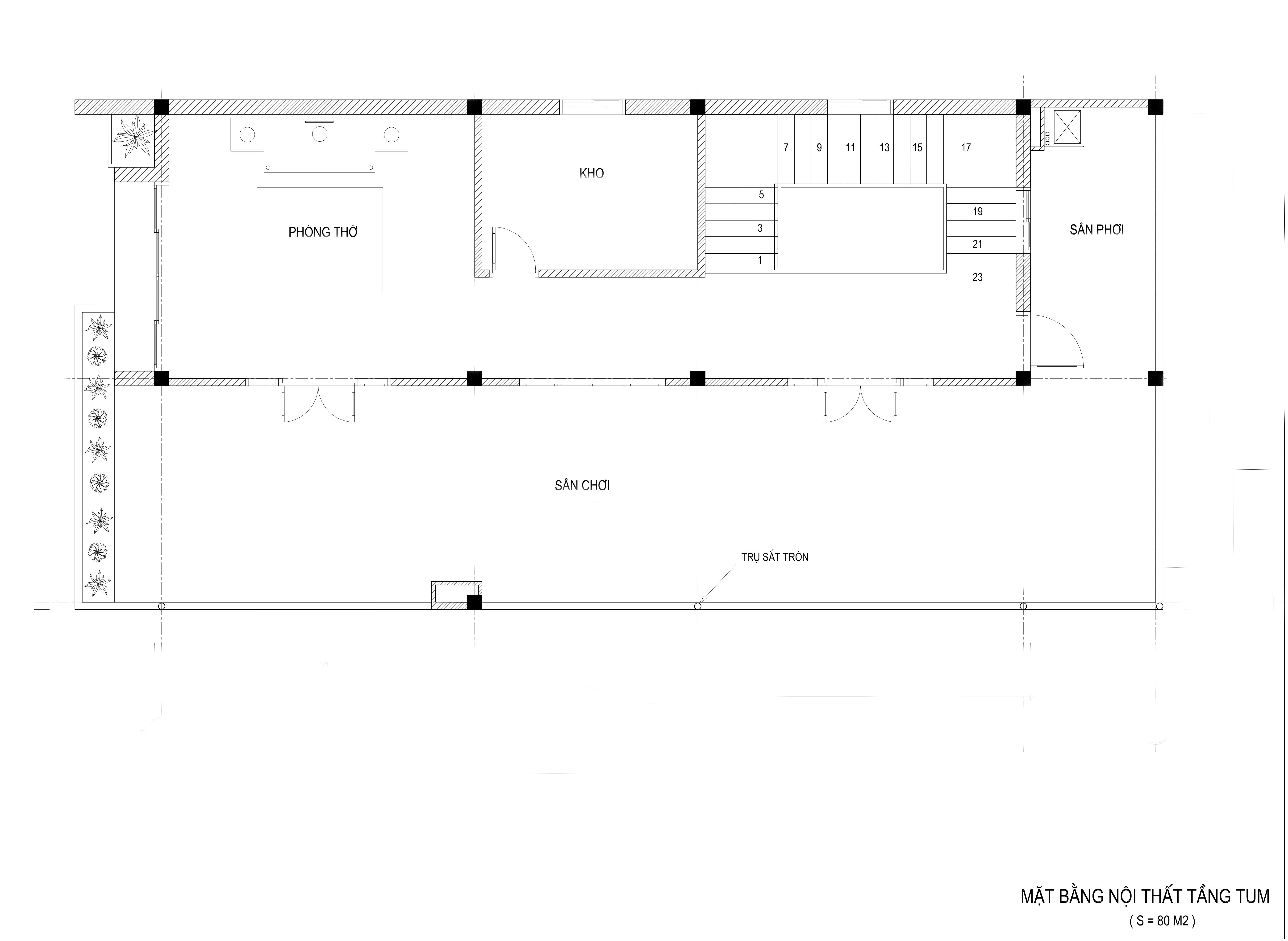
2.3. Bố trí công năng tầng 3
Phòng thờ + Kho + Sân chơi


Nếu yêu thích mẫu thiết kế này cũng như muốn tham khảo các mẫu thiết kế nhà theo ý thích của anh/ chị. Hãy liên hệ với chúng tôi để được tư vấn tốt nhất. Các mẫu thiết kế ở đây đều chỉ mang tính tất tham khảo, không thể nhìn ảnh mà có thể xây dựng được vì không đất chưa chắc hợp với gia đình bạn, nếu có hợp thì phong thủy cũng không hợp. Rất nhiều khách hàng đã cố ý làm theo và kết quả là không ra được đúng mẫu ưng ý lại đập đi đập lại tốn kém gấp nhiều lần chi phí ban đầu.
