Chiêm ngưỡng mẫu nhà 2 tầng Tân Cổ Điển đẹp sang trọng của Chủ đầu tư anh Tâm Tại Bắc Ninh
1. Phối cảnh 3D mặt tiền
- Chủ đầu tư: Anh Tâm
- Địa điểm xây dựng: Bắc Ninh
- Tên công trình: Biệt thự 2 tầng tân cổ điển
- Công năng sử dụng:
+ Tầng 1: Phòng khách + Phòng bếp + 1 phòng ngủ + 1 WC
+ Tầng 2: Phòng thờ + 3 phòng ngủ thường + 1 WC

Mặt tiền ngôi nhà 2 tầng tân cổ điển gây ấn tượng mạnh bởi sự cân đối và những đường nét kiến trúc được chăm chút tỉ mỉ trong từng chi tiết. Tổng thể công trình sử dụng gam màu trắng chủ đạo, làm nền hoàn hảo để tôn lên các mảng khối và hệ phào chỉ đắp nổi tinh tế. Tầng một nổi bật với hệ cột vuông vững chãi hai bên sảnh chính, thân cột được kẻ rãnh dọc thanh thoát, chân cột ốp đá màu ghi xám tạo cảm giác chắc chắn và sạch sẽ. Trung tâm là cửa gỗ tự nhiên bốn cánh cao cấp, bề mặt pano nổi viền chỉ mạ vàng sang trọng, phía trên bố trí đèn ốp trần ánh vàng ấm áp kết hợp hai đèn tường kiểu cổ điển, giúp khu vực sảnh thêm phần ấm cúng và nổi bật vào buổi tối. Bên phải là ô cửa sổ lớn khung nhôm sơn tối màu kết hợp kính trong suốt, vừa tạo sự tương phản hiện đại vừa giúp không gian bên trong luôn tràn ngập ánh sáng tự nhiên. Tầng hai là điểm nhấn đặc sắc với ban công rộng, lan can sắt mỹ thuật sơn giả đồng được uốn hoa văn cầu kỳ, mềm mại như một tác phẩm nghệ thuật, kết hợp các chậu cây xanh tạo cảm giác sinh động và gần gũi.
Cửa ban công thiết kế vòm cong thanh lịch, hài hòa với ô cửa sổ tròn trang trí phía trên mái, mang đậm hơi thở kiến trúc châu Âu cổ điển. Phần mái Mansard cách tân được xử lý gọn gàng với các lớp giật cấp rõ nét, chính giữa là ô cửa tròn hoa sắt trang trí tinh xảo, hai bên điểm xuyết chóp nhọn nhỏ tạo chiều cao và sự bề thế cho công trình. Từng đường gờ, chỉ, mái hắt và mảng tường đều được tính toán kỹ lưỡng, tạo nên một mặt tiền sang trọng, thanh lịch nhưng vẫn hài hòa với cảnh quan khu phố xung quanh.

2. Hình ảnh bố trí công năng
2.1. Tầng 1
+ Tầng 1: Phòng khách + Phòng bếp + 1 phòng ngủ + 1 WC
.png?653)
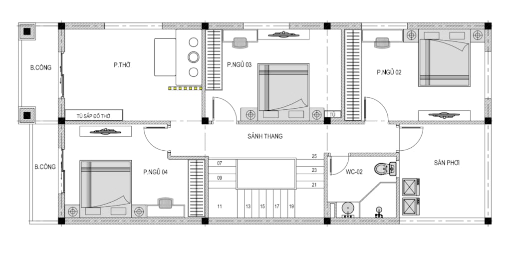
2.2. Tầng 2
+ Tầng 2: Phòng thờ + 3 phòng ngủ thường + 1 WC
.png?135)
