Chiêm ngưỡng mẫu nhà mái Nhật 2 tầng của chủ đầu tư Mr.Phức tại Hưng Yên
1. Phối cảnh 3D mặt tiền
- Chủ đầu tư: Anh Phức
- Địa điểm xây dựng: Hưng Yên
- Tên công trình: Nhà 2 tầng mái nhật
- Công năng sử dụng:
+ Tầng 1: Phòng khách + Bếp ăn+ Phòng ngủ + 1 WC
+ Tầng 2: PhòngSHC+ 3 Phòng ngủ + 2 WC + Sân phơi
Mặt tiền của mẫu nhà 2 tầng mái Nhật này được thiết kế với bố cục chặt chẽ, hình khối rõ ràng và tỷ lệ cân đối, tạo nên vẻ đẹp hiện đại, sang trọng nhưng vẫn rất hài hòa với không gian xung quanh. Tổng thể công trình nổi bật nhờ sự kết hợp khéo léo giữa các mảng tường phẳng, đường chỉ ngang tinh tế và hệ mái Nhật thanh thoát, giúp ngôi nhà vừa bề thế vừa nhẹ nhàng, không tạo cảm giác nặng nề. Gam màu trắng – xám chủ đạo được sử dụng xuyên suốt mặt tiền, mang lại cảm giác thanh lịch, sạch sẽ và hiện đại, đồng thời giúp công trình luôn nổi bật và bền đẹp theo thời gian.

Tầng 1 được thiết kế chú trọng đến sự vững chãi và tính thẩm mỹ tổng thể. Khu vực sảnh chính nổi bật với hệ cột vuông lớn, chân cột được ốp đá tối màu, tạo điểm nhấn mạnh mẽ và tôn lên vẻ sang trọng cho lối vào. Cửa chính bằng gỗ kết hợp họa tiết trang trí tinh xảo mang lại cảm giác ấm cúng, đẳng cấp và thể hiện rõ sự đầu tư của gia chủ. Các ô cửa sổ lớn sử dụng kính trong suốt, bố trí hợp lý dọc mặt tiền giúp không gian bên trong luôn thông thoáng, tận dụng tối đa ánh sáng tự nhiên, đồng thời tạo chiều sâu cho kiến trúc khi nhìn từ bên ngoài. Sự kết hợp giữa vật liệu hiện đại và bố cục gọn gàng giúp tầng 1 vừa chắc chắn, vừa tinh tế.
Tầng 2 đóng vai trò tạo điểm nhấn mềm mại và thanh thoát cho mặt tiền. Ban công được thiết kế vừa phải, lan can đơn giản nhưng hài hòa với tổng thể, tạo không gian thư giãn lý tưởng và tăng tính thẩm mỹ cho mặt đứng công trình. Hệ cửa kính lớn tại tầng này tiếp tục được sử dụng, giúp kết nối không gian bên trong với thiên nhiên bên ngoài, đồng thời mang lại cảm giác rộng rãi, thoáng đãng. Các mảng tường được xử lý tinh tế với đường chỉ ngang nhẹ nhàng, giúp mặt tiền tầng 2 không bị đơn điệu mà vẫn giữ được vẻ đẹp hiện đại, sang trọng.

Phần mái Nhật là yếu tố hoàn thiện và nâng tầm thẩm mỹ cho toàn bộ công trình. Mái có độ dốc vừa phải, đua rộng ra các phía, giúp thoát nước nhanh, chống nóng hiệu quả và bảo vệ tốt cho hệ tường bên dưới. Màu ngói tối tạo sự tương phản hài hòa với màu sơn sáng của ngôi nhà, làm nổi bật hình khối kiến trúc và tăng chiều cao thị giác cho mặt tiền. Hệ thống đèn ngoại thất được bố trí tinh tế tại các cột và ban công, giúp ngôi nhà trở nên lung linh, ấm áp và sang trọng hơn khi về đêm.
Nhờ sự kết hợp hài hòa giữa kiến trúc hiện đại, cách phân chia từng tầng rõ ràng và việc sử dụng vật liệu, màu sắc tinh tế, mặt tiền của mẫu nhà 2 tầng mái Nhật này không chỉ đẹp về hình thức mà còn thể hiện rõ phong cách sống tiện nghi, đẳng cấp và gu thẩm mỹ tinh tế của gia chủ.
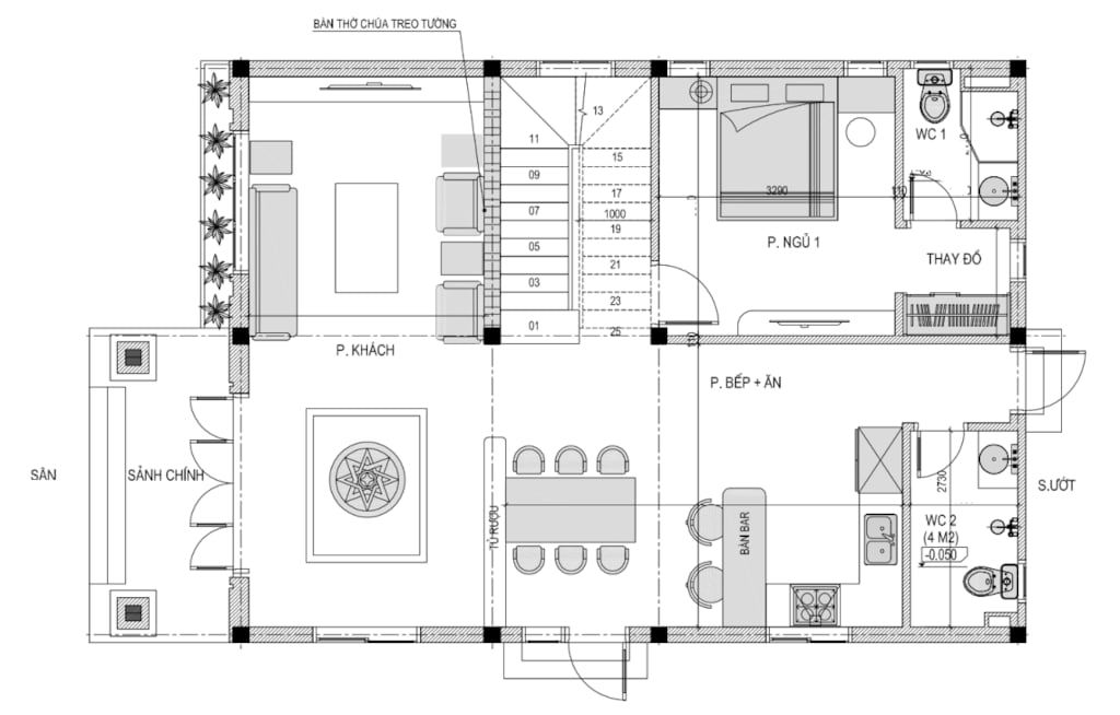
2. Hình ảnh bố trí công năng
2.1. Tầng 1
+ Tầng 1: Phòng khách + Bếp ăn+ Phòng ngủ + 1 WC
.png?363)
2.2. Tầng 2
+ Tầng 2: PhòngSHC+ 3 Phòng ngủ + 2 WC + Sân phơi
.png?54)
