Chiêm ngưỡng mẫu nhà mái nhật 2 tầng tại Hưng Yên - Chủ đầu tư: Anh Huy
1. Phối cảnh 3D mặt tiền
- Chủ đầu tư: Anh Huy
- Địa điểm xây dựng: Hưng Yên
- Tên công trình: Nhà 2 tầng mái nhật
- Công năng sử dụng:
+ Tầng 1: Phòng khách + Phòng Thờ + Bếp ăn+ Phòng ngủ + 1 WC
+ Tầng 2: Phòng SHC+ 3 Phòng ngủ + 1 WC + Sân phơi

Mẫu nhà 2 tầng mái Nhật do Việt Home thiết kế gây ấn tượng bởi tỷ lệ hình khối cân đối, đường nét kiến trúc tinh tế và cảm giác sang trọng ngay từ cái nhìn đầu tiên. Công trình lựa chọn phong cách tân cổ điển nhẹ, lược bỏ các chi tiết rườm rà, tập trung vào phào chỉ đơn giản và hình khối vuông vức, phù hợp với xu hướng nhà ở hiện đại hiện nay.

Hệ mái Nhật dốc thấp, mở rộng bốn phía giúp thoát nước nhanh, chống nóng hiệu quả và tăng tính thẩm mỹ cho tổng thể công trình, đồng thời rất phù hợp với điều kiện khí hậu miền Bắc.
Mặt tiền ngôi nhà sử dụng tông màu trắng chủ đạo, kết hợp hệ cửa kính khung nhôm tối màu tạo sự tương phản tinh tế. Ban công tầng 2 được nhấn mạnh bằng lan can sắt nghệ thuật mạ màu vàng đồng tạo điểm nhấn sang trọng.

2. Hình ảnh bố trí công năng
2.1. Tầng 1
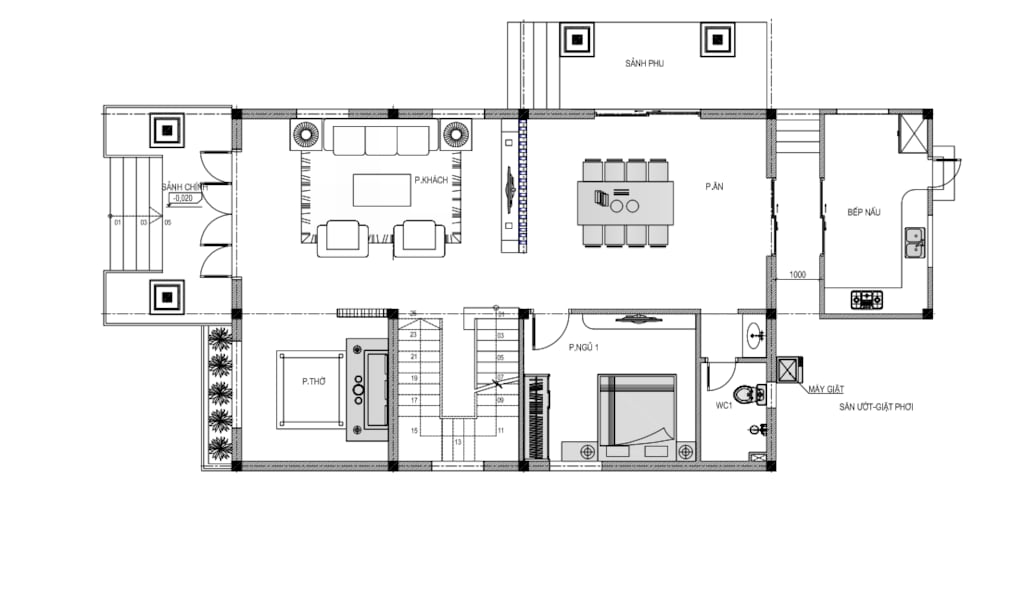
Phòng khách + Phòng Thờ + Bếp ăn+ Phòng ngủ + 1 WC
.png?375)
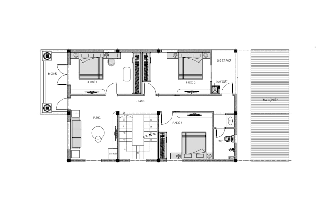
2.2. Tầng 2
Phòng SHC+ 3 Phòng ngủ + 1 WC + Sân phơi
.png?273)
3. Hình ảnh thi công thực tế
.png?804)
.png?510)
.png?632)
.png?34)
Nếu bạn đang tìm kiếm một mẫu nhà 2 tầng mái Nhật sang trọng, công năng khoa học, hãy liên hệ Việt Home để được tư vấn và lên phương án thiết kế phù hợp nhất với diện tích và ngân sách của gia đình.
