Chiêm ngưỡng mẫu nhà vườn mái Nhật của chủ đầu tư Mr.Trường tại Mê Linh, Hà Nội
1. Phối cảnh 3D mặt tiền
- Chủ đầu tư: Anh Trường
- Địa điểm xây dựng: Hà Nội
- Tên công trình: Nhà vườn mái nhật
- Công năng sử dụng: Phòng khách + Phòng thờ + Phòng bếp ăn + 2 Phòng ngủ khép kín + phòng ngủ thường + WC

Ngôi nhà của gia đình anh Trường được thiết kế theo phong cách hiện đại với hệ cột trụ vuông vắn, bề thế mang lại sự hoành tráng cho công trình. Kết hợp cùng màu sắc, vật liệu trang trí càng làm tăng sự sang trọng và thu hút. Căn nhà gây ấn tượng bởi những đường kẻ chỉ âm tường vừa tránh sự đơn điệu vừa làm tăng nét mềm mại của công trình. Ngoài ra, sự kết hợp màu sắc của vô cùng hài hòa cũng là điểm nhấn thu hút nhiều người. Màu trắng kết hợp cùng màu xanh ở vị trí phân tầng, chân tường, màu nâu của cửa, màu vàng của ánh đèn, màu đen của khung cửa,… tạo nên một diện mạo hài hòa, cuốn hút.
Thiết kế hệ tam cấp năm bậc, tôn cao khiến công trình trở nên cao ráo và bề thế hơn. Phần mặt sảnh và bậc được ốp đá Granite màu đen cổ trắng sang trọng, hai gam màu này có sự tương phản tạo hiệu ứng về thị giác rất tốt, giúp cho mọi người khi di chuyển không bị bước hụt, té ngã. Đá hoa cương còn có khả năng chịu nhiệt và tác động từ thời tiết đảm bảo vẻ đẹp bền vững cho công trình.

Thiết kế cửa sổ và cửa chính làm bằng chất liệu kính khung nhôm Xingfa mang đến sự thoáng mát cho toàn bộ công trình nhưng không kém phần sự ấm cúng và sang trọng. Sự kết hợp hoàn hảo giữa thiết kế mái nhật và kiến trúc nhà ở truyền thống của Việt Nam đã tạo nên được một mẫu thiết kế với không gian kiến trúc ấn tượng và thu hút. Cùng với đó, Chất liệu đá ốp tường mới mẻ, giúp cho công trình bền vững, tránh được những tác động xấu từ môi trường xung quanh. Đồng thời, với màu sắc nổi bật, thiết kế sẽ tạo được ấn tượng với người nhìn ngay từ đầu tiên.
Để không gian sống được hài hoà và gần gũi với thiên nhiên hơn các KTS đã bố trí những chậu hoa xinh xắn, tiểu cảnh xanh mát xung quanh nhà tạo cảnh quan bình yên, thơ mộng, mang đến không gian nghỉ dưỡng lý tưởng. Khuôn viên sân vườn vô cùng rộng và thoáng mát, sân được lát gạch chống trơn màu ghi sạch sẽ, giúp mọi người yên tâm khi di chuyển và hoạt động ngoài trời.
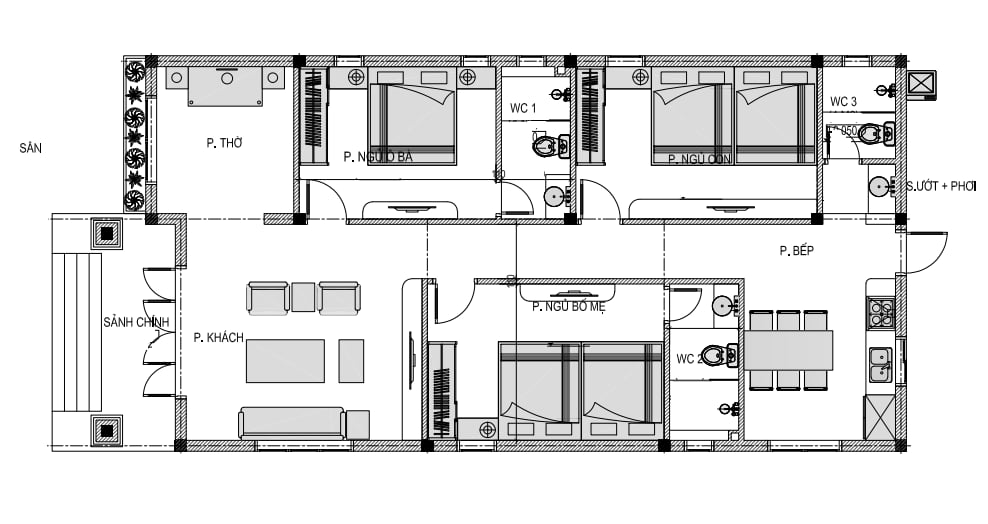
2. Hình ảnh bố trí công năng
- Công năng sử dụng: Phòng khách + Phòng thờ + Phòng bếp ăn + 2 Phòng ngủ khép kín + phòng ngủ thường + WC
.png?322)
