Chiêm ngưỡng mẫu nhà vườn vạn người mê - Anh Xuân, Hòa Bình
Sở hữu diện tích đất rộng tại ngoại thành Hòa Bình, anh Xuân luôn tìm kiếm mẫu nhà thoáng mát để kết hợp cùng hệ thống bể cá cảnh, sân vườn để tạo nên không gian sống hài hòa, thư thái. Hiểu được tâm tư này, Việt Home sau nhiều ngày trao đổi và làm việc đã hoàn thiện mẫu biệt thự vườn dưới đây. Mời quý khách hàng cùng chiêm ngưỡng nhé!
1. Phối cảnh 3D mặt tiền
- Chủ đầu tư: Anh Xuân
- Địa điểm xây dựng: Hòa Bình
- Tên công trình: Nhà vườn 2 tầng mái thái

Công trình thiết kế mẫu nhà mái Thái hiện đại đẹp sẽ có gam màu tươi trẻ, gần gũi với thiên nhiên mang đến vẻ đẹp hoàn hảo cho ngôi nhà. Đây là một mẫu thiết kế biệt thự tham khảo lý tưởng cho những gia chủ sở hữu mảnh đất rộng.

Hệ thống mái thái với độ dốc cao, độ đua vừa phải tạo cho mặt tiền độ thoáng, rộng vừa đảm bảo tản nhiệt và thoát nước nhanh chóng. Anh Xuân lựa chọn phần mái thái màu ghi giúp mang lại tổng thể xanh mát, hài hòa với sân vườn xung quanh.

Mẫu nhà anh Xuân mang đặc thù dành có các ngôi nhà diện tích rộng và hài hòa nhất khi kết hợp cùng hệ thống sân vườn, tiểu cảnh thiên nhiên.
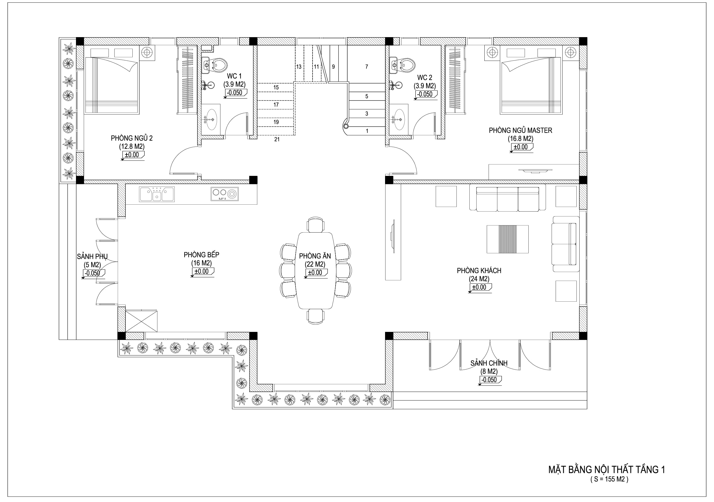
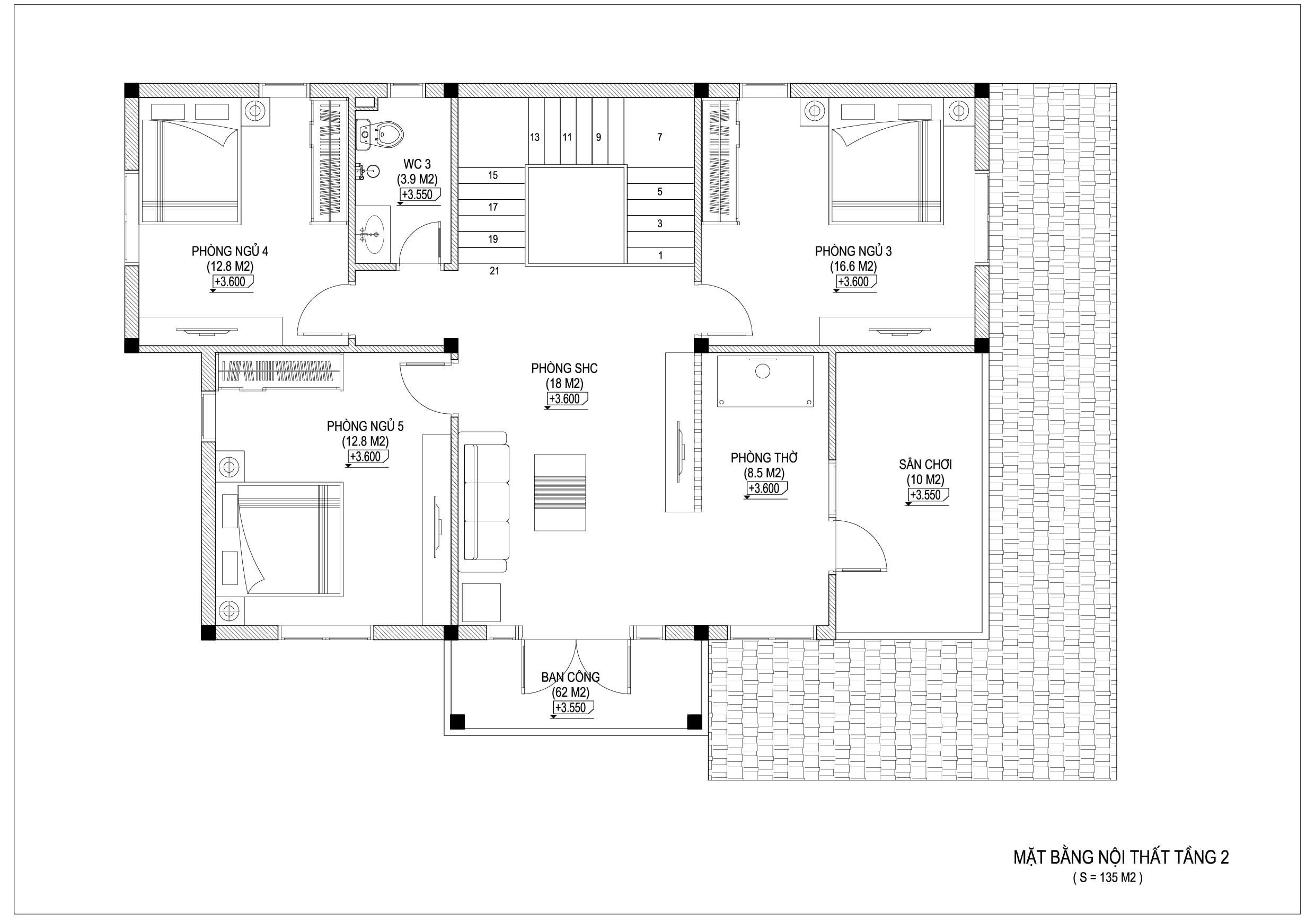
2. Bố trí công năng các tầng
Bố trí nhà và sân vườn tổng thể

2.1. Bố trí công năng tầng 1
Phòng khách + Phòng bếp + 1 Phòng ngủ Master + 1 Phòng ngủ thường + 1 WC

2.2. Bố trí công năng tầng 2
Phòng thờ + Phòng SHC + 3 Phòng ngủ + Wc + Sân chơi + Sân phơi

Mỗi căn nhà khi xây dựng, bố cục sắp xếp các phòng, hướng phục thuộc vào tuổi tác các thành viên trong gia đình cũng như hướng đất. Việc bố trí công năng phù hợp vô cùng quan trọng khi sinh hoạt và trong phong thủy làm ăn, sức khỏe hay hạnh phúc của gia chủ. Bởi vậy, nếu bạn đang có dự định xây nhà, đừng làm theo bản vẽ có sẵn trên mạng mà hãy liên hệ với Việt Home để được tư vấn bố trí và phong thủy sao cho phù hợp nhất.
