Chiêm ngưỡng mẫu thiết kế biệt thự vườn mái Nhật - Chủ đầu tư: Anh Hướng, Hưng Yên
Xu hướng kiến trúc hiện nay là những mẫu nhà vườn đẹp với chi phí xây dựng không lớn, cùng vẻ đẹp độc đáo và thiết kế công năng sinh hoạt tiện nghi. Với không gian rộng rãi và nhiều cây xanh, phù hợp cho gia đình sinh hoạt và nghỉ ngơi thư giãn.
Dưới đây, hãy cùng chiêm ngưỡng một thiết kế mới của KTS Việt Home dành cho chủ đầu tư là anh Hướng tại Hưng Yên.
1. Phối cảnh 3D mặt tiền.
- Chủ đầu tư: Anh Hướng
- Địa điểm xây dựng: Hưng Yên
- Tên công trình: Biệt thự vườn mái Nhật
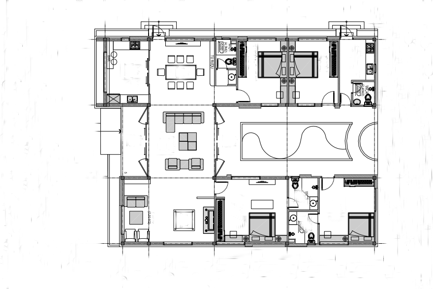
- Công năng sử dụng: 1 Phòng khách + 1 Phòng sinh hoạt chung + Phòng thờ + 1 Phòng bếp + 1 Bếp phụ + 2 phòng ngủ Master + 2 phòng ngủ thường + 2 WC

Mỗi khách hàng lại có phong cách và nhu cầu sử dụng khác nhau. Với diện tích đất rộng rãi anh Hướng muốn thiết kế công năng sử dụng đầy đủ và tiện nghi nhất. Không gian sinh hoạt chung và các phòng ngủ được tách biệt rõ ràng tạo cảm giác thoải mái riêng tư nhưng các thành viên vẫn có không gian chung để gần gũi với nhau. Bên cạnh đó phải có khoảng sân vườn rộng rãi thoáng mát.

Hiểu được tâm lý khách hàng, KTS Việt Home đã lên ý tưởng thiết kế căn biệt thự sân vườn mái Nhật chữ U phía trước sẽ là không gian sinh hoạt chung, phía sau sẽ là không gian phòng ngủ riêng tư và căn biệt thự được bao quanh bởi sân vườn thoáng mát.

2. Bố trí công năng.
1 Phòng khách + 1 Phòng sinh hoạt chung + Phòng thờ + 1 Phòng bếp + 1 Bếp phụ + 2 phòng ngủ Master + 2 phòng ngủ thường + 2 WC


