Chiêm ngưỡng nhà phố 3 tầng tân cổ điển kết hợp kinh doanh - Chủ đầu tư: Anh Hùng, Hà Nội
Mẫu thiết kế nhà phố tân cổ điển 3 tầng đẹp 5x18m kết hợp kinh doanh của gia đình anh Hùng tại Hà Nội là công trình vừa được Kiến trúc Việt Home hoàn thành vào tháng 9 năm 2023. Dự tính xây dựng một căn nhà phố sang trọng, mang phong cách tân cổ điển, đáp ứng toàn bộ nhu cầu sử dụng công năng của các thành viên trong gia đình, anh Hùng đã liên hệ với Kiến Trúc Việt Home để được tư vấn chi tiết.
Dưới đây là mẫu nhà của gia đình anh Hùng tại Hà Nội, các bác hãy cùng Việt Home ngắm nhìn ngôi nhà nhé!
1. Phối cảnh 3D mặt tiền
- Chủ đầu tư: Anh Hùng
- Kích Thước: 5x18m
- Địa điểm xây dựng: Hà Nội.
- Công năng sử dụng:
+ Tầng 1: Kinh Doanh + Phòng Khách + Bếp Ăn + WC.
+ Tầng 2: Phòng SHC + 2 Phòng Ngủ + WC.
+ Tầng 3: Phòng Gym + 1 Phòng Ngủ + WC + Sân Chơi.

Về hình thức, kiến trúc tân cổ điển nhấn mạnh vào bức tường hơn là về phối hợp màu sáng và tối và duy trì bản sắc riêng biệt cho mỗi bộ phận của nó. Về chi tiết, kiến trúc tân cổ điển là một phản ứng chống lại phong cách trang trí tự nhiên của Rococo. Về công thức kiến trúc, nó như là sự phát triển của một số đặc điểm cổ điển của truyền thống kiến trúc Baroque muộn. Kiến trúc tân cổ điển vẫn được thiết kế cho đến ngày nay, nhưng có thể được gắn nhãn là kiến trúc cổ điển mới cho các tòa nhà hiện đại.
Nhắc đến định nghĩa về phong cách thiết kế tân cổ điển, nhiều người vẫn chưa định hình rõ ràng, vẫn còn khá mơ hồ. Phong cách tân cổ điển theo nghĩa dễ hiểu là quá trình lược bỏ các chi tiết cầu kỳ, khá rườm rà của thiết kế nội thất cổ điển và có sự giản đơn trong việc hình thành các hoa văn, họa tiết. Thông thường, tân cổ điển sẽ có màu sắc theo hướng kiến trúc Châu Âu hiện đại nhằm phù hợp với nhu cầu, thị hiếu của người sử dụng.

Sở hữu mặt tiền 5m, chiều sâu 18m: kiến trúc của ngôi nhà phố 3 tầng dưới bàn tay của đội ngũ KTS Kiến Trúc Việt Home đã mang đến cho gia đình anh Hùng một không gian sống đầy lý tưởng.
Việc lên phương án mặt bằng – công năng dựa trên kinh nghiệm và sự tính toán tỉ mỉ của KTS khiến mọi không gian trong ngôi nhà đều được thiết kế và tính toán một cách hợp lý. Kiến trúc sư đã khéo léo sử dụng các chi tiết hoa văn, phào chỉ trang trí tỉ mỉ cho mặt tiền. Hệ bạn công kết hợp cây xanh cùng hệ đèn Led tạo điểm nhấn ấn tượng. Bức phù điêu kết hợp các họa tiết hoa văn tròn và lan can con tiện chốt lại kiến trúc tân cổ điển.
Khi nhìn vào không gian ngoại thất của ngôi nhà phố 3 tầng phong cách tân cổ điển chúng ta thấy được mặt tiền tập trung vào sự tinh tế, nhẹ nhàng, không cầu kì, không nhấn mạnh vào các họa tiết nhỏ. Công trình nhà phố tân cổ điển này nhấn mạnh vào các bức tường và cột trụ, màu sắc của ngoại thất không hề màu mè, mọi chi tiết đều được sắp xếp một cách trật tự. Điều này đã tạo cảm giác thoáng rộng, sang trọng hơn cho ngôi nhà phố kết hợp kinh doanh.
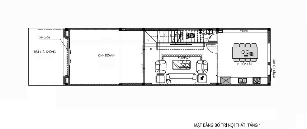
2. Công năng sử dụng
2.1. Tầng 1
+ Tầng 1: Kinh Doanh + Phòng Khách + Bếp Ăn + WC.

2.2. Tầng 2
+ Tầng 2: Phòng SHC + 2 Phòng Ngủ + WC.

2.3. Tầng 3
+ Tầng 3: Phòng Gym + 1 Phòng Ngủ + WC + Sân Chơi.

Nếu các bác thích mẫu nhà phố như bên em vừa giới thiệu thì hãy nhắn tin hoặc gọi điện thoại trực tiếp cho Việt Home để được tư vấn nhé!
