Chiêm ngưỡng nhà vườn chữ L 2 tầng mái nhật của chủ đầu tư Mr Đức tại Chương Mỹ, Hà Nội
1. Phối cảnh 3D mặt tiền
- Chủ đầu tư: Anh Đức
- Địa điểm xây dựng: Hà Nội
- Tên công trình: Nhà chữ L 2 tầng mái nhật
- Công năng sử dụng:
+ Tầng 1: Phòng khách + Phòng bếp ăn + 1 Phòng ngủ + 1 WC
+ Tầng 2: Phòng thờ + 3 Phòng ngủ + 1 WC

Mẫu nhà 2 tầng chữ L của gia đình anh Đức đã đáp ứng được nhu cầu về không gian sống và chi phí xây dựng .Với thiết kế kiểu chữ L tận dụng đất tạo khoảng không đón gió phía trước, công trình tạo ấn tượng nhờ sự phối màu hài hòa, sang trọng. Bên cạnh đó là việc lựa chọn vật liệu hiện đại mang đến một không gian sống mở thoáng mát, gần gũi với thiên nhiên cho gia đình chủ đầu tư. Hệ mái Nhật màu xanh ghi cũng là điểm nhấn nâng cao sự bền vững cho tổng thể công trình.
Ngôi nhà tạo ấn tượng cho người nhìn bởi hệ thống cửa được thiết kế dày đặc. Hệ cửa chính sử dụng gỗ tự nhiên cao cấp, mang đến nét sang trọng cho ngoại thất và không gian mặt tiền của công trình. Kết hợp với đó là các ô kính thoáng, tạo không gian ánh sáng cho khu vực phòng khách. Đặc biệt, hệ thống cửa sổ với chất liệu kính khung nhôm sang trọng, mang đến một vẻ đẹp hiện đại cho ngoại thất công trình. Kết hợp với hệ thống lan can ban công mang đến một không gian sống mở rộng, thoáng mát cho chủ đầu tư. Đồng thời, chất liệu kính cường lực cao cấp còn có khả năng cách âm, mang đến nguồn sáng mát mẻ cho không gian sống bên trong. Thêm vào đó còn mở ra tầm nhìn đẹp ra khu vực sân vườn thoáng mát bên ngoài.

Hệ mái nhật chính là nét cuốn hút bền vững cho tổng thể công trình. Hệ mái được đổ bằng, sau đó lợp vì kèo, dán ngói ghi xanh, mang đến một ngôi nhà bền vững và trường tồn với thời gian cho gia chủ. Với chất liệu gạch ngói cao cấp, kết hợp cùng thiết kế độ dốc vừa phải, hệ mái giúp gia tăng khả năng chống thấm, che mưa chắn gió cho ngoại thất bên trong. Bên cạnh đó, chức năng điều hòa nhiệt độ không khí thêm mát mẻ vào mùa hè và ấm áp vào mùa đông cũng là một trong những yếu tố giúp hệ mái được gia chủ lựa chọn. Với nhiều công năng cùng giá trị thẩm mỹ, kiến trúc mái nhật với độ dốc vừa phải là một trong những loại hình được lựa chọn xây dựng nhất hiện nay.
Ngoài ra, gam màu xanh của hệ mái nhật vừa hợp phong thủy chủ đầu tư vừa là điểm nhấn trên nền trắng chủ đạo của công trình. Với kiến trúc hiện đại, sang trọng, ngôi nhà chữ L 2 tầng trở nên nổi bật hơn nhờ sự lựa chọn màu sắc đơn giản, hiện đại nhưng sang trọng. Ngôi nhà sử dụng gam màu trắng chủ đạo không chỉ nhấn nhá bằng gam màu xanh ghi của hệ mái mà còn cuốn hút nhờ sự đối lập với sắc đen của khung cửa. Hệ thống khung cửa sổ, cửa phụ sử dụng gam màu cánh rán nổi bật, đối lập với màu trắng là sự kết hợp không bao giờ lỗi thời, tạo nên một hiệu ứng màu sắc hợp gu mọi thời đại. Ngoài ra, sắc màu đỏ gụ của hệ cửa gỗ tại mặt tiền chính và phụ cũng rất nổi bật lên trên nên trắng, nhấn mạnh sự trang trọng trong không gian tiếp đón khách của chủ đầu tư.
2. Hình ảnh bố trí công năng
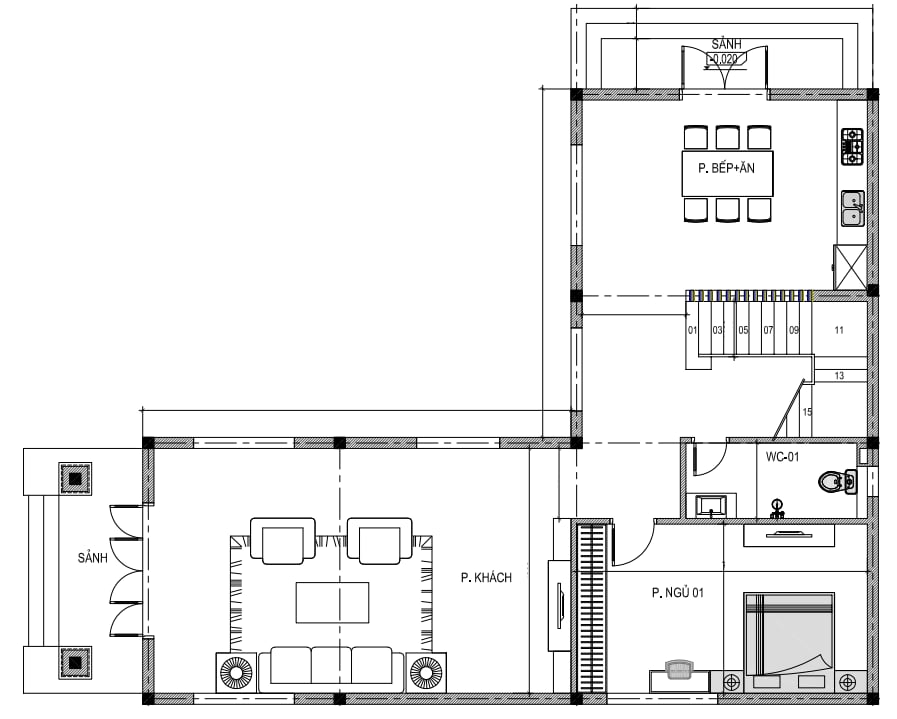
2.1. Tầng 1
+ Tầng 1: Phòng khách + Phòng bếp ăn + 1 Phòng ngủ + 1 WC
.png?425)
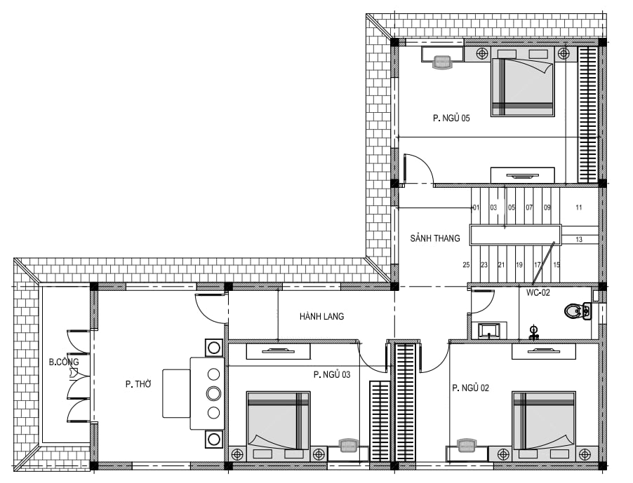
2.2. Tầng 2
+ Tầng 2: Phòng thờ + 3 Phòng ngủ + 1 WC
.png?970)
