Chiêm ngưỡng tòa nhà văn phòng theo phong cách tân cổ điển - Chủ đầu tư: Anh Tấn- Hà Nội
Mẫu nhà phố tân cổ điển là sự hòa quyện tinh tế giữa vẻ đẹp thanh lịch của phong cách cổ điển và sự tiện nghi hiện đại. Với mặt tiền trang nhã, các chi tiết tinh xảo như cột trụ, hoa văn và ban công bằng sắt nghệ thuật, ngôi nhà toát lên vẻ đẹp sang trọng và bền vững. Hệ thống cửa sổ lớn cho ánh sáng tự nhiên tràn ngập, tạo không gian sống thoáng đãng và dễ chịu. Mẫu nhà này không chỉ nổi bật với thiết kế bắt mắt mà còn chú trọng đến công năng sử dụng và sự tiện lợi trong cuộc sống hàng ngày. Hãy cũng Việt Home ngắm nhìn mẫu nhà này của anh Tấn tại Hà Nội nhé!
1. Phối cảnh 3D mặt tiền
Chủ đầu tư: Anh Tấn
- Địa điểm xây dựng: Hà Nội
- Kích thước xây dựng: 8.9x20.12m
- Công năng sử dụng:
+ Tầng 1: Kinh doanh + Siêu thị mini + WC.
+ Tầng lửng, 2,3,4: Cho thuê văn phòng + WC.
+ Tầng 5: 2 Phòng Khách (Bếp Ăn) + 4 Phòng ngủ thường + 2 WC.
+ Tầng 6: Phòng Khách (Bếp Ăn) + Phòng ngủ khép kín + 2 Phòng ngủ thường + WC.
+ Tầng Tum: Phòng thờ + Phòng Bếp Ăn + 2 Phòng ngủ thường + WC

Mẫu nhà tân cổ điển 6 tầng với 1 tum nổi bật với vẻ đẹp thanh thoát và sang trọng. Mặt tiền của ngôi nhà được sơn màu trắng tinh khôi, tạo cảm giác sáng sủa và thanh nhã. Tầng 1 được ốp đá cao cấp, mang lại sự ấn tượng và bền bỉ, cùng với các chi tiết trang trí cầu kỳ như cột trụ, hoa văn và ban công sắt nghệ thuật. Các tầng trên được thiết kế với cửa sổ lớn, mang đến ánh sáng tự nhiên và sự thoáng đãng.
Tầng tum thêm phần tinh tế với các chi tiết trang trí nhẹ nhàng, tạo điểm nhấn hoàn hảo cho tổng thể thiết kế.

Mỗi tầng đều có các cửa sổ lớn, cung cấp ánh sáng tự nhiên dồi dào và tầm nhìn rộng mở ra bên ngoài. Các ban công bằng sắt nghệ thuật, được trang trí tinh tế, không chỉ làm tăng thêm vẻ đẹp của ngôi nhà mà còn tạo ra không gian thư giãn ngoài trời. Tổng thể thiết kế hòa quyện giữa sự trang nhã và tiện nghi, mang lại không gian sống thoáng đãng và sang trọng.

Sở hữu mặt tiền 8.9 m, chiều sâu 20.12 m: kiến trúc của ngôi nhà phố 6 tầng + 1 tầng tum dưới bàn tay của đội ngũ KTS Kiến Trúc Việt Home đã mang đến cho gia đình anh Tấn một không gian đầy lý tưởng khi kết hợp nhà ở và kinh doanh.
Việc lên phương án mặt bằng – công năng dựa trên kinh nghiệm và sự tính toán tỉ mỉ của KTS khiến mọi không gian trong ngôi nhà đều được thiết kế và tính toán một cách hợp lý. Kiến trúc sư đã khéo léo sử dụng các chi tiết hoa văn, phào chỉ trang trí tỉ mỉ cho mặt tiền. Hệ của sổ và ban công đón ánh sáng tự nhiên dồi dào.
Khi nhìn vào không gian ngoại thất của ngôi nhà phố mang phong cách tân cổ điển này chúng ta thấy được mặt tiền tập trung vào sự tinh tế, nhẹ nhàng, không cầu kì, không nhấn mạnh vào các họa tiết nhỏ. Điều này đã tạo cảm giác thoáng rộng, sang trọng hơn cho ngôi nhà phố kết hợp kinh doanh làm văn phòng.
2. Công năng sử dụng
2.1. Tầng hầm
2.2. Tầng 1
+ Tầng 1: Kinh doanh + Siêu thị mini + WC
+ Tầng lửng: Cho thuê văn phòng + WC.
2.3. Tầng 2, 3, 4
+ Tầng 2, 3, 4: Cho thuê văn phòng + WC
2.4. Tầng 5
+ Tầng 5: 2 Phòng Khách (Bếp Ăn) + 4 Phòng ngủ thường + 2 WC.
2.5. Tầng 6
+ Tầng 6: Phòng Khách (Bếp Ăn) + Phòng ngủ khép kín + 2 Phòng ngủ thường + WC.
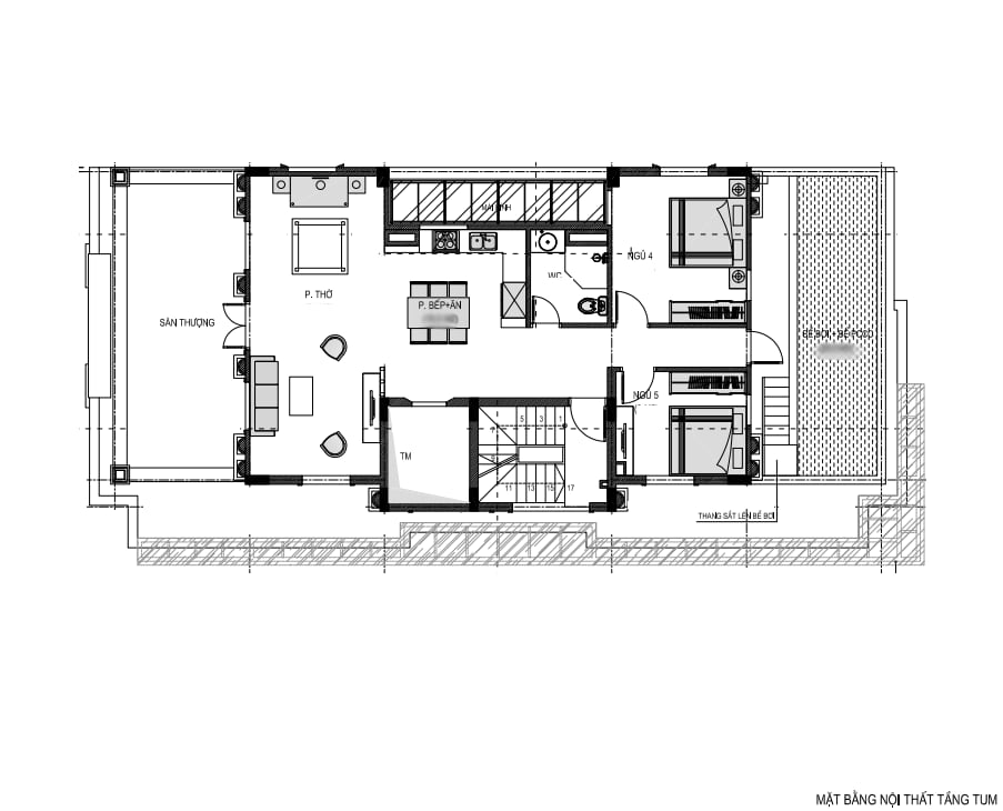
2.6. Tầng tum
+ Tầng Tum: Phòng thờ + Phòng Bếp Ăn + 2 Phòng ngủ thường + WC

2.7. Mái
Hãy liên hệ Việt Home để được tư vấn chi tiết nhé!
