Chốt Deal cực nhanh, nhà đẹp như tranh - Anh Kiên, Bắc Ninh
Khách sáng trao đổi thông tin, chiều kiến trúc sư đi khảo sát và ký luôn hợp đồng đấy ạ! Khi chủ nhà đã trao niềm tin, Việt Home đảm bảo sẽ dành mọi tâm huyết để thiết kế mẫu nhà ưng ý nhất!
Cùng chiêm ngưỡng mẫu nhà Việt Home thiết kế cho anh Kiên trong bài viết hôm nay nhé.
1. Phối cảnh mặt tiền
Lô đất của anh Kiên với mặt tiền 5m ngay cạnh hồ điều hòa nên rất mát mẻ. Anh mong muốn thiết kế nhà ban công rộng để có thể đón gió tốt nhất.
Mẫu nhà được thiết kế theo phong cách hiện đại, trẻ trung, tất cả là hình khối mà không có phào chỉ rườm rà. Điều này không chỉ giúp căn nhà mang vẻ đẹp khỏe khắn, tinh giản mà dễ dàng trong quá trình thi công.

2. Bố trí công năng
Chủ đầu tư: Anh Kiên
Địa điểm xây dựng: Bắc Ninh
Tên công trình: Nhà phố hiện đại 3 tầng 1 tum
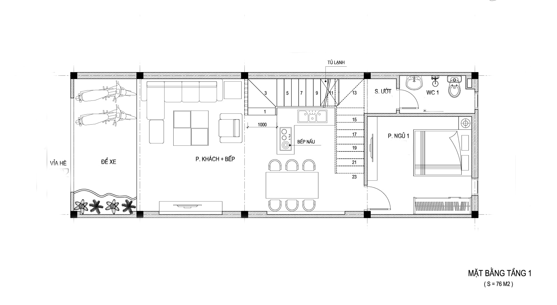
2.1. Bố trí công năng tầng 1
Sân xe máy + Phòng khách + Bếp + 1 Phòng ngủ + 1WC

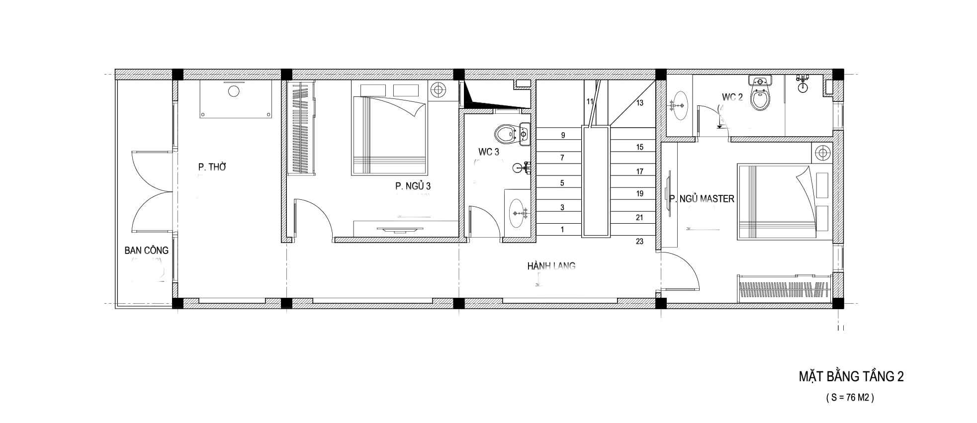
2.2. Bố trí công năng tầng 2
Ban công + Phòng ngủ + 1 Phòng ngủ khép kín + 1 WC

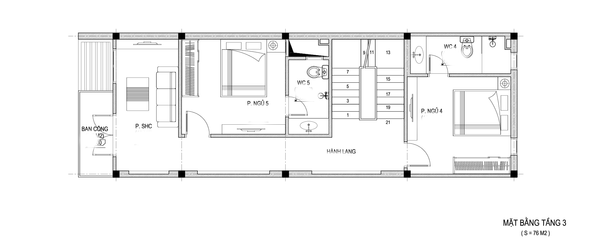
2.3. Bố trí công năng tầng 3
Ban công + Phòng SHC + 2 Phòng ngủ khép kín

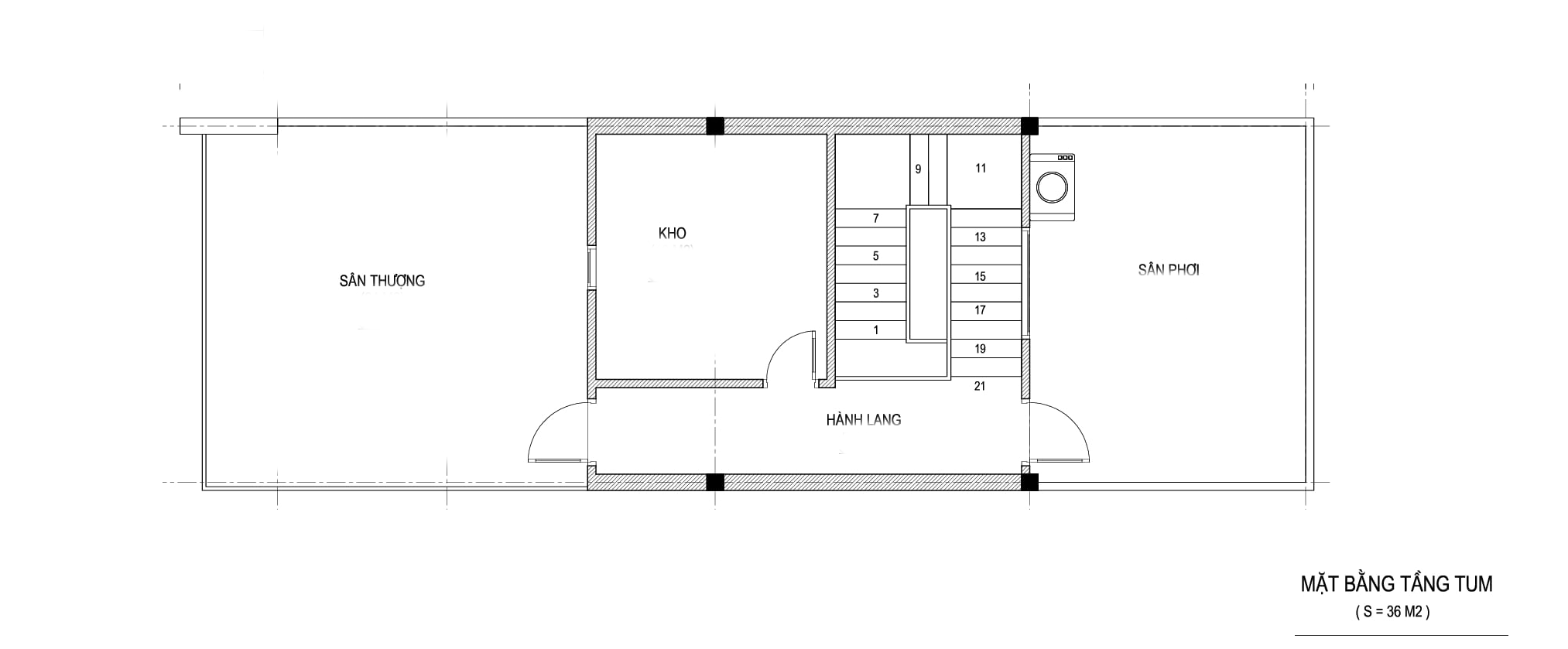
2.4. Bố trí công năng tầng tum
Kho + Sân phơi

📣📣#VIETHOME - Đơn vị thiết kế & Thi công uy tín
🎁 Miễn phí thiết kế khi thi công trọn gói
☑️Tư vấn thiết kế và phong thủy
☑️Chủng loại và khối lượng vật liệu thi công xây dựng minh bạch
☑️Thi công tới đâu - Nghiệm thu tới đó.
🏆 Cam kết không phát sinh dự toán
🏆 CAM KẾT tiến độ và chất lượng công trình
---
👉 Để lại SĐT / Gọi hotline: 0912 30 11 85 nhận tư vấn
