Cùng chiêm ngưỡng biệt thự vườn mái nhật gần gũi thiên nhiên - Chủ đầu tư: Anh Giáp, Bắc Ninh
Mẫu biệt thự vườn mái nhật đơn giản đang được rất nhiều gia đình lựa chọn xây dựng. Nếu sở hữu mảnh đất rộng, và yêu thích cuộc sống gần gũi thiên nhiên thì mẫu nhà mái nhật giới thiệu trong bài viết này là lựa chọn lý tưởng cho gia đình bạn. Ngôi biệt thự vườn này được thiết kế vô cùng đẹp mắt, tiết kiệm chi phí thi công mà vẫn đảm bảo công năng sử dụng.
1. Phối cảnh 3D mặt tiền
- Chủ đầu tư: Anh Giáp
- Địa điểm xây dựng: Bắc Ninh
- Tên công trình: Biệt thự vườn mái nhật
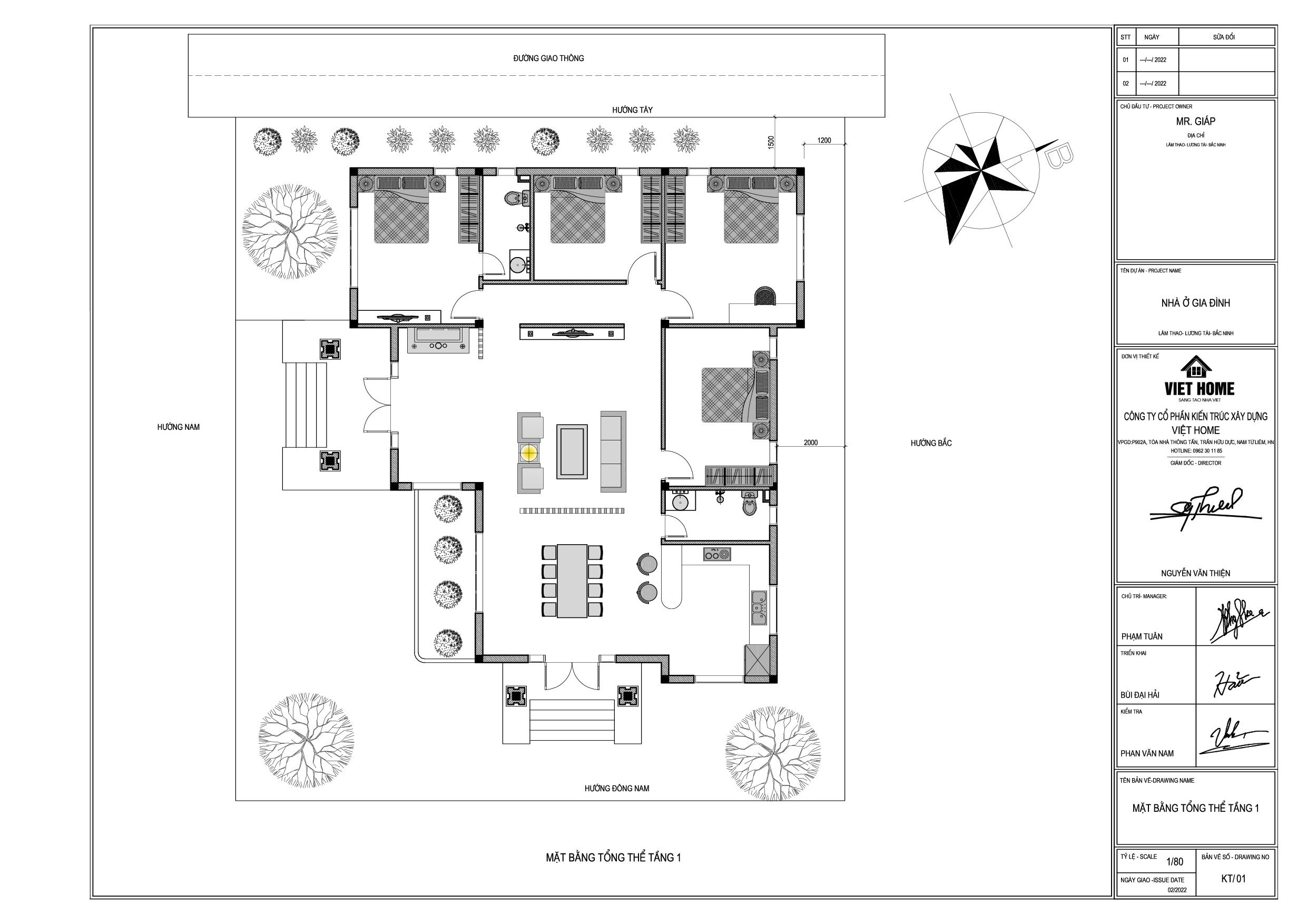
- Công năng sử dụng: Phòng khách và thờ + Phòng bếp ăn và bar + 1 Phòng ngủ master + 3 Phòng ngủ thường + 1WC.

Được thiết kế với mái nhật đơn giản nhưng ngôi nhà 1 tầng này vẫn toát lên được diện mạo sang trọng và cuốn hút. Căn nhà xây dựng trên diện tích 215m2 với hệ mái nhật màu xanh than vô cùng ấn tượng. Với phần mái nhật đồ sộ, nó mang đến cho ngôi biệt thự diện mạo bề thế, khang trang và uy nghi. Bên cạnh đó, với đó mái nhật có độ bền vững chắc, phù hợp với khí hậu nhiệt đới ở Việt Nam nên rất được nhiều gia chủ ưa chuộng và là lựa chọn cho ngôi biệt thự của mình.
Nổi bật nhất vẫn là hệ thống mặt tiền với hệ thống gạch ốp độc đáo, kết hợp cùng hệ cửa kính khung nhôm cuốn hút. Bên cạnh đó, không gian mặt tiền được các kiến trúc sư thiết kế vô cùng tỉ mỉ, tính toán kỹ lưỡng nhằm mang đến không gian ngoại thất hài hòa và độc đáo, thể hiện rõ được gu thẩm mỹ cũng như cá tính của gia chủ tại nơi đây. Ngoài ra, hệ cột trụ cứng cáp, vuông vắn cùng những điểm nhấn kiến trúc được trang trí tỉ mỉ đan xen từ trên xuống dưới tạo thành nét độc đáo cho ngôi nhà.

Công trình 1 tầng này là một trong những mẫu nhà đẹp theo phong thủy với lối kiến trúc hiện đại đã nhận được sự đánh giá cao của chủ đầu tư. Thêm vào đó, diện tích sân vườn rộng rãi, thuận lợi để gia chủ thiết kế sân vườn, tiểu cảnh đồng thời làm chỗ để xe. Với lối thiết kế theo phong cách nhà vườn đẹp, hiện đại nên gia chủ có một không gian sống trong lành, mát mẻ và thoải mái nhất sau những giờ làm việc căng thẳng. Đặc biệt hơn, các khó, hoa, dàn hoa được bố trí vô cùng khoa học tạo nên sắc màu cuốn hút, giúp tô điểm thêm cho không gian ngoại thất của mẫu biệt thự vườn mái nhật đơn giản này.
Mẫu nhà vườn 1 tầng sở hữu cho mình vẻ đẹp hiện đại qua cách bố trí, tạo hình khối. Bên cạnh đó các mảng miếng vuông vắn, cột trụ kết hợp cùng màu sắc trẻ trung, gạch ốp tường bắt mắt đã tạo nên một tổng thể hào hòa và có sự liên kết chặt chẽ với nhau. Thêm vào đó, với việc sử dụng những ô cửa chất liệu kính cường lực trong suốt được bố trí một cách khoa học. Vừa giúp cho ngôi nhà tăng thêm giá trị về thẩm mỹ vừa lấy được ánh sáng và gió từ bên ngoài vào trong nhà.Hơn nữa, hệ cửa kính còn kết nối chặt chẽ với khu vực sân vườn thoáng mát và tươi xanh.
Bên cạnh vẻ đẹp hiện đại và tinh tế của mặt tiền, ngôi biệt thự 1 tầng còn chinh phục chủ đầu tư nhờ không gian nội thất được tính toán và chăm chút kỹ lưỡng. Đội ngũ kiến trúc sư đã vận dụng tối đa trong từng diện tích, từng không gian để có một mặt bằng quy hoạch rõ ràng, khoa họ. Từ đó đem lại một không gian biệt thự 1 tầng đẹp đúng với những mong muốn và nhu cầu sử dụng về công năng, phong thủy, sự tiện nghi trong quá trình sống, sinh hoạt được thoải mái, thư giãn nhất.
Không chỉ sở hữu một vẻ đẹp lôi cuốn cùng công năng sử dụng khoa học, mẫu thiết kế biệt thự đẹp này còn được nhiều chủ đầu tư lựa chọn thiết kế xây dựng hiện nay bởi vì chi phí không quá cao, phù hợp với điều kiện kinh tế cho nhiều hộ gia đình có mức thu nhập khá trong cuộc sống xã hội hiện nay.
2. Mặt bằng tổng thể

Các kiến trúc sư tại Việt Home có nhiều kinh nghiệm trong lĩnh vực thiết kế thi công nhà ở với kiến thức chuyên môn và gu thẩm mỹ nghệ thuật cao cam kết sẽ sáng tạo hết mình mang lại không gian sống lý tưởng nhất cho bạn và gia đình.
----------
CÔNG TY CP KIẾN TRÚC XÂY DỰNG VIỆT HOME
Tầng 9 - tòa nhà Thông Tấn -Trần Hữu Dực - Nam Từ Liêm - Hà Nội
0912 301 185 / 0986 823 185 / 0961 301 185 / 0916 429 185
