Đẳng cấp biệt thự 3 tầng hiện đại - Chủ đầu tư: Anh Hiếu, Đông Anh Hà Nội
1. Phối cảnh 3D mặt tiền
- Chủ đầu tư: Anh Hiếu
- Địa điểm xây dựng: Đông Anh, Hà Nội
- Tên công trình: Biệt thự 3 tầng hiện đại
- Công năng sử dụng:
+ Tầng 1: Gara + Phòng khách + WC
+ Tầng 2: 3 Phòng ngủ + 1 WC
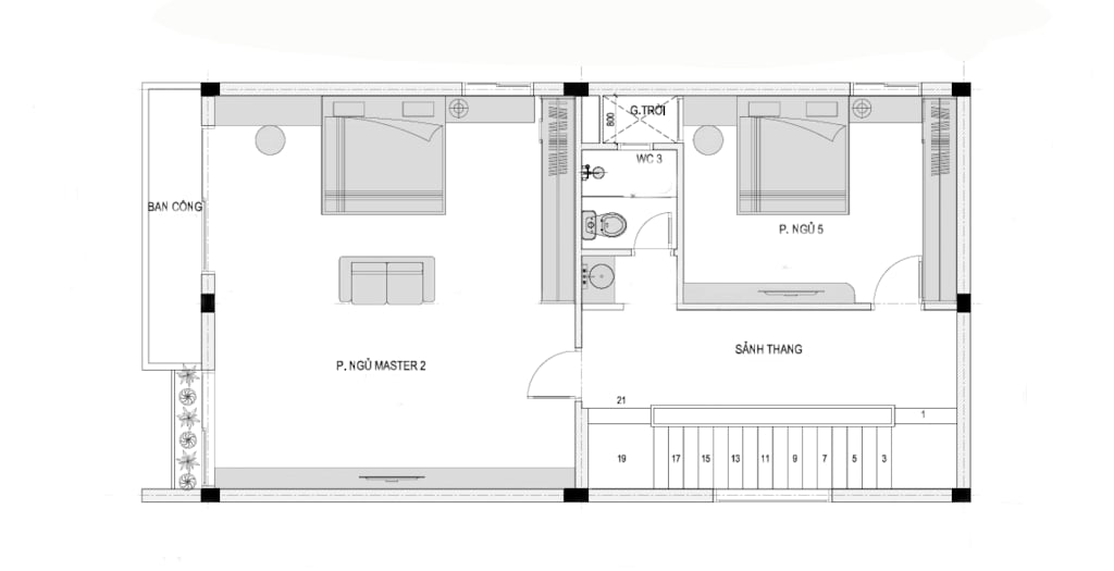
+ Tầng 3: 1 Phòng ngủ master + 1 Phòng ngủ thường + 1 WC

Căn biệt thự 3 tầng này được thiết kế với phong cách hiện đại làm nền tảng. Do đó, từ kiến trúc đến công năng đều ưu tiên sự tối giản và tiện nghi. Mặt tiền là những hình khối xếp chồng. Kết hợp cùng tone màu trắng – xám, làm tăng tính thẩm mỹ và hiện đại của ngôi nhà. Đan xen trong kiến trúc là những khoảng thiên nhiên được thêm vào. Hình thành nên sự hòa quyện đầy tinh tế.

Điểm nhấn quan trọng trong thiết kế của ngôi nhà chính là sự tối ưu hoá ánh sáng và gió tự nhiên, tạo ra những khoảng thở cần thiết giúp không gian luôn thoáng đãng. Hệ thống cửa sổ lớn và các khoảng thông tầng được bố trí thông minh giúp mọi ngóc ngách trong nhà đều đón nhận ánh sáng mặt trời len lỏi vào.
Không gian sinh hoạt chung và riêng được phân chia hợp lý trên 3 tầng, đảm bảo sự kết nối nhưng vẫn giữ được sự riêng tư cần thiết cho các thành viên trong gia đình.
Tông màu chủ đạo của ngoại thất là sự kết hợp giữa sơn trắng tinh tế và xám sang trọng. Những chất liệu này không chỉ đảm bảo tính thẩm mỹ mà còn có độ bền cao, phù hợp với điều kiện thời tiết nhiệt đới. Ban công tầng 2 và 3 được thiết kế với lan can đua rộng cùng hệ cửa kính full trần, giúp tối đa hóa sự kết nối giữa không gian bên trong và bên ngoài, tạo cảm giác rộng mở, thoáng đãng.
2. Hình ảnh bố trí công năng
2.1. Tầng 1
Tầng 1: Gara + Phòng khách + WC
.png?492)
2.2. Tầng 2
Tầng 2: 3 Phòng ngủ + 1 WC
.png?843)
2.3. Tầng 3
Tầng 3: 1 Phòng ngủ master + 1 Phòng ngủ thường + 1 WC
.png?279)
Bản vẽ chi tiết kiến trúc và phối cảnh ngoại thất 3D
Bản vẽ chi tiết kiến trúc
Bản vẽ kết cấu công trình
Bản vẽ hệ thống ME (Điện – Nước – Điều hòa – Thông gió – An ninh…)
Dự toán công trình: chi tiết chi phí xây dựng – Tổng mức đầu tư
Toàn bộ hồ sơ thiết kế công năng các phòng và kiến trúc đều được tư vấn hợp theo Phong thủy và tuổi của chủ đầu tư. Kích thước các phòng, chiều cao nhà và kích thước cửa đều theo kích thước phong thủy.
Bạn đang dự định xây nhà. Liên hệ ngay Việt Home để được tư vấn nhé!
