Đẳng cấp nhà phố trẻ trung hiện đại - Chủ đầu tư: Anh Trường, Hà Nội
1. Phối cảnh 3D mặt tiền
Chủ đầu tư: Anh Trường
- Địa điểm xây dựng: Mê Linh, Hà Nội
- Công năng sử dụng:
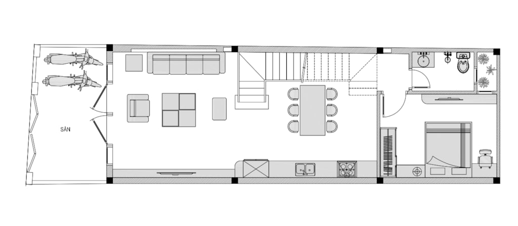
+ Tầng 1: Phòng khách + Bếp + 1 Phòng ngủ + WC
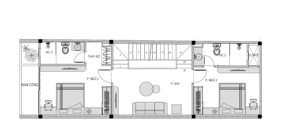
+ Tầng 2: Phòng SHC + 2 Phòng ngủ khép kín
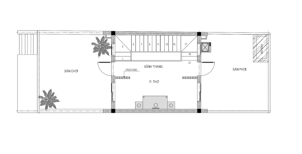
+ Tầng 3: Phòng thờ + Sân phơi

Ngay từ cái nhìn đầu tiên, ngôi nhà phố gây ấn tượng mạnh mẽ bởi hình khối kiến trúc vuông vức, hiện đại nhưng vẫn mềm mại nhờ những đường bo cong khéo léo ở khu vực mặt tiền và ban công tầng hai.
Ngôi nhà mang phong cách hiện đại, sang trọng. Sự phá cách trong thiết kế để mang lại sự khác biệt trong các thiết kế nhà phố đơn điệu. Kết hợp giữa màu tối và màu sáng một cách hợp lý giúp ngôi nhà trong tràn đầy sức sống và trẻ trung. Sử dụng gạch ốp tường để trang trí khiến ngôi nhà trở nên nổi bật giữa khu phố .

Bên cạnh đó, các khu vực ban công, sân thượng đều được trồng thêm cây xanh để mang thiên nhiên len lỏi vào từng góc nhà. Sự hiện diện của mảng xanh dù chỉ là một bụi cây nhỏ, một chậu hoa đặt cạnh cửa cũng đủ để cân bằng cảm xúc, giúp ngôi nhà không chỉ là nơi ở mà là nơi thư giãn, nghỉ ngơi và tái tạo năng lượng.
2. Công năng sử dụng
2.1. Tầng 1
Phòng khách + Bếp + 1 Phòng ngủ + WC

2.2. Tầng 2
Phòng SHC + 2 Phòng ngủ khép kín

2.3. Tầng 3
Phòng thờ + Sân phơi

