Đẳng cấp với mẫu nhà phố tân cổ điển kết hợp kinh doanh - Chủ đầu tư: Anh Doanh, Hà Nội
Nhà không chỉ là nơi sinh hoạt của gia đình mà còn phải cảm giác thư thái, sang trọng, tinh tế và thể hiện được đẳng cấp cả gia chủ.
Sở hữu lô đất mặt phố rộng 4.8m, anh Doanh lựa chọn xây dựng nhà phố với phong cách tân cổ điển, kết hợp kinh doanh và sinh hoạt gia đình.
1. Phối cảnh 3D mặt tiền
- Chủ đầu tư: Anh Doanh
- Địa điểm xây dựng: Đan Phượng, Hà Nội
- Tên công trình: Nhà phố 4 tầng tân cổ điển
- Công năng sử dụng:
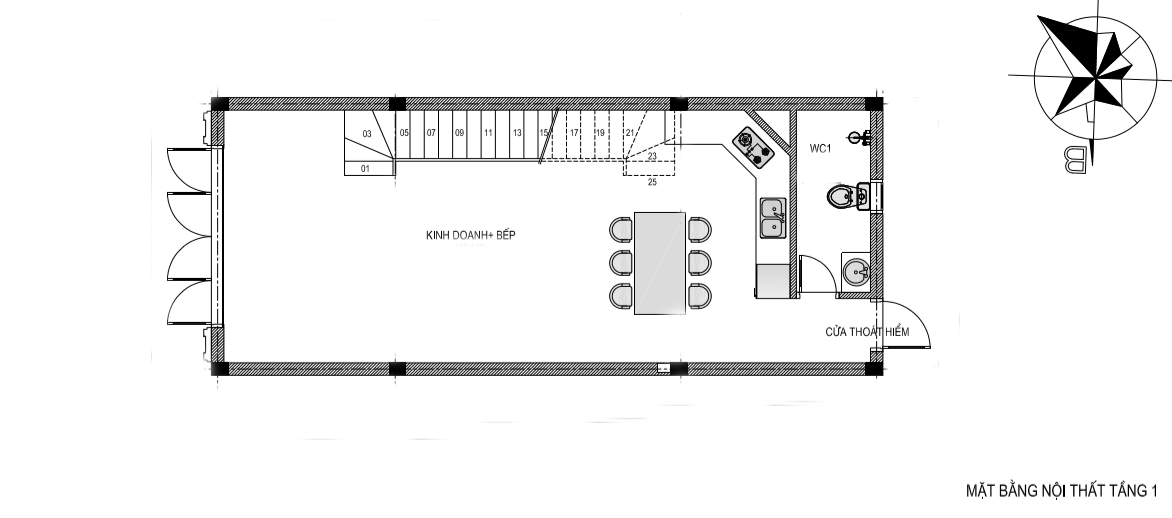
+ Tầng 1: Khu vực kinh doanh + Bếp + 1 WC
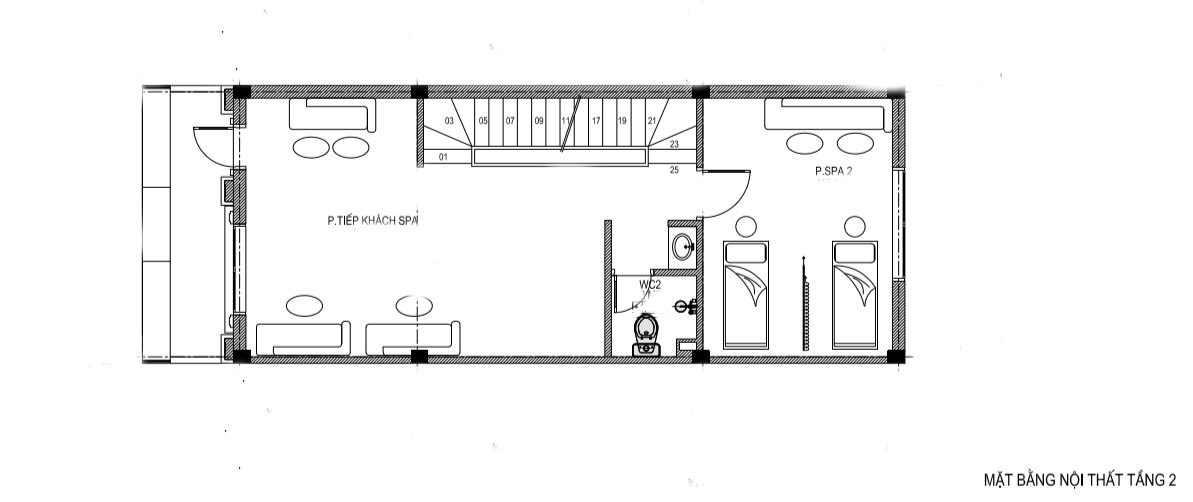
+ Tầng 2: Khu vực tiếp khách spa + 1 Phòng Spa + 1 WC
+ Tầng 3: 3 Phòng ngủ +1 WC
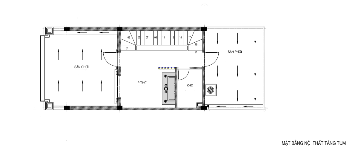
+Tầng 4: Phòng thờ + Kho + sân phơi

Với công trình tích hợp 2 công năng này, anh Doanh mong muốn tầng 1 và 2 được thiết kế làm không gian kinh doanh. Trong khi đó, các tầng còn lại là không gian sinh hoạt, nghỉ ngơi của gia đình.
Vì là ngôi nhà ở kiêm kinh doanh nên kiến trúc ngoại thất được thiết kế vô cùng ấn tượng để thu hút khách hàng, không gian nội thất bố trí linh hoạt đáp ứng nhu cầu sử dụng.
Ngắm nhìn phối cảnh ngoại thất có thể thấy được sự sang trọng, đẳng cấp hiện hữu ngay ở phần mặt tiền. Mẫu nhà ống này gây ấn tượng bởi các cột trụ, phào chỉ được thiết kế khéo léo mang đến diện mạo ấn tượng.

Phần ngoại thất được lựa chọn tone màu trắng làm chủ đạo kết hợp với màu vàng của gạch Granite lại càng nổi bật và toát lên vẻ đẹp của phong cách kiến trúc tân cổ điển.
Nhược điểm của những ngôi nhà phố hiện nay là chỉ có 1 đến 2 mặt tiền nên không gian nội thất khá bí bách. Để khắc phục nhược điểm này, kiến trúc sư đã thiết kế hệ cửa sổ kính và ban công rộng thoáng phía trước. Chất liệu kính thủy lực còn giúp không gian nội thất có thể lấy sáng, lấy gió được từ thiên nhiên vào không gian nội thất.
2. Hình ảnh bố trí công năng
2.1. Tầng 1

2.2. Tầng 2

2.3 Tầng 3

2.4. Tầng 4

Nếu bạn đang ấp ủ cho mình một ý tưởng, đừng ngần ngại liên lạc với chúng tôi để nhận tư vấn và mẫu nhà phù hợp nhé!
