Đẹp lung linh cùng mẫu biệt thự 3 tầng hiện đại của chủ đầu tư Ms Thảo tại Hải Phòng
1. Phối cảnh 3D mặt tiền
Chủ đầu tư: Ms Thảo
Địa điểm xây dựng: Hải Phòng
Công năng sử dụng:
+ Tầng 1: Gara + Phòng khách + + Bếp ăn + WC
+ Tầng 2: Phòng ngủ Master + Phòng ngủ thường + WC
+ Tầng 3: Phòng thờ + phòng ngủ + WC + Sân phơi

Mặt tiền ngôi nhà hiện lên với vẻ đẹp sang trọng – cá tính – đầy chiều sâu, được tạo dựng từ những đường nét mạnh mẽ và bảng màu trầm hiện đại. Tổng thể công trình sử dụng tông đen – xám than làm chủ đạo, tạo nên một diện mạo huyền bí, vững chãi nhưng vẫn vô cùng tinh tế. Những đường viền sáng chạy dọc khối nhà giống như những nét nhấn kim loại sắc bén, giúp mặt tiền trở nên nổi bật và có chiều sâu hơn, đặc biệt khi kết hợp cùng hiệu ứng ánh sáng ban đêm. Tầng 1 được ốp đá tối màu với vân tự nhiên, tạo cảm giác bề thế và sang trọng ngay từ ánh nhìn đầu tiên; hệ cửa kính khung thép đồng bộ màu đen càng làm tăng vẻ chắc chắn và hiện đại cho không gian.
Lên đến tầng 2 và tầng 3, kiến trúc mở được thể hiện rõ nét qua những mảng kính lớn phản chiếu ánh sáng và màu xanh thiên nhiên xung quanh, khiến mặt tiền vừa sang vừa mềm mại. Lan can ban công được thiết kế với mảng bê tông màu xám nhạt mang hơi hướng tối giản, hài hòa với tổng thể trầm ấm của ngôi nhà. Điểm nhấn đặc biệt nằm ở hệ cây xanh leo và cây trang trí được bố trí dọc theo cạnh phải công trình, mang lại cảm giác sinh động, mềm mại, giúp tổng thể bớt nặng nề và trở nên cân bằng hơn giữa sắc xám đậm của khối nhà. Phần trần ban công ốp gỗ nâu đỏ lại là một sự tương phản tinh tế, làm ấm không gian và tạo chiều sâu thị giác, khiến mỗi tầng như một khung cảnh riêng đầy sự thư thái.
Nhìn tổng thể, mặt tiền ngôi nhà là sự hòa quyện của đường nét góc cạnh, bảng màu trầm sang trọng, vật liệu hiện đại và mảng xanh sống động, tạo nên một công trình vừa mạnh mẽ cá tính, vừa nghệ thuật tinh tế, vừa mang đậm tinh thần kiến trúc đô thị đương đại. Đây là kiểu mặt tiền tạo dấu ấn mạnh mẽ ngay từ cái nhìn đầu tiên—một sự đầu tư chỉn chu, đẳng cấp và giàu phong cách.

2. Hình ảnh bố trí công năng
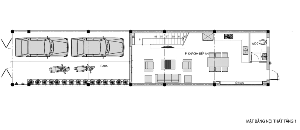
2.1. Tầng 1
+ Tầng 1: Gara + Phòng khách + + Bếp ăn + WC
.png?49)
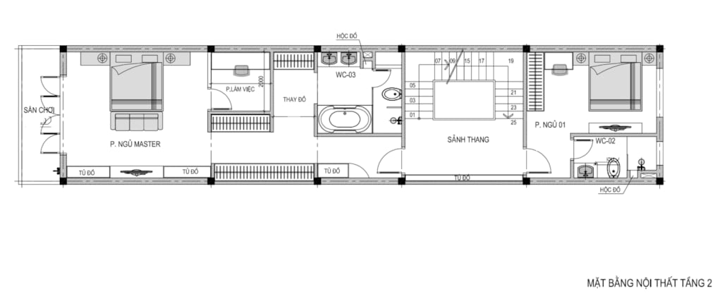
2.2. Tầng 2
+ Tầng 2: Phòng ngủ Master + Phòng ngủ thường + WC
.png?233)
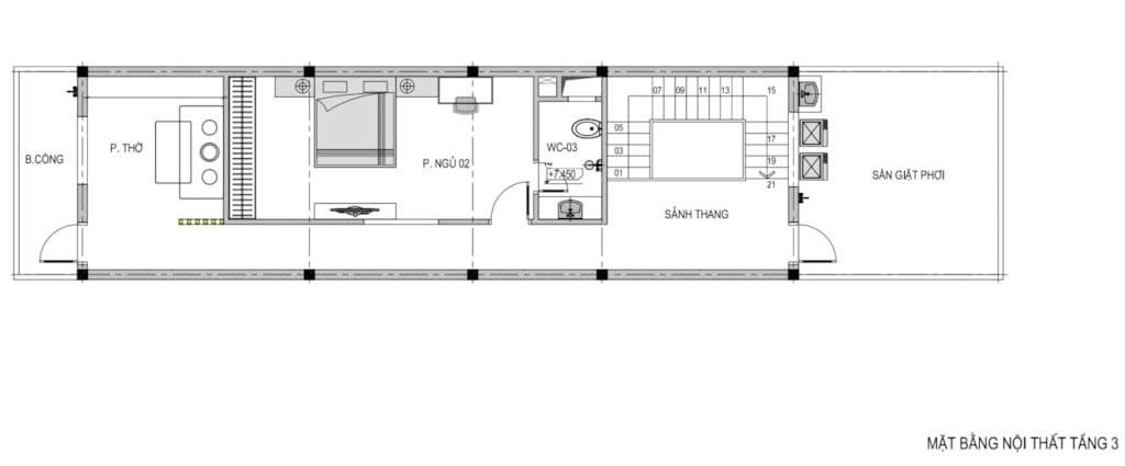
2.3. Tầng 3
+ Tầng 3: Phòng thờ + phòng ngủ + WC + Sân phơi
.png?488)
