Đẹp lung linh cùng mẫu biệt thự hiện đại 2 tầng của chủ đầu tư anh Việt Anh tại Sơn Tây, Hà Nội
1. Phối cảnh 3D mặt tiền
Chủ đầu tư: Anh Việt Anh
- Địa điểm xây dựng: Sơn Tây, Hà Nội
- Công năng sử dụng:
+ Tầng 1: Phòng khách + Phòng Bếp, ăn + 1 Phòng ngủ khép kín + WC
+ Tầng 2: Phòng thờ + 2 Phòng ngủ khép kín + Sân phơi
Mẫu biệt thự hiện đại 2 tầng do Công ty CP Kiến Trúc Xây Dựng VietHome thiết kế là sự kết hợp hoàn hảo giữa nghệ thuật kiến trúc hiện đại và công năng sống tiện nghi. Ngôi nhà được xây dựng tại Sơn Tây – Hà Nội, dành cho anh Việt Anh, một chủ đầu tư yêu thích không gian sống sang trọng, mở rộng và gần gũi với thiên nhiên. Mặt tiền của mẫu biệt thự hiện đại 2 tầng được thiết kế với bố cục khối hộp vuông vắn, mạch lạc và cân đối, thể hiện phong cách kiến trúc hiện đại tối giản (Modern Minimalism) đang được ưa chuộng hiện nay. Các kiến trúc sư VietHome đã tinh tế xử lý tỷ lệ chiều ngang – chiều cao hài hòa, tạo nên vẻ bề thế, sang trọng nhưng không nặng nề.Đây là mẫu nhà lý tưởng cho những gia đình trẻ đang tìm kiếm thiết kế biệt thự 2 tầng đẹp, tinh tế và bền vững theo thời gian.

Điểm nhấn đầu tiên khi nhìn vào ngôi nhà là khối sảnh chính cao thoáng, được ốp đá granite xám ghi bóng mờ chạy dọc từ tầng trệt lên mái. Chi tiết này vừa tạo cảm giác vững chãi, vừa giúp mặt tiền thêm chiều sâu và nổi bật trong ánh sáng tự nhiên.Phía trước là hệ cửa kính cường lực khổ lớn, kết hợp khung nhôm đen hiện đại, giúp ngôi nhà mở rộng tầm nhìn, đón sáng tối đa và kết nối không gian nội – ngoại thất. Ban đêm, ánh sáng từ trong nhà phản chiếu qua lớp kính tạo nên hiệu ứng lung linh, sang trọng như resort cao cấp. Tầng 2 được thiết kế với ban công chạy dài trồng cây xanh và tiểu cảnh bonsai, vừa giúp mặt tiền mềm mại hơn, vừa là lá phổi xanh điều hòa không khí. Hệ đèn LED âm trần bố trí khéo léo dưới mái hiên tạo điểm nhấn ánh sáng tinh tế khi trời tối.
Toàn bộ công trình sử dụng bảng màu trung tính – hiện đại, được phối hợp tinh tế để làm nổi bật hình khối và vật liệu. Màu ghi xám – trắng chủ đạo: Tạo cảm giác sạch sẽ, sang trọng và hiện đại. Hai tông màu này giúp làm nổi bật đường nét kiến trúc, đồng thời tạo cảm giác mát mẻ, tinh tế. Điểm nhấn gỗ nâu trầm dùng cho các mảng ốp tường tầng 2 và chi tiết lam trang trí, giúp tổng thể bớt lạnh, mang lại cảm giác ấm cúng, gần gũi. Khu vực sân trước được lát đá tự nhiên, tạo lối đi rộng rãi cho ô tô và người đi bộ. Hai bên nhà được bố trí hệ cây xanh – tiểu cảnh nhỏ, tạo cảm giác mát mẻ và gần gũi với thiên nhiên. Mảng xanh được tính toán kỹ lưỡng, vừa mang giá trị thẩm mỹ, vừa cân bằng vi khí hậu cho toàn bộ công trình. Tổng thể phối màu này không chỉ đạt tính thẩm mỹ cao, mà còn giúp ngôi nhà bền màu theo thời gian, ít bị ảnh hưởng bởi thời tiết – một ưu điểm lớn khi xây dựng tại khu vực khí hậu như Hà Nội.
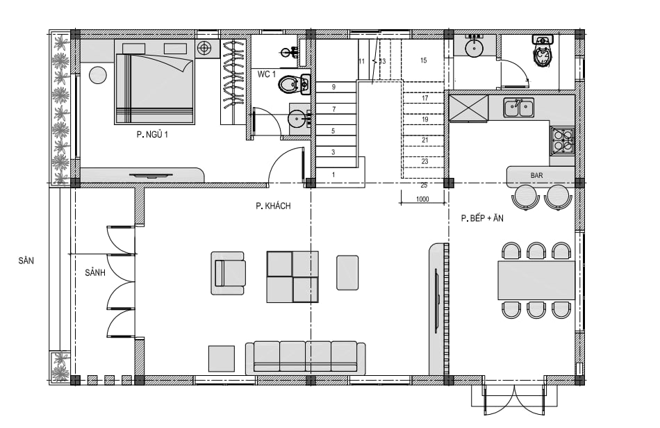
2. Công năng sử dụng
2.1. Tầng 1
+ Tầng 1: Phòng khách + Phòng Bếp, ăn + 1 Phòng ngủ khép kín + WC
.png?864)
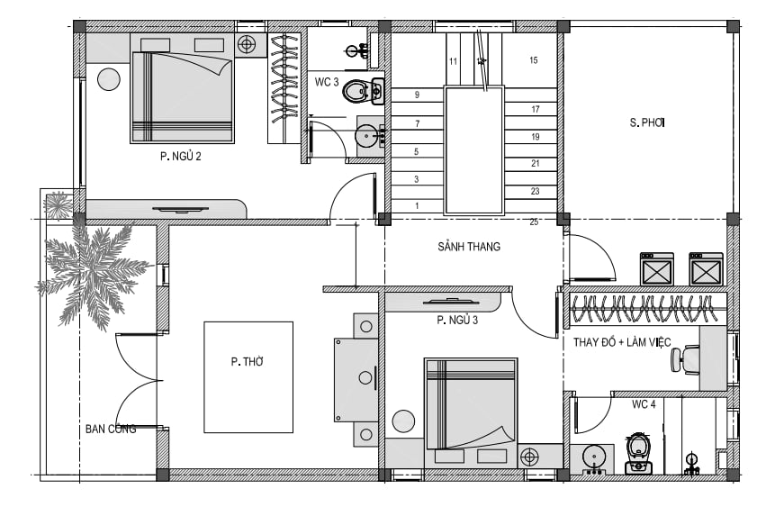
2.2. Tầng 2
+ Tầng 2: Phòng thờ + 2 Phòng ngủ khép kín + Sân phơi
.png?565)
