Hiện đại và tinh tế cùng mẫu thiết kế nhà phố 2 tầng của chủ đầu tư anh Hùng ở Hòa Bình
1. Phối cảnh 3D mặt tiền
Chủ đầu tư: Anh Hùng
Địa điểm xây dựng: Hà Nội
Công năng sử dụng:
+ Tầng 1: Phòng khách + Phòng bếp ăn + Phòng ngủ khép kín + wc
+ Tầng 2: Phòng thờ + Phòng ngủ khép kín+ 2 Phòng ngủ + 1 WC

Mặt tiền của ngôi nhà toát lên vẻ đẹp hiện đại đầy tinh tế, gây ấn tượng ngay từ ánh nhìn đầu tiên bởi sự kết hợp hài hòa giữa hình khối kiến trúc và vật liệu hoàn thiện. Tổng thể công trình được thiết kế theo phong cách tối giản với những mảng tường phẳng, vuông vức, nhưng được làm mềm bằng các đường bo cong uyển chuyển ở góc ban công và mái, tạo cảm giác nhẹ nhàng và thanh thoát. Gam màu trắng chủ đạo mang đến sự tinh khôi, sang trọng, đồng thời làm nền hoàn hảo để tôn lên phần ốp đá xám vân mây ở tầng một – chi tiết giúp tăng chiều sâu và cảm giác bề thế cho công trình. Cửa chính nổi bật với thiết kế kính đen kết hợp khung kim loại chắc chắn, tạo điểm nhấn mạnh mẽ và hiện đại, đồng thời phản chiếu ánh sáng xung quanh, làm mặt tiền thêm phần cuốn hút.
Tầng hai gây ấn tượng với ban công rộng sử dụng lan can kính trong suốt, giúp mở rộng tầm nhìn và tạo cảm giác không gian thoáng đãng hơn, kết hợp cùng những mảng xanh được bố trí khéo léo như một khu vườn treo nhỏ, mang lại sự mềm mại và sức sống cho toàn bộ công trình. Hệ cửa kính lớn phía trong không chỉ giúp đón ánh sáng tự nhiên tối đa mà còn tạo sự kết nối hài hòa giữa không gian nội thất và ngoại thất. Khi màn đêm buông xuống, hệ thống đèn tường và đèn âm trần được bố trí tinh tế bắt đầu phát huy hiệu quả, ánh sáng vàng ấm lan tỏa nhẹ nhàng trên bề mặt tường và các chi tiết kiến trúc, làm nổi bật từng đường nét và tạo nên một diện mạo lung linh, sang trọng. Đặc biệt, trong khung cảnh trời mưa, ánh sáng phản chiếu trên mặt đường ướt càng làm tăng thêm vẻ đẹp lãng mạn và hiện đại cho ngôi nhà, biến mặt tiền trở thành một điểm nhấn nổi bật giữa không gian phố thị.

2. Hình ảnh bố trí công năng
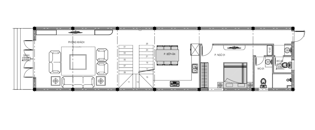
2.1. Tầng 1
+ Tầng 1: Phòng khách + Phòng bếp ăn + Phòng ngủ khép kín + wc
.png?541)
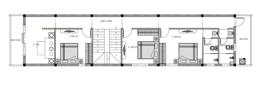
2.2. Tầng 2
+ Tầng 2: Phòng thờ + Phòng ngủ khép kín+ 2 Phòng ngủ + 1 WC
.png?489)
