Hiện đại và tinh tế cùng mẫu thiết kế nhà phố 3 tầng 1 tum của chủ đầu tư anh Tuấn Anh ở Hà Đông, Hà Nội
1. Phối cảnh 3D mặt tiền
- Chủ đầu tư: Anh Tuấn Anh
- Địa điểm xây dựng: Hà Nội
- Tên công trình: Nhà phố hiện đại 3 tầng 1 tum
- Công năng sử dụng:
+ Tầng 1: Phòng thờ + Phòng khách + Phòng bếp ăn + WC
+ Tầng 2: 2 Phòng ngủ + 1 WC
+ Tầng 3: 2 Phòng ngủ + 1 WC
+ Tầng tum: Phòng ngủ + Sân phơi

Mặt tiền ngôi nhà ống 3 tầng 1 tum hiện lên với vẻ đẹp thanh lịch và hiện đại, được tạo dựng từ những mảng hình khối rõ ràng, dứt khoát, thể hiện tinh thần kiến trúc tối giản nhưng đầy tinh tế. Toàn bộ mặt đứng được chia thành hai trục dọc cân đối: một bên là khối tường trắng phẳng hiện đại, chạy thẳng lên đến mái, tạo đường nét mạnh mẽ; bên còn lại là mảng ốp giả gỗ màu nâu ấm, vừa làm điểm nhấn vừa mang đến cảm giác gần gũi, giúp công trình tránh sự khô cứng thường thấy ở nhà phố. Hệ thống cửa kính khung nhôm tối màu được bố trí theo chiều dọc, từng ô cửa rộng mở giúp ánh sáng tự nhiên dễ dàng tràn vào bên trong và đồng thời tạo chiều sâu thị giác cho mặt tiền.
Tầng trệt được hoàn thiện bằng đá ốp sáng màu phối hợp hài hòa với cánh cửa chính dạng lam đứng lớn, khiến không gian đón vào trở nên bề thế và chắc chắn. Hai đèn tường được đặt đối xứng, tạo điểm nhấn sáng nhẹ giúp mặt tiền thêm lung linh và sang trọng mỗi khi về đêm. Sự kết hợp giữa trắng tinh tế, nâu gỗ ấm áp và sắc đen hiện đại của khung cửa đã tạo nên một tổng thể hài hòa, mềm mại nhưng vẫn đậm chất kiến trúc đương đại. Tất cả hòa quyện lại, mang đến một mặt tiền đơn giản nhưng sang trọng, nổi bật giữa dãy nhà phố và tạo cảm giác kiêu hãnh, thanh thoát ngay từ ánh nhìn đầu tiên.
2. Bố trí công năng
2.1. Tầng 1
+ Tầng 1: Phòng thờ + Phòng khách + Phòng bếp ăn + WC
.png?216)
2.2. Tầng 1
+ Tầng 2: 2 Phòng ngủ + 1 WC
.png?841)
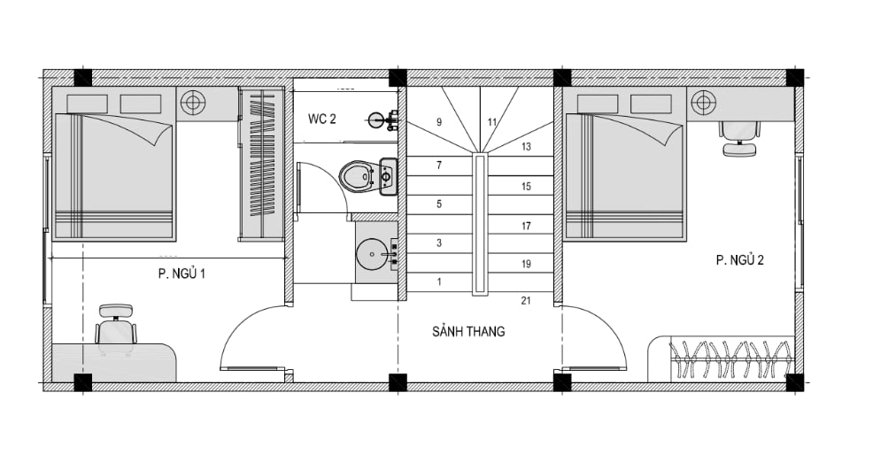
2.3. Tầng 1
+ Tầng 3: 2 Phòng ngủ + 1 WC
.png?804)
2.4. Tầng tum
+ Tầng tum: Phòng ngủ + Sân phơi
.png?333)
