Hòa thiện mẫu nhà 1 tầng mái Nhật tại Hà Nội - Chủ đầu tư: Anh Cường
1. Phối cảnh 3D mặt tiền
- Chủ đầu tư: Anh Cường
- Địa điểm xây dựng: Hà Nội
- Công năng sử dụng
+ Tầng hầm: 2 Phòng ngủ + Kho + WC
+ Tầng 1: Phòng khách và phòng thờ + Phòng bếp + 1 Phòng ngủ khép kín + 1 Phòng ngủ thường + 1 WC
Căn nhà mang hình khối vuông vức, cân đối. Các mảng tường phẳng kết hợp phào chỉ mềm mại tạo nên sự hài hòa, nhẹ nhàng mà vẫn rất đẳng cấp. Hệ cột vuông lớn ở sảnh chính giúp mặt tiền trở nên ấn tượng, mang đến sự khỏe khoắn, vững chãi vô cùng.
Màu trắng chủ đạo là lựa chọn hoàn hảo, giúp kiến trúc nổi bật – sang mà không phô trương. Từng đường nét đều tối ưu để căn nhà trông thanh lịch và có chiều sâu.

Mẫu nhà mái Nhật 1 tầng có tầng hầm dưới đây được thiết kế theo phong cách hiện đại, mang đến không gian sống tiện nghi và thẩm mỹ cao. Kiến trúc mái Nhật với độ dốc vừa phải không chỉ giúp thoát nước tốt trong điều kiện khí hậu Việt Nam mà còn tạo nên vẻ đẹp hài hòa, sang trọng.
Phần tầng hầm được bố trí thông minh, tận dụng tối đa diện tích sử dụng,vừa để xe vừa để phòng sinh hoạt. Bên cạnh đó, việc kết hợp giữa hình khối kiến trúc mạnh mẽ và vật liệu hiện đại như kính, gạch ốp tường ngoại thất, cùng màu sắc trang nhã giúp ngôi nhà nổi bật và bền vững theo thời gian.
2. Bố trí công năng sử dụng
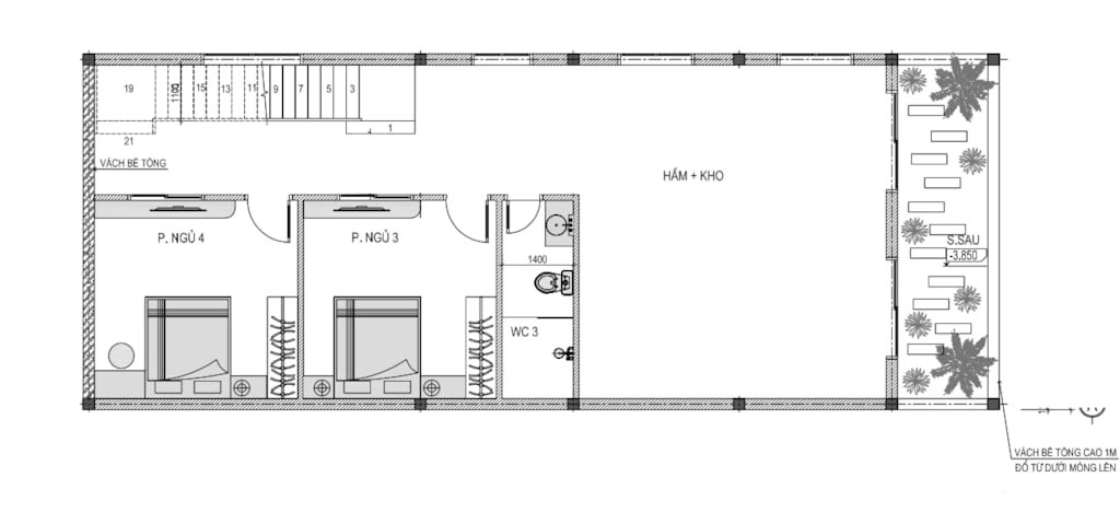
2.1. Tầng hầm
2 Phòng ngủ + Kho + WC
.png?488)
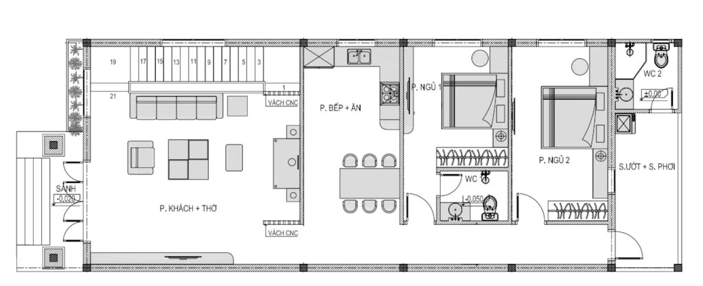
2.2. Tầng 1
Phòng khách và phòng thờ + Phòng bếp + 1 Phòng ngủ khép kín + 1 Phòng ngủ thường + 1 WC
.png?339)
3. Hình ảnh thi công




