Hoàn thiện mẫu nhà 2 tầng hiện đại - Chủ đầu tư: Anh Phú, Hà Nội
1. Phối cảnh 3D mặt tiền
Chủ đầu tư: Anh Phú
- Địa điểm xây dựng: Sơn Tây, Hà Nội
- Công năng sử dụng:
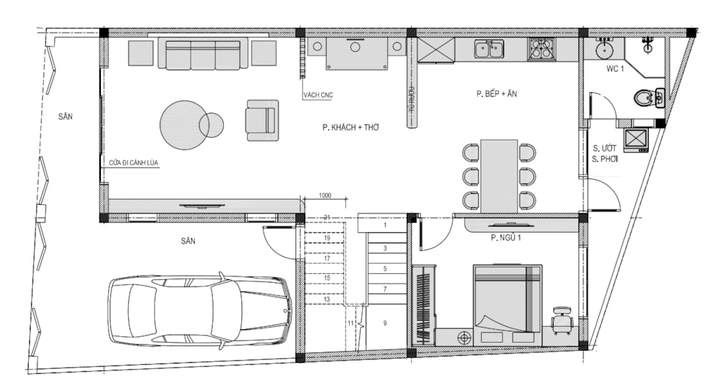
+ Tầng 1: Phòng khách chung phòng thờ + Phòng Bếp + Ăn + 1 Phòng ngủ + 1 WC
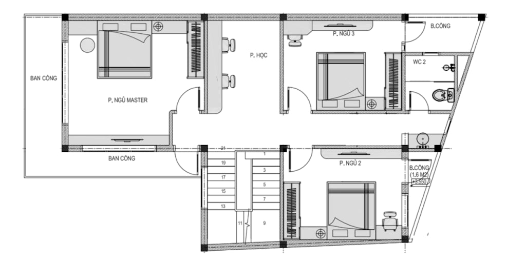
+ Tầng 2: Khu vực học tập + 3 phòng ngủ + WC

Ngôi nhà 2 tầng được thiết kế với gam màu trắng, ghi làm chủ đạo, mang đến vẻ đẹp tinh tế và hiện đại. Màu trắng không chỉ giúp không gian trở nên sáng sủa, thoáng đãng hơn mà còn dễ dàng kết hợp với nhiều vật liệu và màu sắc khác. Nổi bật trong tổng thể là phần trần được ốp gỗ nhựa sang trọng, tạo điểm nhấn ấm cúng và tự nhiên. Bên cạnh đó, tầng 2 được phối thêm gam màu ghi trang nhã, giúp cân bằng tổng thể màu sắc, tạo chiều sâu và tăng thêm nét thanh lịch cho ngôi nhà.
Toàn bộ ngôi nhà được thiết kế tận dụng tối đa hệ thống cửa sổ, giúp không gian luôn thông thoáng và tràn ngập ánh sáng tự nhiên. Các khung cửa được làm từ nhôm hệ Xingfa cao cấp, kết hợp với kính cường lực dày, mang lại độ bền vượt trội, khả năng cách âm – cách nhiệt tốt và tính thẩm mỹ cao.
2. Công năng sử dụng
2.1. Tầng 1
Phòng khách chung phòng thờ + Phòng Bếp + Ăn + 1 Phòng ngủ + 1 WC
.png?924)
2.2. Tầng 2
Khu vực học tập + 3 phòng ngủ + WC
.png?85)
